
|
現在回鄉建房的人越來越多,但是很多戶人家建房是依照當地的房屋造型進行建造的,很難有自己的風采,所以今天小編就來給大家介紹一款簡約好看的新中式農村自建房,感興趣的朋友就跟著小編一起往下看吧。 房屋效果圖
層數:二層 風格:新中式 尺寸:面寬14.3米 進深8.9米 建筑面積:235.0㎡ 土建造價:34.0萬 平面圖
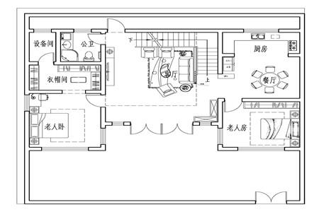
一層平面圖
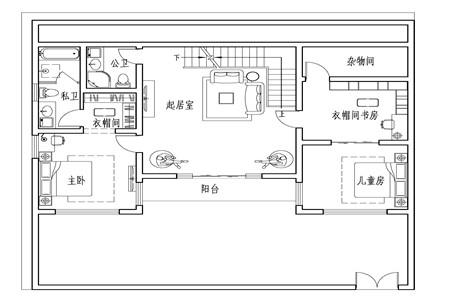
二層平面圖 設計亮點: 1、該棟農村自建房是新中式風格,在整體的建筑立面結構上,線條簡單,舍棄了中式風格的繁復,造型設計也與一般的農村自建房有所不同,主要是采用的凹字形的設計,讓建筑整體在空間立體上更豐滿。
2、凹字形的房屋造型設計,既避免了“L”形建筑在空間上的缺角,又可以很好的保證室內采光,以免房屋內部采光不足,從而造成日常生活的不便。
3、一層的建筑立面主要是采用了青磚,二層建筑立面主要是使用的現代風格的白色墻面,屋頂采用傳統的中式的瓦片封頂,建筑整體的顏色和風格對比強烈,讓建筑整體造型更為突出。
4、該棟農村自建房一層和二層的布局基本相同,共設有四個臥室,三個衛生間,三個衣帽間,以及一個雜物間和設備間,充足的臥室設計,使得家里要是來了客人,也不怕沒有地方休息。
5、庭院通過梅花門將其拆分成兩個空間,分別在兩側栽種些綠植,搭配入戶初的石桌石凳,讓中式的風味布滿整個庭院空間。 6、該棟農村自建房的窗戶大面積采用玻璃,不僅使得室內的采光更好,還可以讓居住者不用出門就能欣賞到周邊的風景。
7、二層陽臺位置還放置了一個吊椅,屋頂上方設有玻璃屋檐,無需考慮天氣原因,也可以在二層的陽臺欣賞美景。 8、該棟農村自建房的庭院入戶門采用深色調的大門,與墻面顏色相互呼應,非常的別致。
圖紙之家-專注農村別墅/自建房設計18年,集合國內200余位經驗豐富的設計師,被評為口碑最好的農村建筑設計公司! |

帶地下室三層新農村房屋設計圖紙,外觀效果大氣
占地:220平方米
新農村三層房屋設計圖紙大全,新農村住宅圖紙
占地:108平方米
130平方米別墅設計圖紙(含外觀效果圖,)三層別墅設計方案
占地:135平方米
帶配房的二層鄉村歐式別墅設計圖,尺寸15.84×13.84米
占地:149.19平方米
2026年最新款四間二層別墅設計圖,15米乘13米
占地:171.01平方米
多臥室復式二層別墅房屋設計圖,含外觀效果圖
占地:175平方米
架空層設計的農村自建房別墅設計圖,既做車庫又做儲物間,太實
占地:230.62平方米
占地90平米四層超現代風別墅設計圖,享受高品質生活
占地:3.76平方米
農村大氣四層樓房圖片及全套設計圖紙,復式客廳旋轉樓梯
占地:143平方米
客廳中空三層復式別墅房屋設計圖,帶外觀效果圖
占地:145平方米
高顏值又實用的一層雙拼鄉村別墅設計圖,舒適度堪比豪宅
占地:217.3平方米
100平方建房子設計圖及效果圖,簡單實用的戶型設計
占地:97.3平方米
最新款二層半別墅圖片,占地115平米左右,帶地下室,帶露臺
占地:115平方米
2026新款農村15萬元二層小樓圖,占地90平米左右
占地:多種戶型
高端四間五間兩層別墅設計圖紙,開間20米自建房效果圖
占地:265平方米
130平方米湖南二層復式自建房屋設計圖紙12x11米
占地:128平方米
130平方米新農村三層房屋設計圖紙,外觀簡單大方
占地:130平方米
兄弟三層雙拼房屋設計圖,帶效果圖,戶型好
占地:256平方米
新款農村四層復式別墅設計圖紙及效果圖,外立面清新別致
占地:207平方米
140平方米歐式三層別墅建筑設計圖紙,復式結構
占地:140平方米
推薦:10套新農村自建房設計圖,2026年最新設計
閱讀次數:4825737次
100套鄉村別墅圖片大全,2026年最新設計
閱讀次數:2492203次
6款農村蓋一層平房的設計圖,10萬元就能建起來
閱讀次數:1852637次
這11個一層農村自建房別墅火爆了朋友圈!我最喜歡戶型十!你呢
閱讀次數:750268次
農村6萬元建一層小別墅圖,你敢相信嗎
閱讀次數:567686次
農村5萬塊就能自建房,6套普通房子設計圖分享,你沒看錯!
閱讀次數:419410次
8套農村漂亮三間平房圖片,非常適合在農村修建!
閱讀次數:411197次
農村自建房化糞池怎么做?附方案及施工過程
閱讀次數:391783次
農村一層三間平房設計圖,告別土氣養老房,讓人忍不住點贊
閱讀次數:350581次
新農村二層樓房圖片造價12萬,挑一套回家建房吧!
閱讀次數:349126次
