
|
簡歐式的整體外觀構造,米黃色外墻真石漆和些許的文化石裝飾主體墻面,配合一些歐式裝飾構件來打造一個豐富、美觀、豐滿的別墅整體視覺效果。坡屋頂設計,結合最流行的設計元素,以紅色琉璃瓦覆蓋,保障房屋外觀整體的和諧度。
今天為您介紹一套歐式三層別墅,本戶型采用坡屋面,外觀造型簡潔大方,色彩明快,功能分區合理,房間尺度設計適宜,采光通風良好,富有時代氣息。采用多窗設計,室內采光效果極佳。色彩搭配暖暖的,很柔和。
別墅定內部擁有比較完善的配套空間及設施,健身房、書房、露臺等俱全,優化居住感受。
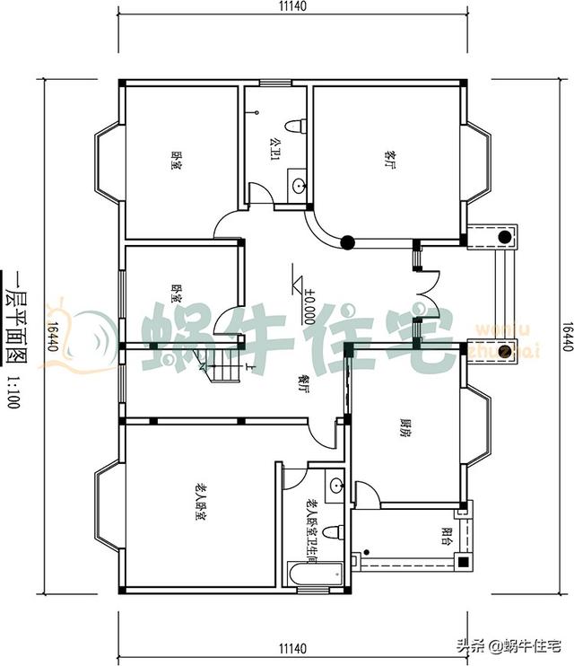
一層;階梯入戶,餐廳廚房、陽臺、客廳、公衛、一間老人套間帶洗手間,老人居住很是方便。
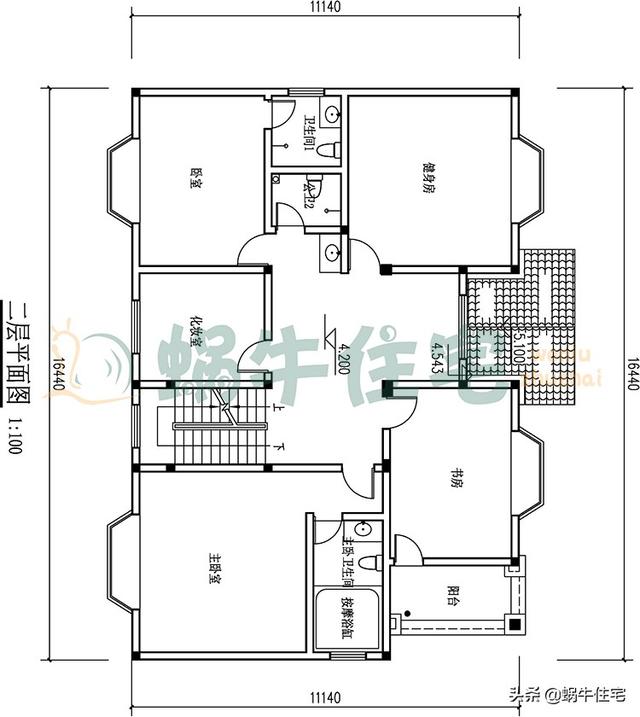
二層;設有化妝室,書房、健身房、分主次兩間臥室都帶洗手間,陽臺。
三層;客廳、臥室兩間、共衛一間,一個大露臺。
圖紙之家-專注農村別墅/自建房設計18年,集合國內200余位經驗豐富的設計師,被評為口碑最好的農村建筑設計公司! |

帶車庫徽派風格三層別墅房屋設計圖,新農村住宅設計推薦
占地:140平方米
30萬左右的新農村自建三層別墅施工設計圖紙及效果圖
占地:148平方米
占地170平米2026新款三層別墅設計圖片及設計方案
占地:170平方米
簡約大氣農村自建三層別墅設計圖,布局合理,很適合農村人自建
占地:139.471平方米
帶車庫二層農村豪華別墅設計圖,主體25萬左右
占地:170平方米左右
豪華大氣三層農村自建房設計圖,經典大氣,百看不厭,新中式風
占地:141.75平方米
125平方米復式三層別墅房屋設計圖,房間多,采光好
占地:125平方米
漂亮實用三層自建別墅設計圖紙,超高的性價比
占地:160平方米
2026帶車庫三層雙拼別墅房屋設計圖,配色淡雅低調
占地:224平方米
帶車位的鄉村二層別墅建筑結構設計圖,全套施工圖140平
占地:139.85平方米
人字坡紅磚一層別墅設計圖,簡約低調超實用,這樣的房子人人能
占地:136.51平方米
120平方米農村一層平房別墅設計圖紙,含外觀效果圖
占地:125平方米
農村二層半樓房設計圖及效果圖,歐式風格
占地:150平方米
二層農村房子圖片及全套施工圖紙,占地150平面左右
占地:150平方米
新中式120平米農村20萬元二層小樓圖,外觀柔和而雅致
占地:120平方米
95平米二層別墅必蓋戶型圖,造型洋氣,布局接地氣,趕緊回村建
占地:95.38平方米
農村小別墅一層設計圖紙,外觀漂亮極了,130和160兩個戶型
占地:多種戶型可選
新農村三層別墅設計圖紙及效果圖,全套cad建筑圖
占地:119平方米
經濟實用二層樓房設計圖紙,功能布局多,12×11米
占地:130平方米
獨棟別墅設計戶型圖帶外觀效果圖,雙向樓梯設計
占地:155平方米
推薦:10套新農村自建房設計圖,2026年最新設計
閱讀次數:4825737次
100套鄉村別墅圖片大全,2026年最新設計
閱讀次數:2492203次
6款農村蓋一層平房的設計圖,10萬元就能建起來
閱讀次數:1852637次
這11個一層農村自建房別墅火爆了朋友圈!我最喜歡戶型十!你呢
閱讀次數:750268次
農村6萬元建一層小別墅圖,你敢相信嗎
閱讀次數:567686次
農村5萬塊就能自建房,6套普通房子設計圖分享,你沒看錯!
閱讀次數:419410次
8套農村漂亮三間平房圖片,非常適合在農村修建!
閱讀次數:411197次
農村自建房化糞池怎么做?附方案及施工過程
閱讀次數:391783次
農村一層三間平房設計圖,告別土氣養老房,讓人忍不住點贊
閱讀次數:350581次
新農村二層樓房圖片造價12萬,挑一套回家建房吧!
閱讀次數:349126次
