
|
豪華大氣的法式別墅,三層的設計裝修,低調亮色的裝潢顯得貴氣不已。別墅外面采用農村少用的黃色和棕色搭配,稍微淺淡的淡黃色帶來十分清新的感覺。闊氣的開間給人以高檔享受。向內聚合的門廳帶來眼前一亮。
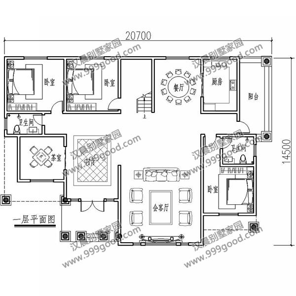
平面圖:在農村已經很少能批到這么大面積的宅地了,一層有大的會客廳,有茶室還有三間小臥室,主臥帶有衛生間是留給老人住的。
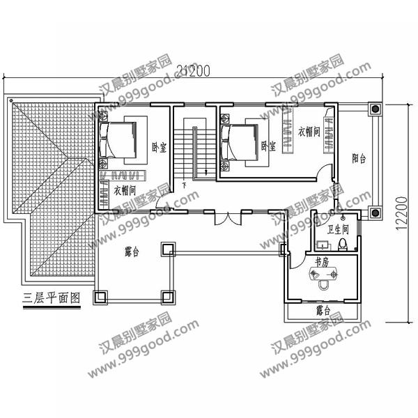
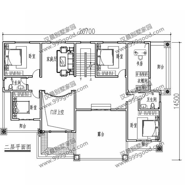
二三層主要是的生活起居層,不算一層的臥室,總共設有 6臥室、家庭廳、2書房、3衛生間、每間臥室都帶有衣帽間。
上面簡單的白色顯得干凈陽光,給人輕松自由不會壓抑。下面富有立體效果的文化石,色彩洋氣,深淺不一、參差不齊頗顯檔次。
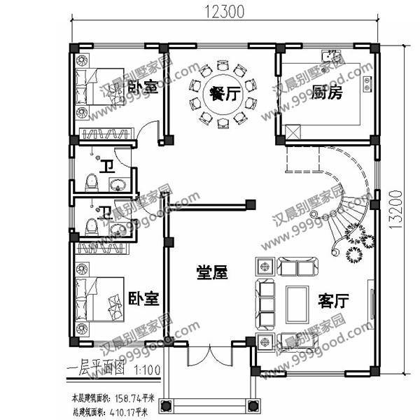
平面圖:房屋宅地西面比較空曠,采光通風相對較好,臥室就設在了西面;東面做廚房和客廳以及旋轉樓梯。
布局總共有 7臥室、1餐廳、1廚房、2客廳、6衛生間、1堂屋、1茶室、1書房。 陽臺露臺等豐富,好戶型需要和自然結合融洽,仿佛置身于大自然中,田園綠色的生活享受。
圖紙之家-專注農村別墅/自建房設計18年,集合國內200余位經驗豐富的設計師,被評為口碑最好的農村建筑設計公司! |

農村二間二層房子設計方案圖,造型小巧精致,10米乘12米
占地:110平方米
16x14米三層雙拼別墅設計圖,外觀精致大氣內里實用,兄弟建房上
占地:217.28平方米
農村四間兩層樓房設計圖,外觀時尚,戶型實用
占地:180平方米
新中式三層雙拼別墅設計圖及效果圖,中式大氣風格
占地:235.26平方米
30萬農村小別墅設計圖片,30萬別墅設計戶型推薦
占地:130平方米
農村二層中式三合院設計圖,這才是國人該建的房子
占地:175.58平方米
農村三層私人住宅設計圖紙及效果圖,帶車庫,帶露臺
占地:150平方米
七字型設計新中式一層別墅設計圖,類合院風格
占地:267.3平方米
15米面寬田園風一層別墅!戶型新穎太吸睛,看過都想建
占地:141.13平方米
農村15萬元二層小樓圖,經濟實用小別墅設計圖
占地:105平方米
農村10萬元一層小別墅平房設計圖大全,含效果圖
占地:120平方米
最新140平米三層自建房屋設計圖紙,本戶型帶小院
占地:140平米
130平方米湖南二層復式自建房屋設計圖紙12x11米
占地:128平方米
170平方米歐式三層雙拼別墅建筑設計圖紙及效果圖片
占地:172平方米
造價便宜的二層雙拼自建房設計方圖案,一塊宅基地建兩戶
占地:224平方米
簡潔大氣140平方三層房子設計圖,帶車庫戶型極佳
占地:140平方米
私人二層中式四合院別墅建筑設計圖,新農村經濟實用戶型
占地:145平方米
占地170平米2026新款三層別墅設計圖片及設計方案
占地:170平方米
大氣的美式三層別墅設計圖,外觀效果圖氣派、美觀
占地:148平方米
150平米農村兩層樓房設計圖,簡單大氣時尚
占地:150平方米
推薦:10套新農村自建房設計圖,2026年最新設計
閱讀次數:4825737次
100套鄉村別墅圖片大全,2026年最新設計
閱讀次數:2492203次
6款農村蓋一層平房的設計圖,10萬元就能建起來
閱讀次數:1852637次
這11個一層農村自建房別墅火爆了朋友圈!我最喜歡戶型十!你呢
閱讀次數:750268次
農村6萬元建一層小別墅圖,你敢相信嗎
閱讀次數:567686次
農村5萬塊就能自建房,6套普通房子設計圖分享,你沒看錯!
閱讀次數:419410次
8套農村漂亮三間平房圖片,非常適合在農村修建!
閱讀次數:411197次
農村自建房化糞池怎么做?附方案及施工過程
閱讀次數:391783次
農村一層三間平房設計圖,告別土氣養老房,讓人忍不住點贊
閱讀次數:350581次
新農村二層樓房圖片造價12萬,挑一套回家建房吧!
閱讀次數:349126次
