
|
現在越來越多的朋友都想要回農村建一套房子,與家人一起享受悠閑的田園生活。下面小編要給大家介紹的就是一套融合了中國風的三層農村小別墅,不僅外觀好看,空間也大,想要建房的快一起看看吧。
尺 寸: 面寬13.1米 進深10.9米 建筑面積: 358.0㎡ 土建造價: 53.0萬
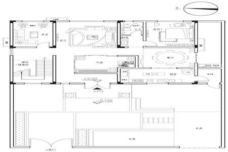
房子的東側是山坡,西側是道路。既結合了傳統文化,也呈現了采菊東籬下的田園光景。房子最終選擇新中式風格,配合庭院景色展現江南風光。房子的外立面以白色真石漆和清灰面磚體現建筑的婉約潔凈。屋頂選用傳統坡屋頂,正房上方比西側部分略高,使得建筑正面得以突出。
室內布局以中庭為中心向四周展開,客廳空間通透,與茶室和公衛相鄰。餐廳正對中庭,與廚房相連,方便用餐,而且在用餐時還可以讓居住者欣賞到外面的景色。
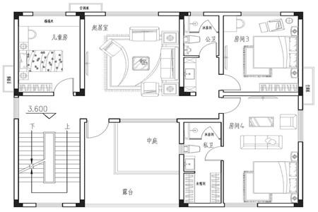
二層主要作為起居空間使用,兒童房正對樓梯間,其余兩間臥室位于南側。西南角主臥配有獨立衛生間和衣帽間。起居室正對中庭,如此開放空間讓整層看起來十分開闊舒適。
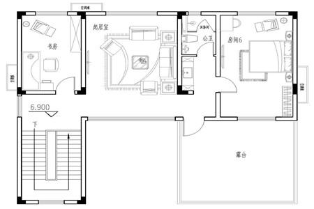
三層為居住者的自用空間,設計了書房、起居室、臥室和公衛。臥室面積充足,通過窗戶可直接看到露臺。超大露臺補充了二層露臺的觀景視角,也能為業主提供晾曬衣物的空間。露臺圍繞中庭設計,使得業主能享受到庭院和中庭的兩部分景觀。
三層露臺與二層露臺互相補充角度,使得建筑具有全面觀景視角。中庭與一層客廳中間采用落地窗,開闊視野將中庭天井效果發揮到最大。
中庭四周的玻璃將景色、陽光傳入室內,二層L型露臺圍繞中庭天井建立,提供了欣賞美景的不同角度。露臺護欄選用石膏材質,造型簡單大方,方便后續施工。
車庫位于道路一側,用大面積的玻璃做封頂,采用開敞形式,方便日常打理車輛。院墻以黑白兩色與主體建筑呼應,正面部分以橫向鏤空的樣式減少整體厚重感。
院門樣式簡單大方,木門與門樓整體風格一致,偏深的木色給人端莊典雅的感覺。門上海納百川的匾額是居住者對家人的期望,也是家庭文化在外部的展現。休息平臺和草坪綠植區占據庭院兩側,中間是活動空間,正中靠近院墻下方水景與中庭水景位于同一軸線上。從車庫踏過石階小路,路過不同景色進入室內,從細節處提升生活品質。
如果你想要建三層的房子,小編介紹的這套一定是個不錯的選擇。 圖紙之家-專注農村別墅/自建房設計18年,集合國內200余位經驗豐富的設計師,被評為口碑最好的農村建筑設計公司! |

120平二層別墅房屋設計圖,造型美觀、現代
占地:120平方米
小宅基地自建房設計圖,占地不到90平三層別墅圖紙
占地:87平方米左右
鄉下建房一層半戶型圖,占地160平米,帶閣樓
占地:多種戶型
復式三層雙拼別墅設計圖,客廳中空,旋轉樓梯
占地:350平方米
豪華三層別墅設計圖紙,全套施工方案帶效果圖
占地:130平方米
120多平米三層農村別墅設計圖,把實用做到極致,造價適中
占地:126.85平方米
好看實用農村2開間二層別墅設計圖,主體19萬
占地:117.36平方米
農村三層自建房子圖紙設計方案,開間11米左右
占地:151.96平方米
經典一層帶閣樓三合院別墅設計圖,18米乘9.5米
占地:118.63平方米
120平農村三層自建房屋設計圖,旋轉樓梯復式別墅戶型方案
占地:119.23平方米
新式三層別墅設計圖,客廳中空,占地125平米左右
占地:125平米
帶電梯的農村歐式雙拼三層豪宅別墅設計圖,樓梯電梯共用
占地:268.448平方米
三間三層房子設計圖,高端三層樓房設計圖,三層兩個大露臺
占地:170平方米
120平米三層別墅房屋設計圖,帶車庫,帶閣樓
占地:120平方米
鄉下三層大氣房子設計圖,外觀挺高大上的,主體29萬多
占地:132.48平方米
面寬13米三層新中式獨棟別墅設計圖,復式自建房戶型方案
占地:201.25平方米
鄉村兩層半150平帶閣樓別墅房屋設計圖,客廳大、臥室多
占地:150平方米
二層氣質現代小洋樓設計圖,堪比城市別墅,全村最美沒商量
占地:121.07
六開間三層農村自建別墅設計圖,盡享豪華舒適生活
占地:341.91平方米
200平方二層小別墅設計圖紙,含效果圖,歐式風格帶車庫
占地:197.6平方米
推薦:10套新農村自建房設計圖,2026年最新設計
閱讀次數:4825737次
100套鄉村別墅圖片大全,2026年最新設計
閱讀次數:2492203次
6款農村蓋一層平房的設計圖,10萬元就能建起來
閱讀次數:1852637次
這11個一層農村自建房別墅火爆了朋友圈!我最喜歡戶型十!你呢
閱讀次數:750268次
農村6萬元建一層小別墅圖,你敢相信嗎
閱讀次數:567686次
農村5萬塊就能自建房,6套普通房子設計圖分享,你沒看錯!
閱讀次數:419410次
8套農村漂亮三間平房圖片,非常適合在農村修建!
閱讀次數:411197次
農村自建房化糞池怎么做?附方案及施工過程
閱讀次數:391783次
農村一層三間平房設計圖,告別土氣養老房,讓人忍不住點贊
閱讀次數:350581次
新農村二層樓房圖片造價12萬,挑一套回家建房吧!
閱讀次數:349126次
