
|
自從看到村里面那么多人建房子用斜面屋頂之后,越來越多的人建房子也喜歡用這種屋面建造方式,不僅好看,還防水性比較好,但是這并不代表著平屋面設計的房子就不好了,防水性能只要按照施工圖上面的要求做了,同樣可以處理的很好,且造價低。 第一棟別墅:9.8×10米,在傳統的自建房中,大多數的屋面建造形式都是這樣子的,看著比較簡單,這款戶型外墻用白色調裝飾,框架結構,且廚房單獨建。
室內平面圖:首層設計有兩室兩廳一衛,廚房可以建在餐廳后面;二層設有四室一廳一衛,配室外生活陽臺;三層有一室一廳一衛,配較大的觀景露臺空間。
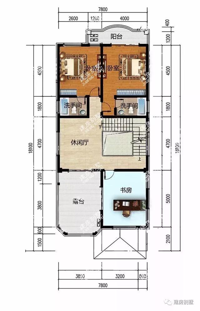
第二棟別墅:也是平屋頂設計的戶型,7.8×18.1米,這款戶型屋頂四周還用護欄給圍擋起來,這樣的好處就是安全、美觀且方便用來晾曬等。
室內平面圖:首層設有一室兩廳一廚一衛,配有開放式的休閑娛樂廳,因為進深比較大,所以每個面的采光需要顧及到;二層設有兩室一廳兩衛,主臥帶獨衛,外配生活陽臺;三層有兩室一廳,還有一間書房和室外觀景露臺。
哪怕是平屋頂設計的別墅,也同樣能展現出農村自建房的風采出來,外觀和布局的設計比傳統自建房要強百倍。 圖紙之家-專注農村別墅/自建房設計18年,集合國內200余位經驗豐富的設計師,被評為口碑最好的農村建筑設計公司! |

110平方米新農村實用現代的二層建筑設計圖紙帶外觀圖11X10米
占地:110平方米
大氣的美式三層別墅設計圖,外觀效果圖氣派、美觀
占地:148平方米
精致簡歐一層別墅設計圖,經典大氣百看不厭
占地:139.57平方米
90平小戶型四層房屋設計圖,農村自建別墅推薦
占地:90平方米
新農村三層房屋住宅設計圖紙大全(含效果圖)
占地:122平方米
七字型設計新中式一層別墅設計圖,類合院風格
占地:267.3平方米
160平方米歐式一層半別墅施工設計圖紙13X13米
占地:160平方米
占地170平米2026新款三層別墅設計圖片及設計方案
占地:170平方米
別致美觀的簡歐二層別墅房屋設計圖,含外觀效果圖
占地:145平方米
農村60萬三層別墅新款式設計圖,外觀和實用性并駕齊驅
占地:170平方米
180平方米新農村自建二層小別墅設計圖及效果圖,15X13米
占地:183平方米
農村建房兄弟雙拼兩層住宅設計圖,單戶150平米左右
占地:300平方米
120平米三層小別墅設計方案和效果圖,端莊大氣很經典
占地:120平方米
鄉村最美四合院設計圖及外觀效果圖片,國人的理想住宅
占地:280.62平方米
新農村四層獨棟復式別墅設計圖,設計豪華時尚
占地:140平方米
外觀造型對稱的二層別墅設計圖,老虎窗+挑空客廳
占地:175.2平方米
農村四層復式房屋設計圖紙,占地105平方米預算35萬左右
占地:105平方米
45萬新中式二層雙拼自建房別墅設計圖,平屋頂設計
占地:210平方米
三層樓房設計圖紙含效果圖,外觀造型高低錯落,別致大方
占地:152.4平方米
網紅款兩層別墅圖紙設計圖,外觀簡單好看,后面不開窗
占地:171平方米左右
推薦:10套新農村自建房設計圖,2026年最新設計
閱讀次數:4825737次
100套鄉村別墅圖片大全,2026年最新設計
閱讀次數:2492203次
6款農村蓋一層平房的設計圖,10萬元就能建起來
閱讀次數:1852637次
這11個一層農村自建房別墅火爆了朋友圈!我最喜歡戶型十!你呢
閱讀次數:750268次
農村6萬元建一層小別墅圖,你敢相信嗎
閱讀次數:567686次
農村5萬塊就能自建房,6套普通房子設計圖分享,你沒看錯!
閱讀次數:419410次
8套農村漂亮三間平房圖片,非常適合在農村修建!
閱讀次數:411197次
農村自建房化糞池怎么做?附方案及施工過程
閱讀次數:391783次
農村一層三間平房設計圖,告別土氣養老房,讓人忍不住點贊
閱讀次數:350581次
新農村二層樓房圖片造價12萬,挑一套回家建房吧!
閱讀次數:349126次
