
|
小戶型別墅在農村建房中是最受歡迎的,很多農村地區宅基地的使用面積有限,建個小戶型既實用,又能節省造價。還有一些人因為不在農村常住,所以房子不需要建的太大,造價經濟實用,外觀時尚溫馨,方便偶爾回來度假,過個過節回家也能住的舒服,做個庭院,種上花草果樹,就是別墅豪宅,這樣的生活城里根本享受不到。今天小編給大家整理了5款,每一款占地面積都是70.80平的,一層的二層的三層的都有。主體都是10幾20萬,最高不超過25萬。 戶型一
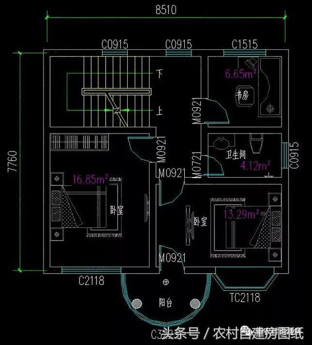
開間:8.51米 進深:7.76米 占地面積:70平方米 建筑面積:194.86平方米 高度:10.017米 結構形式:磚混結構 主體造價:19萬左右
一款漂亮又時尚的三層別墅,環形360度景觀窗時尚又浪費,二層半設計,功能齊全又實用。一層主要為生活區,客廳,廚房、餐廳和衛生間齊全,客廳很大,農村就需要大客廳。二樓主要為休息區,有三間臥室和衛生間,屋頂半層還可以設置2間臥室。 戶型二
開間:9米 進深:6.9米 占地面積:69.87平方米 建筑面積:135.84平方米 高度:8.37米 結構形式:框架結構 主體造價:15萬左右
這是一款一層半的小戶型農村別墅,占地雖然只有70平,但是卻五臟俱全。一樓除了廚房、餐廳客廳外還有一間臥室。二樓2間臥室加上起居室,也可以改成三間臥室。 戶型三
開間:8.22米 進深:8.92米 占地面積:74.9平方米 建筑面積:194.86平方米 高度:140.09米 結構形式:磚混結構 主體造價:15萬左右
二層小別墅,外觀經典大氣。之前發過很多的建房案例就有這一款,這款把尺寸改小了,占地只有70多平。平面設計把空間利用到極致,小小的二層設計了5間臥室,而且廚房、餐廳、客廳衛生間都有。 戶型四
開間:9.3米 進深:7.5米 占地面積:75.08平方米 建筑面積:150.16平方米 高度:8.83米 結構形式:框架結構 主體造價:17萬左右
這款小別墅很簡單,施工容易,造價便宜。帶堂屋的設計符合農村生活的基本要素。二層4間臥室,一般的農村三代同堂足夠住了。 戶型五
開間:6.67米 進深:11.76米 占地面積:81.07平方米 建筑面積:225.14平方米 高度:12.32米 結構形式:磚混結構 主體造價:25萬左右
小戶型農村別墅也能做出豪宅的效果很讓人驚喜,立面用是多是長方形的落地窗,使空間感變的很強,給人的視覺很大氣。室內布局也是以舒適實用為主,5室4衛3廳的使用空間,絕對夠用。 圖紙之家-專注農村別墅/自建房設計18年,集合國內200余位經驗豐富的設計師,被評為口碑最好的農村建筑設計公司! |

300平四層別墅房屋設計圖,含外觀效果圖,大面積、多臥室
占地:261平方米
帶車庫二層別墅設計圖及效果圖,帶車庫的農村二層樓房推薦
占地:123平方米
帶車庫現代三層樓房設計圖,外觀效果圖時尚、美觀
占地:160平方米
農村三間三層豪宅設計圖,自建別墅推薦戶型,帶地下室
占地:170平方米
新款現代一層小別墅設計圖,農村自建平房推薦戶型
占地:多戶型可選
帶車庫農村二層樓房設計圖,外觀漂亮,精致
占地:154平方米
100來平復式旋轉樓梯二層簡歐別墅設計圖,戶型實用
占地:101.523平方米
歐式復式型三層別墅施工設計圖紙及效果圖大全
占地:164平方米
農村二間二層房子設計方案圖,造型小巧精致,10米乘12米
占地:110平方米
2026年最新款四間二層別墅設計圖,15米乘13米
占地:171.01平方米
新中式復式三層別墅設計圖紙,最美的新中式別墅
占地:130平方米
110平方米農村兩層別墅設計效果圖及圖紙,12X12米
占地:110平方米
二層復式雙拼別墅設計圖(客廳中空),含外觀效果圖
占地:195平方米
現代新中式四層復式別墅房屋設計圖,旋轉樓梯,含效果圖
占地:150平方米
100平內的三層豪華歐式別墅房屋設計圖紙 ,簡歐風格
占地:94平方米左右
三層半復式別墅設計方案,全套設計圖+效果圖
占地:160平方米
新農村三層自建房屋設計圖,含外觀圖片
占地:136平方米
農村三間兩層樓房設計圖,帶車庫,戶型簡單實用
占地:140平方米
戶型簡單實用的三層農村房屋設計圖紙,復式結構,大面積開窗,
占地:170平方米
農村二層舒適好房,這款四開間別墅設計圖真的很不錯
占地:220.46平方米
推薦:10套新農村自建房設計圖,2026年最新設計
閱讀次數:4825737次
100套鄉村別墅圖片大全,2026年最新設計
閱讀次數:2492203次
6款農村蓋一層平房的設計圖,10萬元就能建起來
閱讀次數:1852637次
這11個一層農村自建房別墅火爆了朋友圈!我最喜歡戶型十!你呢
閱讀次數:750268次
農村6萬元建一層小別墅圖,你敢相信嗎
閱讀次數:567686次
農村5萬塊就能自建房,6套普通房子設計圖分享,你沒看錯!
閱讀次數:419410次
8套農村漂亮三間平房圖片,非常適合在農村修建!
閱讀次數:411197次
農村自建房化糞池怎么做?附方案及施工過程
閱讀次數:391783次
農村一層三間平房設計圖,告別土氣養老房,讓人忍不住點贊
閱讀次數:350581次
新農村二層樓房圖片造價12萬,挑一套回家建房吧!
閱讀次數:349126次
