
|
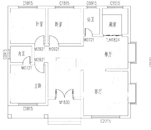
要是說最經濟最實惠的別墅,比起二層三層四層,一層肯定更占優勢。如果在城里買過房的人都清楚,而且家中人口不是很多的話,與其花大價錢建個豪華別墅,還不如蓋個一層自建房,既省錢,住的又舒服。今天這款一層別墅造價只要18萬,外觀大氣,布局實用,建出來同樣氣派有面子! 第一套 圖紙介紹 層數:結構形式:磚混結構 主體造價:10-18萬 開間:12.6米 進深:10.2米 占地面積:135.11平方米 建筑面積:170.21平方米 效果圖:
白色外墻,清新簡潔大方,采用紅色屋頂中和,別墅外觀不再顯得單調無味。小臺階上來是小走廊,可以擺放養植的花花草草,旁邊放個躺椅,也是很不錯的選擇。進門是玄關,客廳隱私性極高,方便招待親朋好友,室內布局合理實用,在農村的青山綠水間,這樣的居所舒適又愜意。 平面圖:
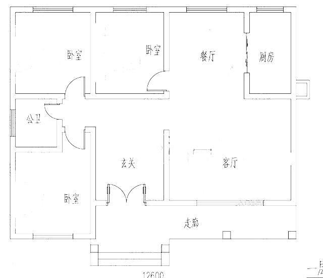
一層:客廳、玄關、3臥室、公衛、廚房、餐廳、走廊 第二套 圖紙屬性 層數:一層 結構形式:磚混結構 主體造價:10-18萬 開間:11.5米 進深:10.5米 占地面積:125.79平方米 建筑面積:145.79平方米 效果圖:
這款別墅外觀很漂亮,藍色的坡屋頂非常的打眼,老虎窗很別墅。外觀用了文化石做裝飾,很是雅致,適合對生活有追求有品味的家庭建。室內設計有3室2廳2衛,多一個衛生間,人多不用搶,而且具有私密性,很實用。 平面圖:
一層:玄關、客廳、主臥(附內衛)、2臥室、公衛、廚房、餐廳 圖紙之家-專注農村別墅/自建房設計18年,集合國內200余位經驗豐富的設計師,被評為口碑最好的農村建筑設計公司! |

別致美觀的簡歐二層別墅房屋設計圖,含外觀效果圖
占地:145平方米
最接農村地氣的二層農村小別墅,造價30萬左右,經濟實用
占地:170平方米
16米X12米四開間二層別墅設計圖,造型美觀經濟實用
占地:198平方米
實用型二層別墅設計方案,占地120平米簡單大方最耐看
占地:120平方米
小型三層別墅cad建筑圖紙帶效果圖,帶屋頂露臺
占地:101平方米左右
一層半復式帶閣樓別墅設計圖,含外觀圖片
占地:150平方米
最好看的農村三層樓房設計圖,占地113平米,小平米大格局
占地:110平方米
新中式農村三層房屋效果圖及施工圖,140平方米左右
占地:140平方米
175平方米二層別墅設計CAD圖紙及效果圖大全,中式風格
占地:175平方米
二層新中式別墅設計施工圖,廚房在配房,占地140平米
占地:141平方米
2026二層農村新款別墅圖片及施工圖,新中式風格古典大氣
占地:200平方米
預算10萬的簡單二層半別墅房屋設計圖,外觀簡單,造價低
占地:90平方米
大氣農村一層自建別墅方案,絕對讓人羨慕的“平房”
占地:158.39平方米
160平方米左右二層自建別墅設計圖,對稱設計,23萬建好
占地:157平方米左右
110平方米新農村三層別墅設計圖,含外觀效果圖
占地:109平方米
160平方米經典鄉村二層房屋設計圖紙
占地:160平方米
170平方米新農村實用的三層雙拼設計圖紙,帶公用堂屋!
占地:173.62平方米
二層農村小別墅設計圖,造價經濟實惠,參考價30萬以內
占地:140平方米
人氣最旺的二層半別墅設計圖紙,復式挑空二層半自建房
占地:122.679平方米
歐式大氣新農村三層別墅豪宅設計圖,外觀高端,對稱設計
占地:225平方米左右
推薦:10套新農村自建房設計圖,2026年最新設計
閱讀次數:4825737次
100套鄉村別墅圖片大全,2026年最新設計
閱讀次數:2492203次
6款農村蓋一層平房的設計圖,10萬元就能建起來
閱讀次數:1852637次
這11個一層農村自建房別墅火爆了朋友圈!我最喜歡戶型十!你呢
閱讀次數:750268次
農村6萬元建一層小別墅圖,你敢相信嗎
閱讀次數:567686次
農村5萬塊就能自建房,6套普通房子設計圖分享,你沒看錯!
閱讀次數:419410次
8套農村漂亮三間平房圖片,非常適合在農村修建!
閱讀次數:411197次
農村自建房化糞池怎么做?附方案及施工過程
閱讀次數:391783次
農村一層三間平房設計圖,告別土氣養老房,讓人忍不住點贊
閱讀次數:350581次
新農村二層樓房圖片造價12萬,挑一套回家建房吧!
閱讀次數:349126次
