
|
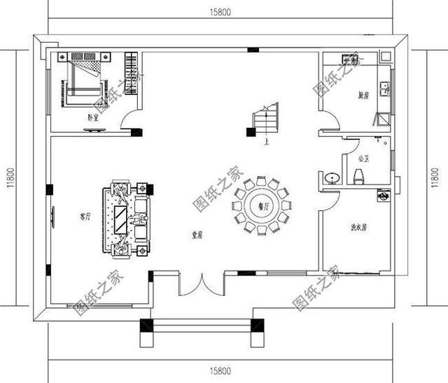
老家建棟房,相信大多數人都因為面積不合適而發愁,喜歡的房子設計有很多,但卻不太適合自己家里的面積,接下來小編就介紹5款180平左右的農村二層房屋圖,其實在老家建一棟簡單實用的小別墅,符合自己的生活需求和審美,好好布局室內,看有沒有適合你們家宅基地的? 第一款:農村最漂亮二層歐式別墅設計圖及戶型圖,帶車庫設計![]() 面寬16.5米(含車庫),宅基地小不建車庫也可以的,提前了解不吃虧,圖紙看了快收藏,許多人還在為找不到好戶型發愁,這款漂亮的二層歐式別墅,設計太贊了!大氣典雅的裝飾,精美華麗的造型,以及別具一格的色彩搭配深受農村朋友的喜愛。 占地面積:16.56m*12.36m,180.366平方米; 建筑層高:二層; 建筑高度:11.398米(含屋頂); 設計功能: 一層戶型:客廳、廚房、餐廳、臥室(帶衛生間)、臥室、衛生間; 二層戶型:小客廳、棋牌室、臥室(帶衛生間)x2、臥室x3、衛生間、露臺、陽臺 ![]() ![]() 第二款:75平方米二層別墅設計圖以及戶型圖,風格氣派![]() ![]() ![]() 這個新的房子面積不大,清新自然,風格爽利,而且造型又不復雜,建造成本也不高,非常適合自己建,漂亮又耐看,功能設計非常齊全,布局大方合理,精致戶型,動靜分明空間,舒適格局,南北通透、四面采光,自在生活清新享受 占地面積:15.8m*11.8m,175平方米左右; 建筑層高:二層; 建筑高度:10.2米(含屋頂); 設計功能: 一層戶型:堂屋、客廳、廚房、餐廳、臥室、衛生間、洗衣房; 二層戶型:客廳、臥室(帶衛生間)、臥室x2、衛生間、露臺 ![]() ![]() 第三款:面寬15米美觀大氣的二層別墅設計圖以及戶型圖,簡約大氣![]() 整體為歐式風格,方正的戶型,沒有過多的裝飾,僅一對歐式和落地窗就顯得格外豪華氣派,搭配藍色瓦片,視覺沖擊感更強,看上去色彩更豐富。入戶即是客廳,餐廳與客廳之間設有隔斷,保證了房間整體的空氣清新,兩間臥室,都帶有通風采光窗,居住環境較為舒適,二層客廳做了挑空設計,加大了整體的視覺效果,三間臥室,足夠一家人使用,而且還有空余房間,節假日親朋好友可以留宿. 占地面積:15m*11.2m,173.28平方米左右; 建筑層高:二層; 建筑高度:10.168米(含屋頂); 設計功能: 一層戶型:客廳、廚房、餐廳、棋牌室、臥室(帶衛生間)、臥室、衛生間; 二層戶型:客廳上空、客廳、書房、臥室x3、衛生間x2、陽臺; ![]() ![]() 第四款:雅致簡歐風二層別墅設計圖以及戶型圖,外觀經典浪漫![]() 這套簡歐風,外形時尚大氣,獨特性強,內部布局利用合理,實現高品質生活,別墅采用米白色真石漆巧妙裝飾外墻,穩重大氣,美觀大方。搭配藍色瓦屋頂,點綴提升格調。方形,高端上檔次。時尚與實用兼得,貼心十足。 占地面積:12.6m*13.2m,178平方米; 建筑層高:二層; 建筑高度:11.248米(含屋頂); 設計功能: 一層戶型:堂屋、客廳、廚房、餐廳、臥室(帶衛生間)、臥室、衛生間、洗衣房; 二層戶型:臥室(帶衛生間)x2、臥室x4、衛生間x2、陽臺 ![]() ![]() 第五款:二層歐式房設計圖以及戶型圖,外觀簡約大氣,戶型簡單實用![]() 別墅外墻以白色噴漆搭配灰色坡屋頂,色調清新素雅,亮點自然就是飄窗的設計,既增加建筑的層次感又加大了室內采光,閑來無事看看風景和朋友小聚都是極好的選擇。門口的玄關很好 占地面積:15.76m*8.76m,174.2平方米左右; 建筑層高:二層; 建筑高度:10.376米(含屋頂); 設計功能: 一層戶型:玄關、客廳、廚房、餐廳、臥室(帶衛生間)、臥室(帶衛生間、衣帽間)、衛生間; 二層戶型:客廳、臥室x2、臥室(帶衛生間、衣帽間)、衛生間、露臺 ![]() ![]() 以上就是小編推薦的農村180平米左右的二層別墅設計圖以及戶型圖,喜歡的就給自家親戚看看!
圖紙之家-專注農村別墅/自建房設計18年,集合國內200余位經驗豐富的設計師,被評為口碑最好的農村建筑設計公司! |

14x11米一層平房戶型設計圖,帶前后門設計,好看不貴還實用!
占地:143.59平方米
農村2026新式好看又簡單的二層樓房設計圖,外形美觀,家用足夠
占地:200平方米
新中式農村自建三層別墅房屋施工,12x10米簡潔雅致
占地:121.77平方米
帶商鋪挑高的三層別墅房屋設計圖,商鋪挑高,層高比較高
占地:118平方米
二層復式樓房設計圖,平實接地氣的平面布局
占地:180平方米
農村二層別墅優選設計圖,戶型小巧精致,顏值與實用并存!
占地:95.25平方米
經濟小戶型二層中式四合院(三合院)設計圖紙,帶堂屋和庭院
占地:143.544平方米
130平米最新氣派農村四層樓房設計圖,四層樓房圖片
占地:130平方米
2026年新款一層住宅別墅設計圖紙,中式風格漂亮極了
占地:207平方米
小型三層別墅cad建筑圖紙帶效果圖,帶屋頂露臺
占地:101平方米左右
160平方米農村實用型二層自建小別墅設計施工圖紙15米*10米
占地:160平方米
小型新中式二層小別墅圖紙設計方案,好看造價不高
占地:232.98平方米
鄉村高檔四層豪華別墅自建房設計圖,一層不帶餐廳廚房戶型
占地:147平方米
農村一層中式三合院太香了!白墻黛瓦,有院有景超宜居
占地:364.72平方米
140平方米三層豪華新中式別墅設計圖紙帶外觀效果圖
占地:141.35平方米
帶車位的鄉村二層別墅建筑結構設計圖,全套施工圖140平
占地:139.85平方米
堂屋共用五間雙拼別墅設計圖,適合二兄弟的二層別墅
占地:292.5平方米左右
160平方米現代新農村四合院兩層別墅施工圖紙及效果圖
占地:157平方米
豪華三層歐式風格別墅圖紙設計,挑空客廳大面寬大戶型
占地:225.72平方米
帶地下室的農村三層雙拼別墅設計圖,復式戶型,面寬23米
占地:261.6平方米左右
推薦:10套新農村自建房設計圖,2026年最新設計
閱讀次數:4825737次
100套鄉村別墅圖片大全,2026年最新設計
閱讀次數:2492203次
6款農村蓋一層平房的設計圖,10萬元就能建起來
閱讀次數:1852637次
這11個一層農村自建房別墅火爆了朋友圈!我最喜歡戶型十!你呢
閱讀次數:750268次
農村6萬元建一層小別墅圖,你敢相信嗎
閱讀次數:567686次
農村5萬塊就能自建房,6套普通房子設計圖分享,你沒看錯!
閱讀次數:419410次
8套農村漂亮三間平房圖片,非常適合在農村修建!
閱讀次數:411197次
農村自建房化糞池怎么做?附方案及施工過程
閱讀次數:391783次
農村一層三間平房設計圖,告別土氣養老房,讓人忍不住點贊
閱讀次數:350581次
新農村二層樓房圖片造價12萬,挑一套回家建房吧!
閱讀次數:349126次
