
|
對于在農村建別墅,很多人都各執己見,但很大一部分人都會選擇建大面積的別墅。一是可以使日常的活動范圍能有足夠的空間,二是可以使別墅在外觀和室內都能顯現出豪華的氣勢,但是如果是宅基地較小的小面積戶型怎么辦呢?其實不難,小面積的戶型可以在設計上下功夫,只要外觀造型設計夠硬氣,室內布局設計夠合理,那么建出來的別墅也會相當的大氣豪華。不比那些大面積的別墅差。今天小安就給大家帶來一款小面積的戶型,不用再怕被鄰居嘲笑了。
這是一款67平的三層小面積別墅,別墅的一層外墻采用的是卡其色的文化石裝飾,二三層用的是白色的真石漆進行噴飾,兩種裝飾混合相搭,顯得別墅非常的別致和時尚。頂部屋檐和大夢都采用的紅色,象征著生活的紅火,非常的吉利。別墅的正面設有大面積的落地窗,能很好的提高別墅的美觀和實用性。別墅采用的是框架的結構形式,開間7.5米,進深8.5米,主體造價15萬左右。
一層的左側設有車庫,便于家中的車輛停放,保護私有財產。右側是臥室,臥室的對門是公共衛生間,便于日常生活起居。公共衛生間位于北側樓梯口處,能便于氣味的排出。北面還設有一間大臥室。
二層北面設有廚房和餐廳,兩者相連能很好的相互利用空間,減少對室內的油煙干擾。南面設有寬敞的客廳,客廳帶有陽臺,使室內有環境更加的優雅別致。西南角設有一間獨立的茶室,茶室的門開到陽臺,環境相對安靜和優雅,就算用來招呼客人也能是非常的有面子。
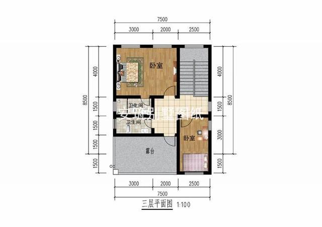
三層設有兩間臥室,呈對角分布,臥室出門一側便是公共衛生間,便于日常生活起居。南面大露臺的設計,能夠很好的滿足日常的晾曬需求,也能用于聚會娛樂。 圖紙之家-專注農村別墅/自建房設計18年,集合國內200余位經驗豐富的設計師,被評為口碑最好的農村建筑設計公司! |

一層帶閣樓農村別墅設計圖,多得一層可變空間,太值了!
占地:165.89平方米
獨棟別墅設計戶型圖帶外觀效果圖,雙向樓梯設計
占地:155平方米
開間13米左右新農村2層自建房別墅戶型設計圖,簡潔實用
占地:170平方米
二層農村雙拼別墅帶露臺設計圖,20×11.8米,單戶110平米
占地:220平方米
簡單二層農村別墅設計圖,占地適中,簡約造型,實用又經濟!
占地:128.4平方米
一層中式三合院別墅設計圖,白墻黛瓦引領潮流
占地:177.94平方米
經典小戶型新農村房屋住宅設計圖,10萬左右
占地:80平方米
二層帶地下室樓房設計方案,效果圖+全套施工圖
占地:160平方米
新中式二層雙拼別墅農村自建房子設計圖紙,面寬19米
占地:240平方米左右,單
12x13米豪華三層農村別墅設計圖,宅基地上的貴族人生
占地:156平方米
100平二層精致小別墅房屋設計圖,外觀精致、漂亮
占地:100平方米
造價30萬多的三層簡歐新農村別墅設計施工圖紙及效果圖
占地:133平方米左右
新農村一層小別墅設計方案,四臥二廳耐看實用,方便打掃更便捷
占地:153.55平方米
農村四層復式房屋設計圖紙,占地105平方米預算35萬左右
占地:105平方米
農村大氣四層樓房圖片及全套設計圖紙,復式客廳旋轉樓梯
占地:143平方米
120平方米現代新農村二層自建房設計圖,造型時尚好看
占地:120平方米
美式風格鄉村兩層小別墅自建房設計圖,外觀圖好看
占地:150平方米
戶型好的農村三層樓房設計圖,帶外觀效果圖
占地:110平方米
最實用中式一層三合院別墅設計圖,簡約精致布局實用
占地:162.49平方米
110平方米新農村三層別墅設計圖,含外觀效果圖
占地:109平方米
推薦:10套新農村自建房設計圖,2026年最新設計
閱讀次數:4825737次
100套鄉村別墅圖片大全,2026年最新設計
閱讀次數:2492203次
6款農村蓋一層平房的設計圖,10萬元就能建起來
閱讀次數:1852637次
這11個一層農村自建房別墅火爆了朋友圈!我最喜歡戶型十!你呢
閱讀次數:750268次
農村6萬元建一層小別墅圖,你敢相信嗎
閱讀次數:567686次
農村5萬塊就能自建房,6套普通房子設計圖分享,你沒看錯!
閱讀次數:419410次
8套農村漂亮三間平房圖片,非常適合在農村修建!
閱讀次數:411197次
農村自建房化糞池怎么做?附方案及施工過程
閱讀次數:391783次
農村一層三間平房設計圖,告別土氣養老房,讓人忍不住點贊
閱讀次數:350581次
新農村二層樓房圖片造價12萬,挑一套回家建房吧!
閱讀次數:349126次
