
|
現在國家發展越來越好,人們的生活也開始富裕了。農村好多人都開始建上了大別墅,但是對于常年在外的人來說,卻開始糾結了。自己常年在外不回家,平常就父母在家住,建太大的房子閑著也是浪費,蓋房子無非就是想讓老家的父母住的舒適。今天小編就給大家推薦四款農村1層5間平房圖片,非常適合父母在家居住,房間多,過年回去自己也可以有地方住。
戶型一:新農村現代一層平房別墅設計圖,占地不到130平米
![]() ![]() 圖紙介紹:本戶型占地130平方米左右,外觀效果圖時尚漂亮,戶型經典實用,歐式風格簡約氣派,外觀結構非常經典耐看,老虎窗的設計,讓整個建筑非常時尚。室內設有四室兩廳一廚兩衛,客廳主臥設有飄窗,戶型通透,顏值超高,滿足大多數農村生活居住需求。 占地面積:13m*9.3m,129.36平方米; 建筑層高:一層; 建筑高度:6.193米(含屋頂); 設計功能: 一層戶型:客廳、廚房、餐廳、臥室X3、臥室(帶衛生間);
戶型二:農村一層平房設計圖,占地160平方米
![]() ![]() ![]() 圖紙介紹:這款別墅雖然只有一層,但是外觀也很豪華,四間臥室,也足夠一般家庭人口居住了。 占地面積:16.0m*10.0m,160平方米左右; 建筑層高:一層; 建筑高度:6.0米(含屋頂); 設計功能:客廳、餐廳、廚房、臥室(帶衛生間)×2、臥室×2、衛生間、儲藏間;
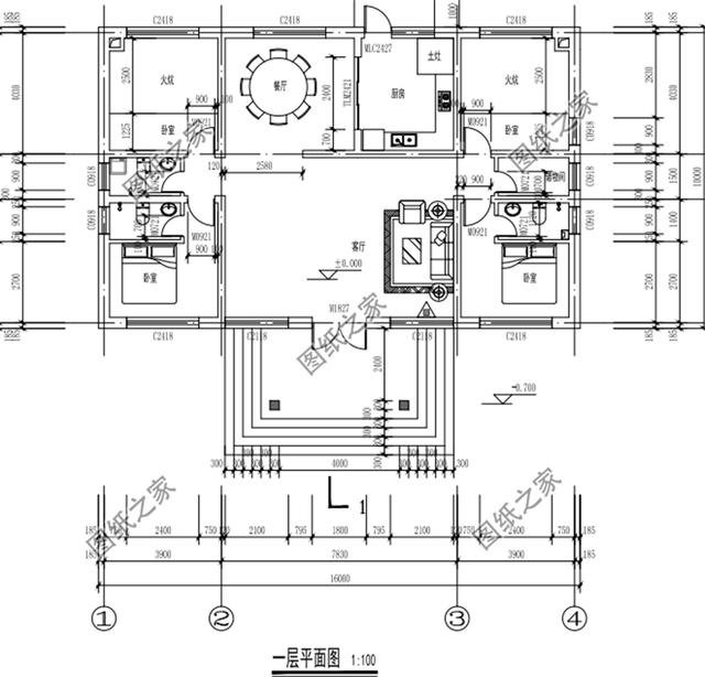
戶型三:簡單實用的農村一層五間自建房設計圖,造價17萬左右
![]() ![]() ![]() 圖紙介紹:本戶型占地20x12米,外觀設計非常漂亮,室內布局合理實用,休閑娛樂與日常生活于一體,屋頂上設有老虎窗,增強閣樓層上的采光及通風,又因為設有閣樓層,起到隔熱的作用,所以在夏天時,一層也不會悶熱。 占地面積:20m*12m,238平方米左右; 建筑層高:一層; 建筑高度:7.13米(含屋頂); 設計功能: 一層戶型:客廳、玄關、餐廳、廚房、儲藏室、娛樂室、主臥(帶衛生間)x2、臥室x3、衛生間;
戶型四:農村一層別墅設計圖,色調清新,占地220平方米
![]() ![]() ![]() 圖紙介紹:這款別墅戶型占地220平方米,色調清新靚麗,門前長廊娛樂休閑、日常晾曬都是一個非常好的位置,外觀大氣優雅,羅馬柱的使用更是錦上添花。 占地面積:17.6m*12.6m,220平方米左右; 建筑層高:一層; 建筑高度:6.6米(含屋頂); 設計功能:客廳、餐廳、廚房、、臥室×5、衛生間×2; 好啦,這次的介紹就到這里了,如果你還想要別的戶型,下方留言告訴小編。
圖紙之家-專注農村別墅/自建房設計18年,集合國內200余位經驗豐富的設計師,被評為口碑最好的農村建筑設計公司! |

帶架空層的農村一層小別墅設計圖,大氣穩重又很實用
占地:123.5平方米
230平方農村雙拼別墅設計圖,26x11米自建房屋戶型
占地:230平方米
90平小戶型四層房屋設計圖,農村自建別墅推薦
占地:90平方米
120平米農村40萬三層別墅自建房款式,簡歐風格
占地:120平方米
造型新穎漂亮的農村二層現代風別墅設計圖,老少皆宜的外觀
占地:144.54平方米
大戶型三層別墅設計圖,高貴大氣,占地面積將近300平
占地:273.33平方米
進深9米的農村自建一層養老房戶型方案,三室二廳兩衛
占地:133.2平方米
農村四間兩層樓房設計圖,外觀時尚,戶型實用
占地:180平方米
農村二層帶車庫樓房設計圖,帶外觀效果圖片
占地:125平方米
二開間小戶型設計三層農村自建房方案,經濟型適合小宅基地建房
占地:107.02平方米
300平大戶型豪華三層別墅設計圖,帶總統套房
占地:300平方米
占地180平方米二層鄉村小洋樓設計戶型圖及圖紙,外觀華麗
占地:180平方米
兩層15萬農村自建房設計圖,農村蓋房設計大全圖
占地:130平方米
二層農村兄弟雙拼別墅設計圖,一墻之隔互不干擾,鄰居看了都喜
占地:164.24平方米
備受好評二層半歐式別墅設計圖,五開間對稱設計,布局合理又實
占地:192.48平方米
150平二層別墅房屋設計圖,現代風格,造型精致
占地:150平方米
簡單農村自建二層樓房設計圖,南北通透
占地:140平方米
130平四間二層小洋樓設計圖,含外觀圖片
占地:130平方米
鄉下建房一層戶型圖及全套圖紙,養老房,還是一層好
占地:210平方米
170平方米雙拼別墅戶型建筑設計圖紙及外觀效果圖,復式單戶85平
占地:170平方米
推薦:10套新農村自建房設計圖,2026年最新設計
閱讀次數:4825737次
100套鄉村別墅圖片大全,2026年最新設計
閱讀次數:2492203次
6款農村蓋一層平房的設計圖,10萬元就能建起來
閱讀次數:1852637次
這11個一層農村自建房別墅火爆了朋友圈!我最喜歡戶型十!你呢
閱讀次數:750268次
農村6萬元建一層小別墅圖,你敢相信嗎
閱讀次數:567686次
農村5萬塊就能自建房,6套普通房子設計圖分享,你沒看錯!
閱讀次數:419410次
8套農村漂亮三間平房圖片,非常適合在農村修建!
閱讀次數:411197次
農村自建房化糞池怎么做?附方案及施工過程
閱讀次數:391783次
農村一層三間平房設計圖,告別土氣養老房,讓人忍不住點贊
閱讀次數:350581次
新農村二層樓房圖片造價12萬,挑一套回家建房吧!
閱讀次數:349126次
