
|
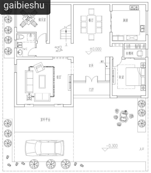
采光效果是我們在建房的時候必須要考慮的問題,因為一套采光好的戶型和采光不好的相比起來,住在采光好的房子里,人會覺得更舒服一些,心態也會更好,相反如果室內光線太暗,人會容易心情不好,甚至會抑郁,長期住下去就容易患病。 所以說,采光非常非常重要。 今天這款二層半現代別墅,項目位于山東,基地東側是胡同小路,西、南、北三側都與鄰居家住宅緊鄰。 由于建筑三側均有鄰居家住宅遮擋且北側無法開窗,因此平面設計需要解決室內采光的問題,具體設計如下: ![]() 戶型信息: 開間:13.4米 進深:10.5米 總建筑面積:326平方米 土建造價:53萬 ![]() ![]() 【室內布局】 ![]() 一層:車庫,玄關,客廳,臥室(帶衣帽間),娛樂室,公衛,廚房,餐廳 ![]() 二層:起居室,休閑區,臥室?2(帶陽臺,衣帽間),臥室,書房,公衛 ![]() 閣樓層:活動空間,閣樓,露臺 圖紙之家-專注農村別墅/自建房設計18年,集合國內200余位經驗豐富的設計師,被評為口碑最好的農村建筑設計公司! |

180平高端歐式三層別墅圖紙設計,大戶型復式客廳
占地:182.016
四合院別墅設計效果圖及平面圖,全套施工圖紙
占地:220平方米
回農村建養老房,還是一層平頂戶型最合適,不單單只是省錢
占地:102.24平方米
新農村小戶型4層自建房三層半別墅設計圖,平屋頂設計
占地:95平方米
兄弟兩戶雙拼房屋設計圖及外觀圖片,戶型合理
占地:185平方米
185平米自建三層別墅房屋施工設計圖紙及效果圖
占地:187平方米
三層半復式別墅設計方案,全套設計圖+效果圖
占地:160平方米
150平米農村兩層樓房設計圖,簡單大氣時尚
占地:150平方米
新農村三層別墅設計圖紙及效果圖,全套cad建筑圖
占地:119平方米
新中式二層農村別墅設計圖紙及外觀圖,面寬15米左右
占地:148.86平方米
120平方米新農村二層自建房屋設計圖紙大全14x9米
占地:120平方米
造價30萬左右的三層樓房設計圖,占地120平米左右
占地:120平方米
新中式農村三層四合院別墅設計圖,四合院風格的別墅圖
占地:177平方米
30萬農村小別墅設計圖片,30萬別墅設計戶型推薦
占地:130平方米
歐式大氣三層小別墅設計圖紙,外觀、造型大方,色彩明快
占地:140平方米
100平方米實用二層半小別墅設計圖紙(帶閣樓層),住著安逸
占地:100平方米左右
140平方米新農村四層房屋設計圖紙,農村自建推薦
占地:140平方米
一層時尚農村自建別墅方案,低至10萬的造價,適合住家養老
占地:131.04平方米
農村三層帶地下室住宅設計圖及圖片,房內設計了兩個套間
占地:210平方米
140平方米一層歐式新農村平房設計圖,主體造價僅11萬
占地:141.218平方米
推薦:10套新農村自建房設計圖,2026年最新設計
閱讀次數:4825737次
100套鄉村別墅圖片大全,2026年最新設計
閱讀次數:2492203次
6款農村蓋一層平房的設計圖,10萬元就能建起來
閱讀次數:1852637次
這11個一層農村自建房別墅火爆了朋友圈!我最喜歡戶型十!你呢
閱讀次數:750268次
農村6萬元建一層小別墅圖,你敢相信嗎
閱讀次數:567686次
農村5萬塊就能自建房,6套普通房子設計圖分享,你沒看錯!
閱讀次數:419410次
8套農村漂亮三間平房圖片,非常適合在農村修建!
閱讀次數:411197次
農村自建房化糞池怎么做?附方案及施工過程
閱讀次數:391783次
農村一層三間平房設計圖,告別土氣養老房,讓人忍不住點贊
閱讀次數:350581次
新農村二層樓房圖片造價12萬,挑一套回家建房吧!
閱讀次數:349126次
