
|
現在農村生活越來越好了,現在建房大部分都不是單單只為了居住,而是賦予了更多的作用和價值體現,為了追求美,各種設計精巧的鄉村別墅一棟棟拔地而起,各種構思精妙的農村小樓一幢幢映入眼簾,但是我們把過多的精力都投入到了美觀上,相對而言,在建筑的實用性上就降低了要求,尤其是對一些家庭而言,子女們長期不在家,房子長期靠父母老人搭理,新房子不僅沒有給老人帶來方便,反而給他們增加了不小的負擔,這可不是我們建房的初衷。本期,我們就推薦三套經濟適用型的鄉村小別墅,可能他的外觀不是那么的很豪華,但是居住的便利和舒適性絕對沒得說。 8款農村別墅自建房一: 房屋信息 ? 占地尺寸:10.5米x9.9米 ? 占地面積:103.62平方 ? 建筑面積:207.42平方米 ? 建筑結構:磚混結構 ? 建筑高度:9.9米 ? 造價估算:18萬
效果圖
此款別墅占地規整,三層設計有效利用宅地面積,多邊形采光窗,是別墅亮點,豐富了建筑立面語言的同時,也更好地優化了采光。 整體設計精致巧妙,內設5臥2客廳雙露臺等,另外還根據農村居住習慣設有堂屋神位,將品質生活與傳統習俗相結合,適合廣大地區建造。
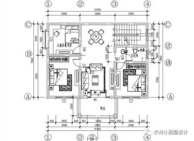
一層平面圖: 一 層:玄關、客廳、餐廳、廚房、臥室、車庫、衛生間
二層平面圖: 二 層:小客廳、臥室(附書房)、臥室X3、公衛、陽臺
8款農村別墅自建房二
如圖所示,從效果圖上可以看到這座二層小樓一層有一間車庫。現在汽車便宜了,農村人也買得起,到哪兒去方便又有面子,就如同多年前的自行車。入門前有臺階加高,防止雨水倒流進房內,很符合農村傳統生活習慣。
從一層平面圖來看,一層設計了客廳、廚房、餐廳和臥室。臥室和車庫之前隔著樓梯間,休息時比較安靜。一層的洗手間挨著客廳,客人來了也使用比較方便。
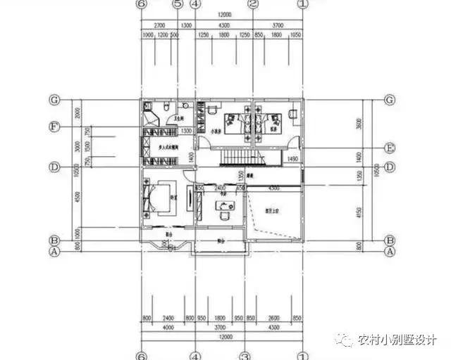
二層平面圖上設計了一間帶陽臺的主臥和四間次臥,以及一間書房。主臥室有獨立衛生間,三個次臥共用一間衛生間,一家人生活甚至來了親戚都足夠有地方住了。 8款農村別墅自建房三
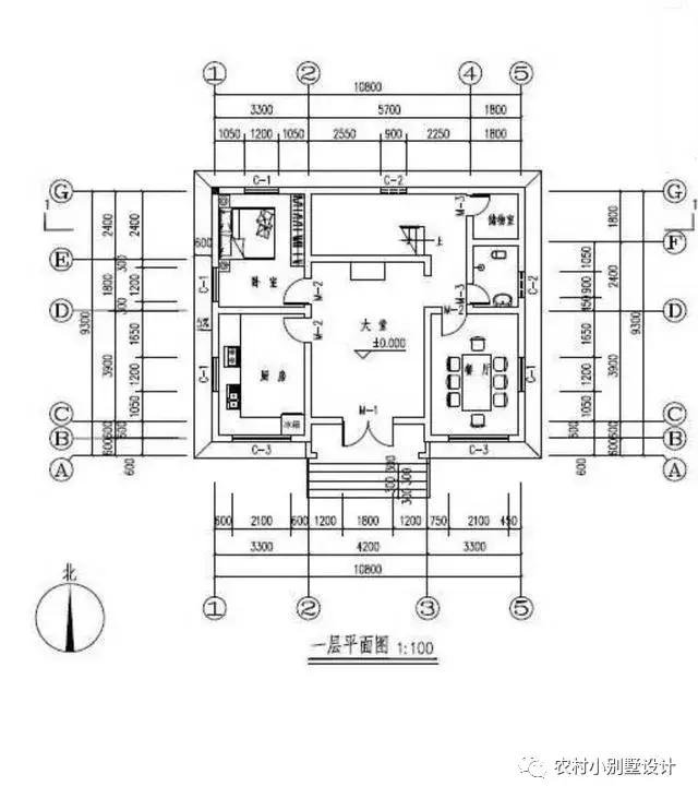
非常經典的二層坡屋頂小建筑,建筑設計尺寸:開間10.7米,進深7.9米,建筑占地面積90平米,建筑高度10.5米; 設計功能:建筑上三級臺階進入門廊,進入建筑內部首先是門廳,西側是客廳,東側是一間臥室,陰面是廚房、餐廳、樓梯間和衛生間;二層陽面設計有帶陽臺的起居室和兩間臥室,陰面設計一間兒童、娛樂區和獨立衛生間;
8款農村別墅自建房四
帶走廊設計的二層農村別墅,建房尺寸是11.1×12米,磚混結構的建造主體。
平面布局說明:一層有兩室兩廳一廚兩衛,入戶的私密性處理的比較好;二層設有三室一廳兩衛一個書房,靠近走廊是有一個合適的空閑空間,做個小小的休閑茶室或者娛樂棋牌室還是可以的。 8款農村別墅自建房五
很驚艷的一款二層小樓,但是驚艷的不是他的霸氣,而是他的清新淡雅之氣;建筑戶型方正,造型別致,入戶設走廊,二層設露臺;建筑裝飾以簡潔為主,基線用仿石墻面磚,一層用小塊墻面裝,二層用外墻漆,搭配效果出眾,建筑窗型設計優美,寬敞明亮。建筑設計尺寸:開間10.1米,進深9.3米,
8款農村別墅自建房六
帶走廊設計的二層別墅戶型:建房尺寸是12×11.8米,磚混結構建造。
平面布局說明:一層有糧食兩廳一處一衛,這個戶型在一層的外面就設立一個小走廊的,客廳是中空的而且樓梯采用旋轉式設計,這種設計在兩層小別墅中來說是相當難得的。 8款農村別墅自建房七
非常霸氣的二層別墅,兩種配色方案都很大氣時尚,獨特的窗型設計讓建筑靈性十足,建筑設計尺寸:開間12米,進深10.5米,建筑占地面積128.7平米,總建筑面積251.7平米,建筑總高度9.38米; 設計功能:上兩級臺階是豪華的大門廳,入戶是霸氣的廳堂和挑空客廳、西側是一間臥室,陰面設計有廚房、餐廳、棋牌室和獨立衛生間;二層陽面設計有帶陽臺的書房和大臥室,陰面設計有兩間兩間臥室,衣柜和獨立衛生間;
8款農村別墅自建房八 二層
二層半的豪華別墅,設計精妙絕倫,自帶開放式小車庫,建筑設計尺寸:開間10.8米,進深9.3米,建筑總高度7.94米; 設計功能:建筑上五級臺階是高聳的大門廳,入戶是豪華的大堂,陽面設計廚房和餐廳,陰面設計一間臥室,樓梯間、儲藏室和衛生間;二層設計起居室、兩間帶陽臺臥室,其中一間帶書房,另有儲藏室和衛生間;
以上5套設計方案,建筑占地小巧,外部設計精妙,雖然沒有什么豪華的裝飾,但是霸氣的外形和精致的入戶效果讓人眼前一亮,內部結構簡單,布局合理,空間利用率高,5套戶型的主體造價均不超20萬,是經濟適用型小別墅的典范。 在農村自己又有宅基地,建造房子,也就二十萬元左右吧。再加上裝修以及電氣設備,全部下來也就三十多萬元左右的樣子吧。房子占地小,留給院子的面積大,再有錢買輛好車,去自家的種植園時可以開上去勞動,生活也可過得像歐美人那樣灑脫。 主體20萬,加上裝修也不到30萬。用在城市首付都不夠成本,在老家建一棟3-4個臥室的小平層,或者是小占地的二層,即可以給父母養老,自己把根留住。 小而美,經濟實用,又不浪費。另外農村小別墅設計還今家帶來10套造價20內的農村實用自建房戶型,最低的造價僅需15萬哦,看看你喜歡哪一套吧。
想要以上別墅全套施工圖紙還是想要根據您的地基及要求來定制設計獨一無二的個性化別墅大宅? 圖紙之家-專注農村別墅/自建房設計18年,集合國內200余位經驗豐富的設計師,被評為口碑最好的農村建筑設計公司! |

現代二層樓房圖片造價25萬,含全套設計圖,風格獨特
占地:多戶型可選
帶商鋪挑高的三層別墅房屋設計圖,商鋪挑高,層高比較高
占地:118平方米
180平方現代風三層別墅設計圖,經典大氣,百看不厭
占地:180.48平方米
130平帶閣樓兩層半別墅房屋設計圖,含外觀效果圖
占地:130平方米
二層樓房圖片及施工圖紙,占地160平米左右,帶車庫
占地:160平方米
140平米平屋頂二層新農村自建房設計圖,極簡主義設計 ,實用優
占地:143平方米
異形宅基地二層農村別墅設計圖,現代風時尚又大氣
占地:242.03平方米
方正對稱二層農村自建別墅施工圖,經濟實用舒適大氣
占地:129.6平方米
豪華三層別墅設計圖紙,全套施工方案帶效果圖
占地:130平方米
爆款120平米三層農村別墅房屋設計圖,室內布局功能齊全,色彩搭
占地:120平方米
經濟實惠一層戶型圖,農村養老房舒適至上,簡約而不失溫馨
占地:147.5平方米
最美中式農村別墅二層三間的房子圖,帶土灶房,娛樂室,大露臺
占地:180平方米
簡約大氣農村自建三層別墅設計圖,布局合理,很適合農村人自建
占地:139.471平方米
面寬13米三層新中式獨棟別墅設計圖,復式自建房戶型方案
占地:201.25平方米
新中式徽派帶露臺別墅設計圖,構思精巧,自然得體
占地:124.82平方米
左右對稱的歐式高端三層別墅設計圖,外觀氣派、豪華
占地:200平方米
占地170平米2026新款三層別墅設計圖片及設計方案
占地:170平方米
200多平方米新農村雙拼別墅設計圖紙,堂屋和樓梯共用
占地:207平方米左右
面寬22米的高端三層自建房別墅設計圖,功能齊全
占地:222.47平方米
對稱型歐式別墅設計圖,穩重實用,開間18米,適合全國農村建
占地:228.2 平方米
推薦:10套新農村自建房設計圖,2026年最新設計
閱讀次數:4825737次
100套鄉村別墅圖片大全,2026年最新設計
閱讀次數:2492203次
6款農村蓋一層平房的設計圖,10萬元就能建起來
閱讀次數:1852637次
這11個一層農村自建房別墅火爆了朋友圈!我最喜歡戶型十!你呢
閱讀次數:750268次
農村6萬元建一層小別墅圖,你敢相信嗎
閱讀次數:567686次
農村5萬塊就能自建房,6套普通房子設計圖分享,你沒看錯!
閱讀次數:419410次
8套農村漂亮三間平房圖片,非常適合在農村修建!
閱讀次數:411197次
農村自建房化糞池怎么做?附方案及施工過程
閱讀次數:391783次
農村一層三間平房設計圖,告別土氣養老房,讓人忍不住點贊
閱讀次數:350581次
新農村二層樓房圖片造價12萬,挑一套回家建房吧!
閱讀次數:349126次
