
|
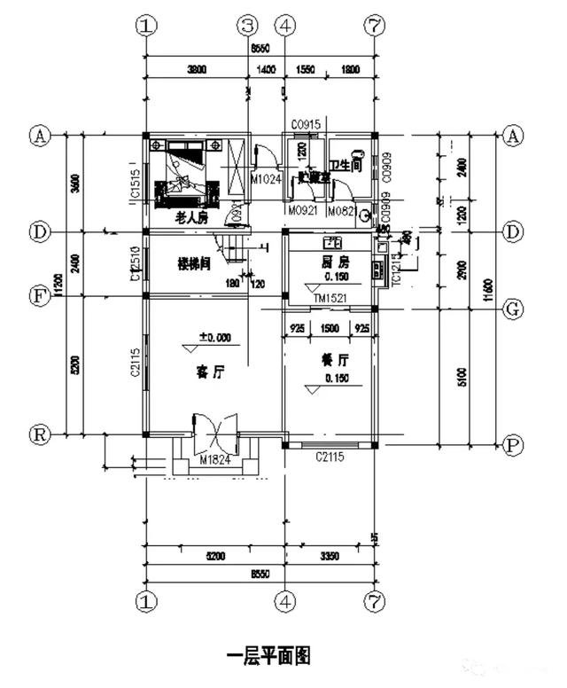
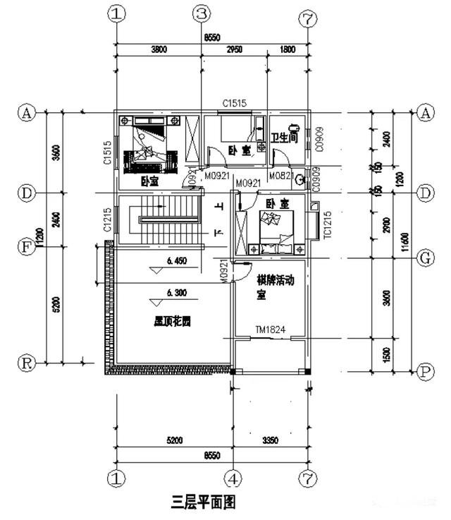
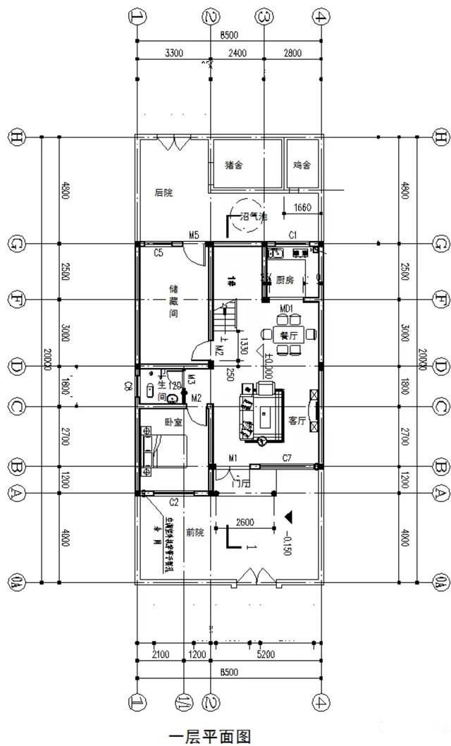
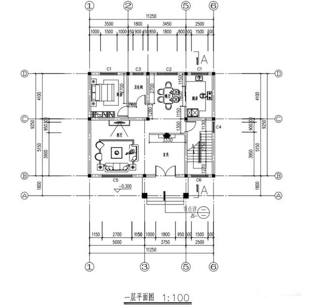
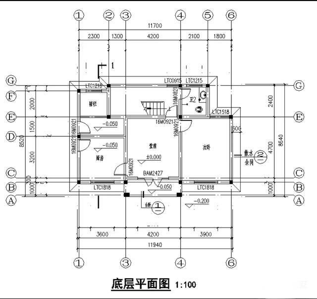
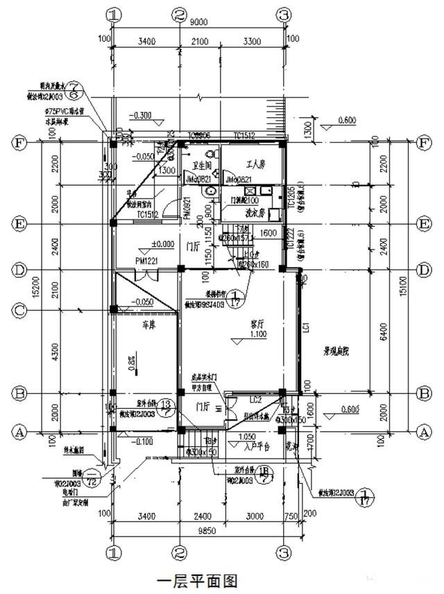
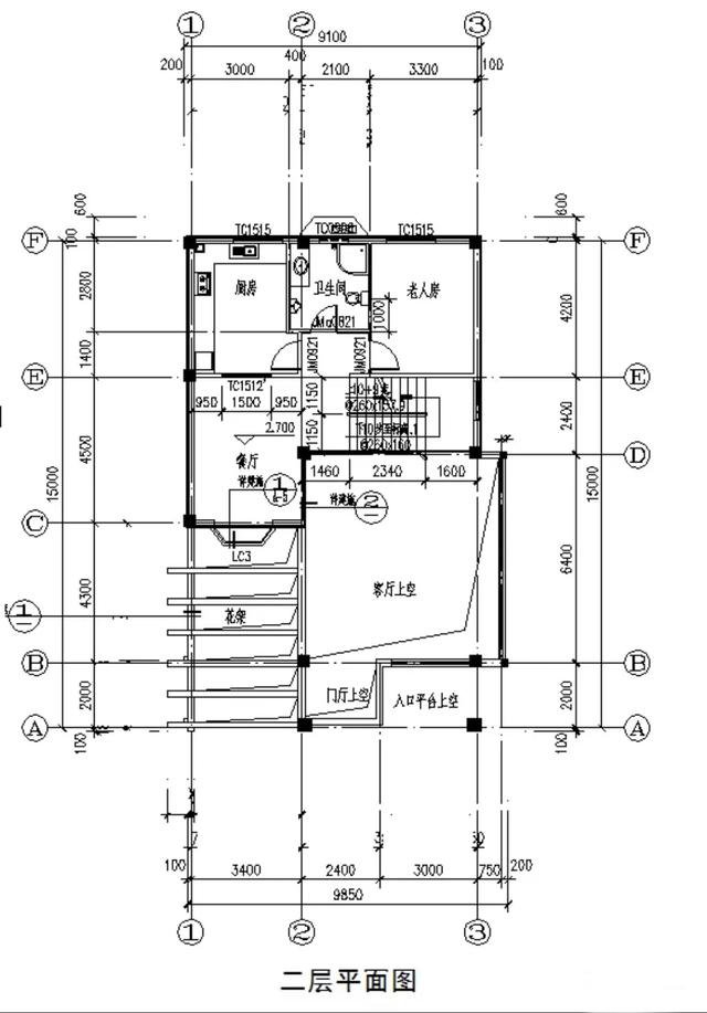
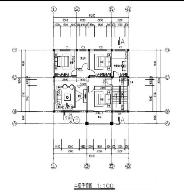
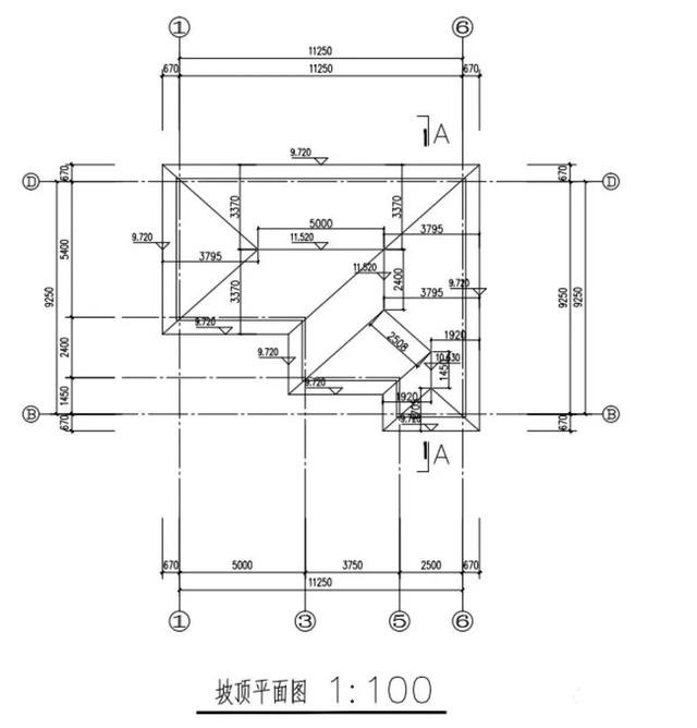
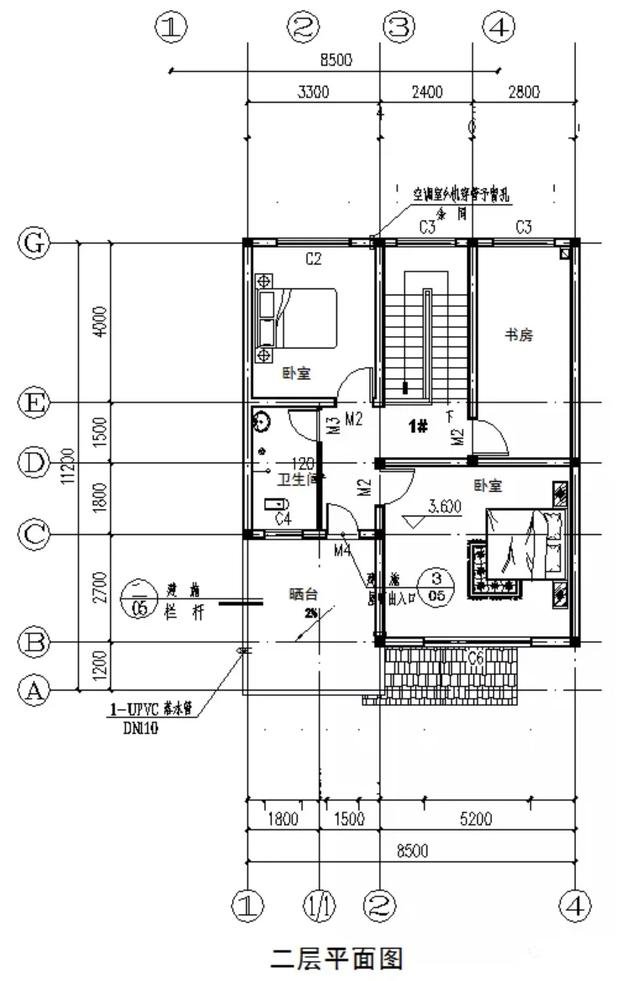
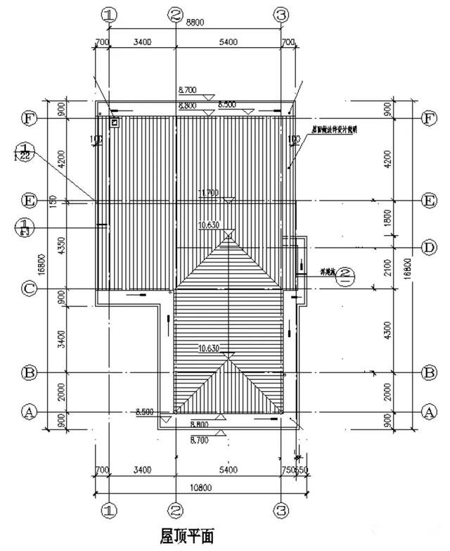
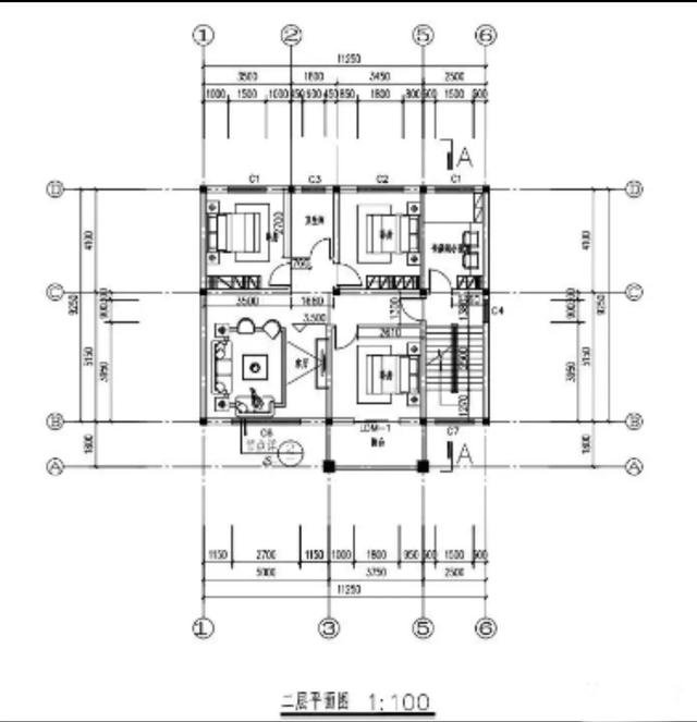
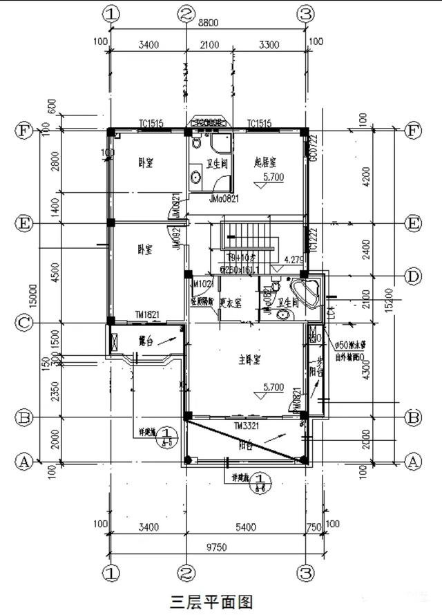
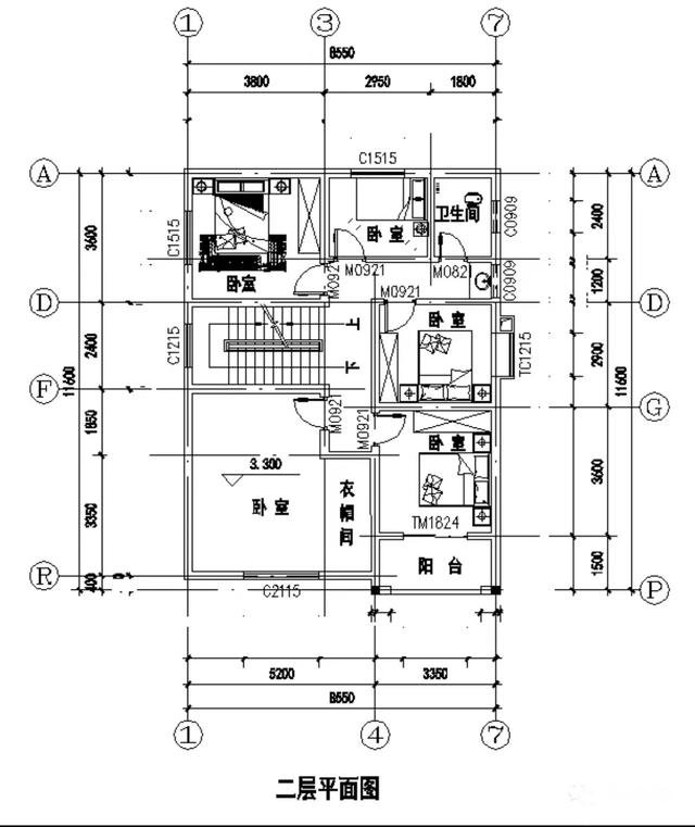
現在我們農村的宅基地,尤其是南方,已經越來越小,一般家庭也就百平左右。不過宅基地大有大的好處,小也有小的妙處,只要能夠合理利用,都能建出漂亮滿意的別墅來。今天就為大家推薦5棟實用的小戶型鄉村別墅,適合大多數人的宅基地。 1 ![]() 這套別墅為三層獨棟別墅,開間11.25米 ,進深9.25米,占地面積109.4平方米。采用藍色波型瓦屋面,外觀造型簡潔大方,整體功能分區合理,房間尺度設計適宜,空間利用率高,向陽均采用大窗戶設計,通光性極好。整體效果較好,外觀色彩搭配偏淡雅,土豪可自主選擇土豪顏色。建筑參考造價23萬左右。 ![]() 一層設有入門玄關(帶神位)、客廳、餐廳、廚房、臥室、樓梯間、衛生間。 ![]() 二層設有客廳、臥室(帶大陽臺)、臥室2間、兒童房、衛生間。衛生間位于2間臥室的交匯處,滿足自家人口的居住需求。 ![]() 三層設有臥室3間、涼亭、衛生間、大露臺。露臺可以曬一些農作物,或是衣物。 ![]() 2 ![]() 本戶型為三層歐式獨棟別墅,開間11.94米,進深8.64米,建筑占地面積101.73平方米。外觀造型方正,屋頂采用磚紅瓦,外墻涂料選擇紅色和黃色;窗戶面積大,提供充足的光線和通風。主體造價參考33萬。 ![]() 一層設有堂前、臥室、廚房、衛生間、豬欄。臥室適合老人居住;廚房有側門可進出,通往豬欄非常方便。 ![]() 二層設有客廳、2間臥室、衛生間、陽臺。 ![]() 三層設有客廳、臥室、衛生間、陽臺、露臺。陽臺和露臺俱全,可以作為晾曬場所或者布置上桌椅聊天賞景。 ![]() 3 ![]() 本戶型為三層小戶型自建房,開間8.55米,進深11.6米,占地面積99.18平方米,外墻選用淺黃色外墻磚和咖啡色文化石,屋頂為橘紅色波紋瓦,大面積使用玻璃,屋內采光充足,整體看上去十分美觀,時尚大方。主體造價24萬左右。 ![]() 一層設有客廳、餐廳、廚房、老人房、衛生間、貯藏室、樓梯間。老人房出門即是衛生間,具有人性化設計;客廳和餐廳有所隔斷,保證一定私密性,功能分區適宜。 ![]() 二層設有5間臥室、衣帽間、衛生間、陽臺。臥室數量足,適合家中人口多,每個人都有獨立的居住空間,如有需要也可將小臥室改為書房用。每間房都設有窗戶,采光通風良好。 ![]() 三層設有3間臥室、棋牌活動室、屋頂花園、衛生間。空閑臥室可作為客房,提供來客的休息,也可作為儲藏間,堆放雜物;活動室和花園,滿足休閑及晾曬需求。 ![]() 4 ![]() 本戶型為二層農村別墅,開間8.5米,總進深20米(主體11.2米;前院4米;后院4.8米),占地面積94.7平方米,外墻配色主要采用經典的磚紅色文化石和米色涂料,再加上白色弧形門斗,質樸田園,前后有庭院,帶豬舍雞舍和車庫。主體造價15-18萬左右。 ![]() 一層:前后院、客廳、廚房、餐廳、臥室、農具儲藏間、衛生間。客廳和餐廳沒有做隔斷處理,使空間顯得非常開闊;臥室離衛生間近,適合老人居住;儲藏間可以作為車庫使用,有專門通往后院的小門,方便出行;后院內有豬舍雞舍,前院也可以種植蔬菜,滿足平時日常生活需求。 ![]() 二層:臥室、書房、衛生間、曬臺。書房可以當成娛樂室,作為休閑空間豐富了家人的業余生活;曬臺可以曬一些農作物,或是衣物。 ![]() 5 ![]() 本戶型為三層小別墅,開間:9.85米,進深15.1米,占地面積106.69平方米,外觀造型具有英倫風范,高貴時尚典雅,可以做聯排別墅,帶車庫和景觀庭院,南北通透,可以滿足三代人的私密生活。主體造價30萬(僅供參考)。 ![]() 一層:入戶平臺、門廳、客廳、車庫、洗衣房、工人房、衛生間、景觀庭院。車庫設計的易于入庫、出庫,有小門連通室內,使得進出方便;入戶平臺與景觀庭院相連,可以當戶外茶室,在這里賞景閑聊;客廳采用挑空設計,更寬敞大氣;工人房可以作為雜物間,儲存農具。 ![]() 二層:花架、客廳上空、餐廳、廚房、衛生間、老人房。設計花架為別墅增添特色,可供觀賞;封閉式廚房避免油煙散發;老人房離衛生間近,方便家中老人使用。 ![]() 三層:起居室、主臥室(附衛生間、更衣室)、2間臥室、衛生間、露臺、陽臺。三個臥室,足以滿足日常及招待所需,主臥還帶衛生間和衣帽間,私密舒適。 ![]() 宅基地小不用愁,選個好戶型,小宅基地照樣建漂亮別墅,這5款精致小戶型就很贊。 圖紙之家-專注農村別墅/自建房設計18年,集合國內200余位經驗豐富的設計師,被評為口碑最好的農村建筑設計公司! |

農村五間房子設計圖,大戶型別墅設計圖推薦
占地:240平方米
16x14米三層雙拼別墅設計圖,外觀精致大氣內里實用,兄弟建房上
占地:217.28平方米
簡歐風格二層別墅設計圖,經典不過時大氣時尚,漂亮的不像話!
占地:205.68平方米
自建帶電梯的三層豪華別墅設計圖,建好有面子,面寬16米
占地:194平方米左右
農村7字形漂亮房子設計圖及外觀效果圖
占地:189.3平方米
面寬16米三層法式別墅設計圖,設計新穎別致,建成后美不勝收
占地:162.07平方米
20萬左右普通農村房子設計圖,二層簡約小別墅
占地:140平方米
兄弟雙拼三層小戶型別墅設計圖紙,160平方米(單戶80平)
占地:163平方米
簡約實用農村自建房戶型圖,美觀經濟又通透,南北通透住得爽!
占地:160.6平方米
帶地下車庫的三層別墅設計圖,160平復式戶型
占地:159.03平方米
歐式風格三層別墅建筑設計圖,復式樓中樓結構
占地:138平方米
兄弟合建房新農村三層雙拼別墅建筑圖紙及效果圖,300平方米
占地:301平方米
120平方米農村四層別墅設計圖,含全套施工圖
占地:120平方米
經典中式三合院設計,一層空間實用大氣,輕松實現理想家園!
占地:160.53平方米
100平左右農村一層平房小洋樓建筑設計圖紙,14米×8米
占地:98平方米
雅致的鄉下二層蓋別墅設計圖紙,造價35萬左右
占地:178平方米
農村兩層新中式自建房屋設計圖,受歡迎的帶小配房戶型
占地:多戶型可選
新款現代一層小別墅設計圖,農村自建平房推薦戶型
占地:多戶型可選
農村三層蓋房設計圖大全,最新的設計,最新的戶型
占地:150平方米
農村四間一層房屋設計圖,160平方米,用來養老正合適!
占地:160平方米
推薦:10套新農村自建房設計圖,2026年最新設計
閱讀次數:4825737次
100套鄉村別墅圖片大全,2026年最新設計
閱讀次數:2492203次
6款農村蓋一層平房的設計圖,10萬元就能建起來
閱讀次數:1852637次
這11個一層農村自建房別墅火爆了朋友圈!我最喜歡戶型十!你呢
閱讀次數:750268次
農村6萬元建一層小別墅圖,你敢相信嗎
閱讀次數:567686次
農村5萬塊就能自建房,6套普通房子設計圖分享,你沒看錯!
閱讀次數:419410次
8套農村漂亮三間平房圖片,非常適合在農村修建!
閱讀次數:411197次
農村自建房化糞池怎么做?附方案及施工過程
閱讀次數:391783次
農村一層三間平房設計圖,告別土氣養老房,讓人忍不住點贊
閱讀次數:350581次
新農村二層樓房圖片造價12萬,挑一套回家建房吧!
閱讀次數:349126次
