
|
現在農村建房,大家都喜歡歐式風格的裝修風格,但是那么多款式,對于不同的設計,感覺上也是很不一樣的。對于家庭人口少的來說,不需要建太高的別墅,那樣不方便打掃,住不了那么多房間也是浪費,所以很多人選擇建個一層的小平房。今天小編就給大家推薦三款農村平房歐式裝修風格的設計圖,受到好多農村住戶一致好評,一起來看一看吧。
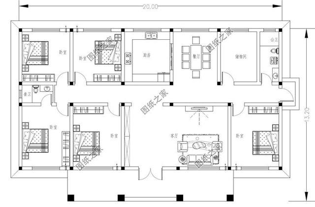
方案一:五間一層歐式平房別墅設計圖,占地216平方米,大戶型別墅
![]() ![]() 圖紙介紹:這款大戶型一層別墅戶型圖,占地216平方米,采用的是歐式風格,簡約方正的整體設計,看著很舒心;別墅正面的門廊設計氣派體面,巍峨的方形廊柱設計,精致又靈動。室內功能齊全,四室二廳,滿足一代人的居住需求! 占地面積:20m*13.2m,216平方米左右; 建筑層高:一層; 建筑高度:6.59米(含屋頂); 設計功能: 一層戶型:客廳、儲物間、廚房、餐廳、臥室(衛生間)、臥室x4、衛生間;
方案二:農村一層歐式別墅設計圖,占地140平方米,主體造價僅11萬左右
![]() ![]() 圖紙介紹:本戶型占地140平方米,造價11萬,外觀時尚新穎;室內空間都非常大而注重生活品質,入戶就通大客廳,餐廳和廚房相連,用餐方便,設有四個臥室,房間充裕,分別在建筑的四個角落,可以當老人房使用,非常舒適的居家體驗。 占地面積:14.5m*10.46m,141.218平方米左右; 建筑層高:一層; 建筑高度:6.4米(含屋頂); 設計功能: 一層戶型:客廳、臥室x4、廚房、餐廳、衛生間;
方案三:經濟實用型歐式一層小平房戶型圖
![]() ![]() ![]() ![]() 圖紙介紹:本戶型外立面精致大氣,門前小走廊可供晾曬和日常休閑,室內布局舒適合理,這款別墅無論在占地還是造價上,都特別適合農村建房的需求 占地面積:11m*10m,103平方米左右; 建筑層高:一層; 建筑高度:6.12米(含屋頂); 設計功能: 一層戶型:客廳、餐廳、廚房、主臥(帶衛生間)、臥室x2、衛生間、化糞池; 這樣的歐式風格別墅,真的是奢華、漂亮!不知道大家看完,有何感想?歡迎下方留言。
圖紙之家-專注農村別墅/自建房設計18年,集合國內200余位經驗豐富的設計師,被評為口碑最好的農村建筑設計公司! |

2026最新兄弟簡歐雙拼別墅設計圖紙,單戶130平米左右
占地:260平方米
農村三層帶車庫、帶露臺別墅設計圖,經典自建別墅設計方案
占地:160平方米
農村一層中式三合院別墅戶型圖,這才是適合中國人建的好房子
占地:218.77平方米
140平方米三層別墅設計圖紙,歐式帶外觀效果圖
占地:140平方米
農村大戶型中式二層四合院別墅設計圖含外觀效果圖,戶型經典、
占地:464平方米
時尚一層別墅圖,一層這樣蓋房最漂亮
占地:160平方米
農村三層雙拼別墅設計圖,帶外觀效果圖,推薦
占地:190平方米
鄉村三層別墅CAD建筑設計圖,110平方米戶型,帶效果圖和全套施工
占地:110平方米
80平方米農村四層房屋設計圖紙及效果圖
占地:80平方米
125平方米復式三層別墅房屋設計圖,房間多,采光好
占地:125平方米
占地90平米四層超現代風別墅設計圖,享受高品質生活
占地:3.76平方米
超實用的農村一層別墅設計圖,經濟實惠養老自住都不錯,
占地:128.35平方米
新農村小戶型4層自建房三層半別墅設計圖,平屋頂設計
占地:95平方米
兄弟合建房新農村三層雙拼別墅建筑圖紙及效果圖,300平方米
占地:301平方米
經典一層帶閣樓三合院別墅設計圖,18米乘9.5米
占地:118.63平方米
復式別墅農村四層霸氣豪宅設計圖紙,建好你就是村里第一
占地:136.356平方米
三間三層樓房設計圖紙,復試的設計,漂亮的一塌糊涂
占地:175平方米
三層兄弟雙拼別墅設計方案,外觀大氣布局實用,住的舒服
占地:197.67平方米
農村三層樓房設計圖紙及效果圖,經典自建圖紙
占地:201平方米
210平米新農村自建二層施工圖紙,預留電梯位,美觀大氣舒適實用
占地:208.5平方米
推薦:10套新農村自建房設計圖,2026年最新設計
閱讀次數:4825737次
100套鄉村別墅圖片大全,2026年最新設計
閱讀次數:2492203次
6款農村蓋一層平房的設計圖,10萬元就能建起來
閱讀次數:1852637次
這11個一層農村自建房別墅火爆了朋友圈!我最喜歡戶型十!你呢
閱讀次數:750268次
農村6萬元建一層小別墅圖,你敢相信嗎
閱讀次數:567686次
農村5萬塊就能自建房,6套普通房子設計圖分享,你沒看錯!
閱讀次數:419410次
8套農村漂亮三間平房圖片,非常適合在農村修建!
閱讀次數:411197次
農村自建房化糞池怎么做?附方案及施工過程
閱讀次數:391783次
農村一層三間平房設計圖,告別土氣養老房,讓人忍不住點贊
閱讀次數:350581次
新農村二層樓房圖片造價12萬,挑一套回家建房吧!
閱讀次數:349126次
