
|
現在建房大部分都不是單單只為了居住,而是賦予了更多的作用和價值體現。城市的住房面積花個百萬也就那么一層,環境也很嘈雜,想想都不劃算。鄉下就不同了,空氣質量好,居住空間舒適,如果面積小的話也不用發愁,下面給大家找了三款8*12自建房設計圖。小戶型也不用擔心,一起來看看吧。 第一套:四層歐式房屋設計圖紙這款占地100平,落地窗中嵌入了雕花,更添了幾分精致,裝飾柱立體感強,整體給人一種對稱的和諧美,露臺加強別墅通風采光作用,也可以晾曬衣物被子,屋頂還搭了涼亭,可以綠化成空中花園,一定會成為一道靚麗的風景。 占地面積:8.5m*12.2m,100平方米左右; 建筑層高:四層; 建筑高度:15.3米(含屋頂); 設計功能: 一層戶型展示:玄關、客廳,餐廳,廚房、老人房、衛生間; 二層戶型展示:起居室、主臥(帶書房、陽臺)、臥室(帶衣帽間)、衛生間; 三層戶型展示:起居室、主臥(帶書房、陽臺)、臥室(帶衣帽間)、衛生間; 四層戶型展示:起居室、臥室(帶衣帽間)、衛生間、涼亭、大露臺;
第二套:三層別墅設計圖紙這款帶全套建筑施工圖,結構施工圖和效果圖,帶車庫。本戶型采用坡屋頂,外觀、造型簡潔大方,色彩明快淡雅,整體平面布局緊湊、功能分區合理,房間尺度設計適宜,空間利用率高。 占地尺寸:面寬8.3米x進深12.2米 占地面積:90.7平方 造價預算:24萬 建筑總面積/總層高:238平米(不含入戶平臺、陽臺、露臺)/總高11.2米,屋檐口高9.6米 圖紙目錄:總平面示意圖、設計說明、底層平面圖、二層平面圖、三層平面圖、屋頂平面圖、東立面圖、南立面圖、西立面圖、北立面圖;
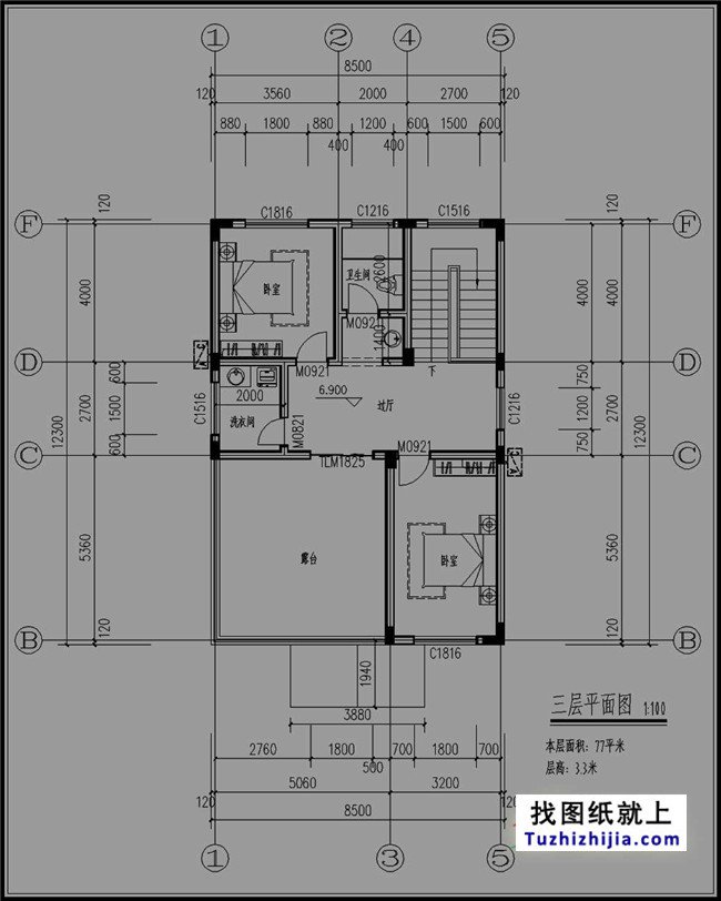
第三套:105平方米新農村三層別墅設計圖這款帶全套建筑施工圖,結構施工圖和效果圖,帶儲藏室,外觀小巧精致,內部格局合理,造價低,小戶型經典實用。 開間:8.5米 進深:12.3米(不含門樓) 占地面積:105平米 建筑面積:287平米 造價預算:30萬 規格數量:51張A3圖紙+3張A4彩色效果圖(CAD電子版) 設計功能: 一層:客廳、廚房、餐廳、臥室、衛生間、儲藏室; 二層:臥室X 3、衛生間、起居室、陽臺; 三層:臥室X2、衛生間、洗衣間、露臺。
以上就是8*12自建房設計圖,如果沒有中意的,歡迎搜索圖紙之家進行查看。 圖紙之家-專注農村別墅/自建房設計18年,集合國內200余位經驗豐富的設計師,被評為口碑最好的農村建筑設計公司! |

120平方兩層房子設計圖及圖片,外觀大方好看,內部結構合理
占地:120平方米
新中式三層樓房設計圖,外觀精致布局也是相當的樸實
占地:140平方米
適合農村自建四合院圖片,中式二層四合院別墅設計施工圖紙
占地:232平方米
精致小巧新農村二層別墅設計圖紙,占地90平米左右,造價15萬左
占地:90平方米
五間兩層農村自建房設計圖,大門居中真氣派,空間寬敞生活質量
占地:219.94平方米
130平帶閣樓兩層半別墅房屋設計圖,含外觀效果圖
占地:130平方米
小型雙拼一層平房設計圖,外觀古樸
占地:100平方米
100平左右農村一層平房小洋樓建筑設計圖紙,14米×8米
占地:98平方米
歐式兩層別墅設計圖及歐式效果圖,造價25萬左右
占地:150平方米
新款現代一層小別墅設計圖,農村自建平房推薦戶型
占地:多戶型可選
農村中式二層雙拼四合院別墅設計圖,兄弟父母三戶典雅大氣
占地:360平方米
高端大氣的農村四層樓房別墅設計圖,戶型真不錯,占地130多平
占地:135.31平方米
三層新農村自建房屋設計圖紙,占地120平米左右
占地:120平方米
村里蓋房圖紙大廳挑空的三層別墅設計圖,面寬不到10米
占地:122.4平方米
實用農村三層房屋設計圖紙,效果圖+全套施工圖
占地:113平方米
新式帶挑空客廳三層鄉村別墅設計圖,占地170平左右
占地:170平方米
2026新款農村三層雙拼自建房設計圖,占地150平米左右
占地:150平方米
農村現代新中式三合院設計圖及效果圖片,外觀好看極了
占地:多戶型可選
30萬農村小別墅設計圖片,30萬別墅設計戶型推薦
占地:130平方米
占地90平米四層超現代風別墅設計圖,享受高品質生活
占地:3.76平方米
推薦:10套新農村自建房設計圖,2026年最新設計
閱讀次數:4825737次
100套鄉村別墅圖片大全,2026年最新設計
閱讀次數:2492203次
6款農村蓋一層平房的設計圖,10萬元就能建起來
閱讀次數:1852637次
這11個一層農村自建房別墅火爆了朋友圈!我最喜歡戶型十!你呢
閱讀次數:750268次
農村6萬元建一層小別墅圖,你敢相信嗎
閱讀次數:567686次
農村5萬塊就能自建房,6套普通房子設計圖分享,你沒看錯!
閱讀次數:419410次
8套農村漂亮三間平房圖片,非常適合在農村修建!
閱讀次數:411197次
農村自建房化糞池怎么做?附方案及施工過程
閱讀次數:391783次
農村一層三間平房設計圖,告別土氣養老房,讓人忍不住點贊
閱讀次數:350581次
新農村二層樓房圖片造價12萬,挑一套回家建房吧!
閱讀次數:349126次
