
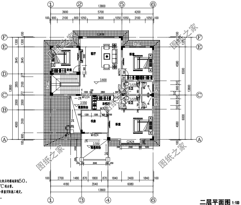
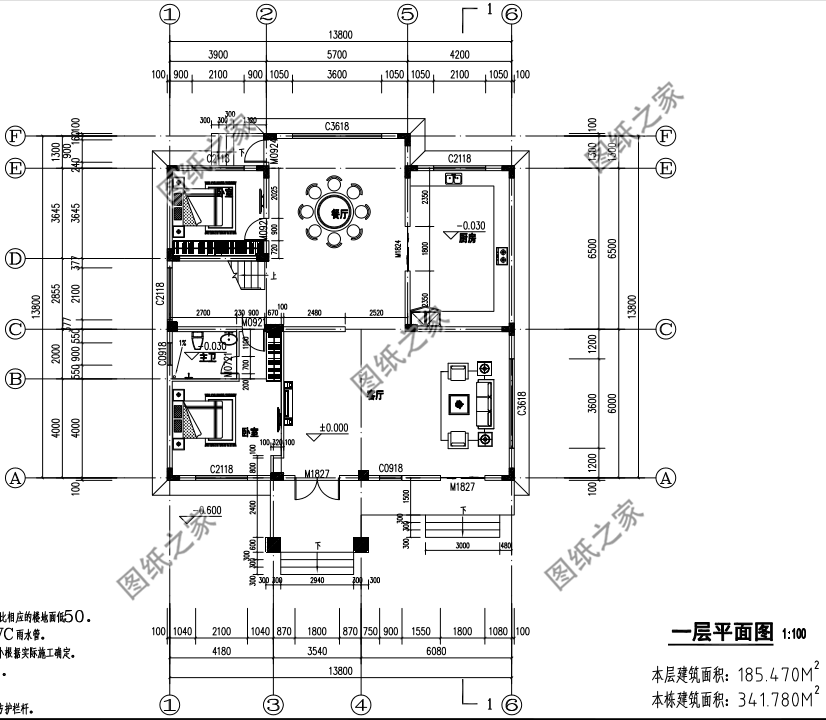
第一套:13×13米帶大套間新農村二層別墅自建房設計圖,外觀簡單時尚
別墅效果圖 占地面積:13.8m*13.8m; 建筑面積:185平方米左右; 建筑層高:二層; 建筑高度:9.19米(含屋頂); 設計功能: 一層戶型:客廳、廚房、餐廳、臥室(帶衛生間)、臥室; 二層戶型:客廳、臥室(帶衣帽間書房衛生間)、臥室x2、衛生間、觀景陽臺;
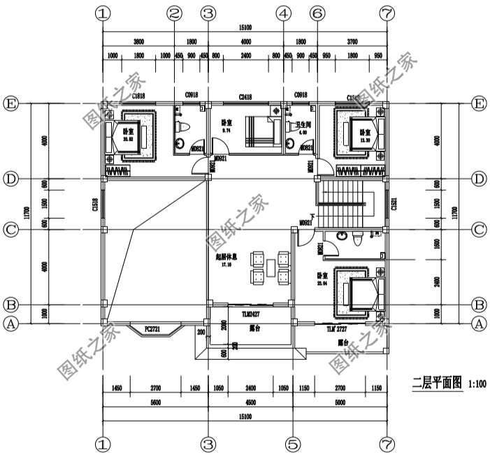
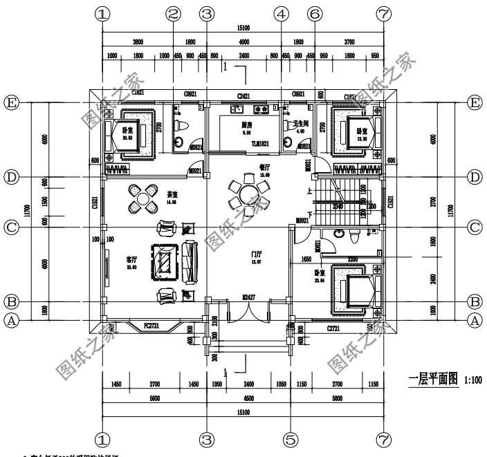
別墅戶型圖 第二套:15×11米多臥室復式二層別墅房屋設計圖,外觀精致、新穎
別墅效果圖 占地面積:15.10m*11.70m; 建筑面積:175平方米左右; 建筑層高:二層; 建筑高度:9.90米(含屋頂); 設計功能: 一層設計:門廳、客廳、餐廳、廚房、衛生間、臥室x3 二層設計:客廳上空、休息區、臥室x3、衛生間、露臺x2;
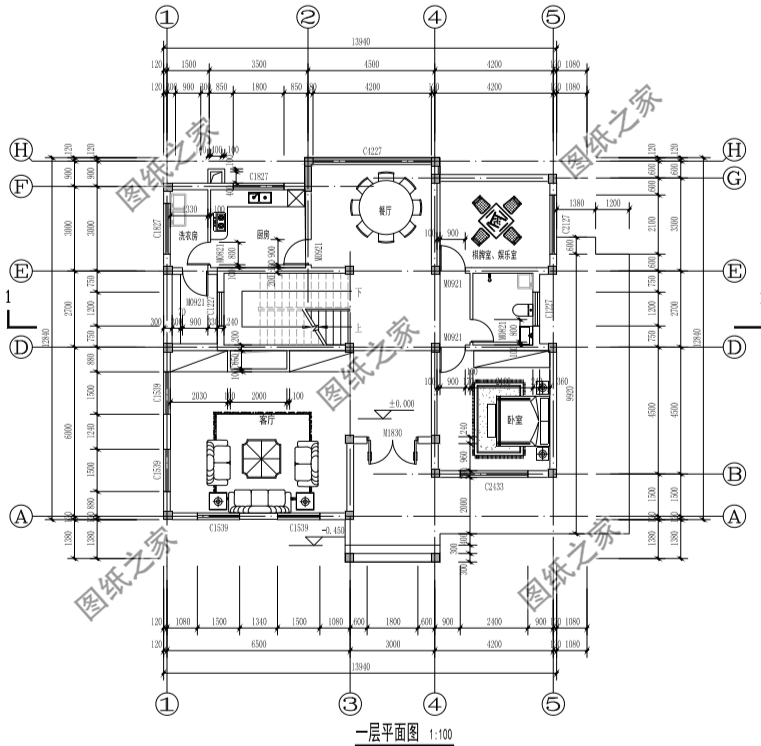
別墅戶型圖 第三套:13×12米美式風格鄉村兩層小別墅自建房設計圖,外觀簡單大方
別墅效果圖 占地面積:13.9m*12.8m,150平方米; 建筑層高:二層; 建筑高度:11.5米(含屋頂); 設計功能: 一層戶型:洗衣房,廚房,餐廳,娛樂室(棋牌室),公衛,臥室,客廳; 二層戶型:露臺,休閑廳,臥室,公衛,陽臺X3,臥室(主衛),書房,客廳上空;
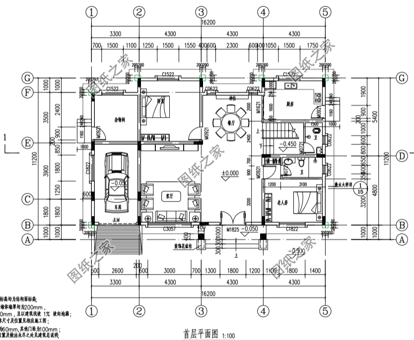
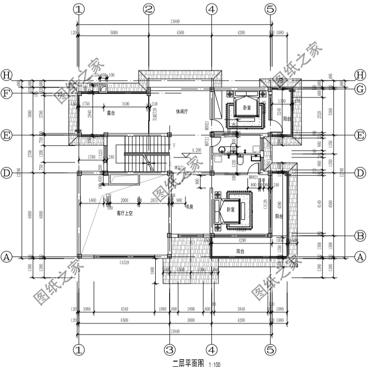
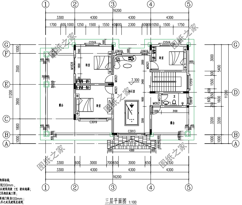
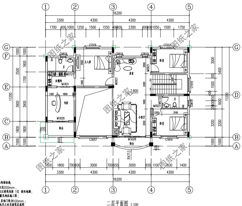
別墅戶型圖 第四套:16×11米帶車庫、挑空客廳、坡屋頂設計圖紙,大氣利落
別墅效果圖 占地面積:16.2m*11.2m,一層占地160平方米左右; 建筑層高:三層; 建筑高度:12.8米(含屋頂); 設計功能: 一 層:客廳、廚房、餐廳、老人房(衛生間)、臥室、雜物間、衛生間、車庫; 二 層:小客廳、主臥(帶衛生間,衣帽間,書房,陽臺)、臥室x2、茶室、衛生間、陽臺; 三 層:臥室×4、娛樂室、衛生間、露臺×2;
別墅戶型圖 以上就是4套高顏值別墅效果圖帶戶型圖,有一層、二層、三層,風格有新中式、現代風、歐式,是否有您喜歡的呢?下方留言告訴我。 圖紙之家-專注農村別墅/自建房設計18年,集合國內200余位經驗豐富的設計師,被評為口碑最好的農村建筑設計公司! |

大二間三層別墅戶型圖,三層新農村自建房設計圖紙及效果圖
占地:116平方米
農村一層養老別墅設計圖,兩個戶型方案可選
占地:多種戶型
最新三層農村別墅設計圖紙,推薦農村自建
占地:106平方米
南方新農村三層別墅設計圖紙,含效果圖,帶車庫
占地:120平方米
農村兄弟雙拼別墅三層,美觀氣派,室內布局合理實用
占地:300平方米
農村小別墅一層設計圖紙,全套施工圖兩款戶型可選
占地:多種戶型可選
兩層半30萬農村自建房別墅設計圖紙,客廳挑空,帶大露臺
占地:130平方米
新中式二層雙拼別墅農村自建房子設計圖紙,面寬19米
占地:240平方米左右,單
高端大氣三層歐式別墅設計圖,高檔新款外型圖片美觀時尚
占地:168平方米
兄弟共建一層雙拼平房設計圖,省錢省心又可相互照應
占地:177.27平方米
新款的農村自建房子中式二層四合院別墅設計圖,占地300平左右
占地:304平方米
二層復式小洋樓設計圖,外觀精致,戶型合理
占地:115平方米
新農村一層平屋頂簡單自建房別墅設計圖紙,全套設計
占地:130平方米
120平面三層鄉村樓房設計圖及效果圖,歐式風格
占地:120平方米
80平農村房屋設計圖,小戶型自建房三層別墅推薦
占地:80平方米
農村一層平房設計圖及效果圖,一層房屋設計方案推薦
占地:270平方米
新中式三層別墅設計圖紙(含效果圖),110平農村自建房施工圖推
占地:110平方米
面寬13米二層新農村別墅自建房設計圖,功能實用,外觀大氣
占地:168.96平方米
四層雙拼豪華別墅設計圖及外觀效果圖,貴族氣質爆棚
占地:188.5平方米
二層簡歐農房!經濟實惠+大氣耐看,20年后不落后
占地:120平方米
推薦:10套新農村自建房設計圖,2026年最新設計
閱讀次數:4825737次
100套鄉村別墅圖片大全,2026年最新設計
閱讀次數:2492203次
6款農村蓋一層平房的設計圖,10萬元就能建起來
閱讀次數:1852637次
這11個一層農村自建房別墅火爆了朋友圈!我最喜歡戶型十!你呢
閱讀次數:750268次
農村6萬元建一層小別墅圖,你敢相信嗎
閱讀次數:567686次
農村5萬塊就能自建房,6套普通房子設計圖分享,你沒看錯!
閱讀次數:419410次
8套農村漂亮三間平房圖片,非常適合在農村修建!
閱讀次數:411197次
農村自建房化糞池怎么做?附方案及施工過程
閱讀次數:391783次
農村一層三間平房設計圖,告別土氣養老房,讓人忍不住點贊
閱讀次數:350581次
新農村二層樓房圖片造價12萬,挑一套回家建房吧!
閱讀次數:349126次
