圖紙介紹:三層新農村自建小戶型別墅設計圖及效果圖 ,占地116平,復式落地窗,非常有氣勢的羅馬柱,米黃色外墻磚和橙黃色外墻磚裝飾外墻,和橙色坡屋頂相映襯,非常養眼,都把歐式的大氣華貴體現的淋漓盡致。
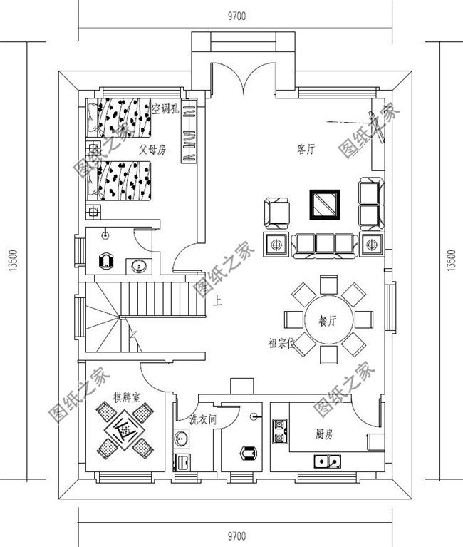
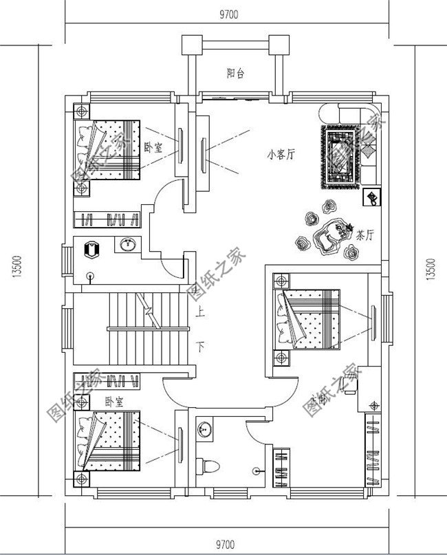
占地面積:9.7m*12m,116平方米左右;
建筑層高:三層;
建筑高度:12.92米(含屋頂);
設計功能:
一層戶型:客廳、餐廳、廚房、洗衣間、棋牌室、父母房;
二層戶型:小客廳、茶廳、臥室(帶衛生間)、臥室x2、衛生間、陽臺;
三層戶型:臥室(帶衛生間)、臥室x3、衛生間、陽臺;
圖紙目錄:
建 筑 圖:建筑設計說明、一層平面圖、二層平面圖、三層平面圖、屋頂平面圖、正立面圖、背立面圖、左立面圖、右立面圖、1-1剖面圖、樓梯大樣圖、門斗大樣圖、節點大樣圖、門窗詳圖、門窗表等;
結 構 圖:結構設計說明、基礎平面布置圖、基礎大樣圖、一層梁結構平面圖、二層梁結構平面圖、三層梁結構平面圖、屋頂梁結構平面圖、二層板結構平面圖、三層板結構平面圖、屋面板結構平面圖、樓梯大樣圖、節點大樣圖等;
給排水圖:給排水設計說明、一層給排水平面圖、二層給排水平面圖、三層給排水平面圖、屋頂給排水平面圖、衛生間大樣圖、給排水系統圖等;
電 氣 圖:電氣設計說明、配電系統圖、弱電系統圖、配電干線系統圖、一層照明平面圖、二層照明平面圖、三層照明平面圖、一層插座平面圖、二層插座平面圖、三層插座平面圖、一層弱電平面圖、二層弱電平面圖、三層弱電平面圖、接地平面圖、屋頂防雷平面圖等;
本套方案包含全套A3設計圖+效果圖,拿到即可施工。

































































































