
|
“家”對于我們來說是一個一聽到就會讓人感覺到非常溫暖的字眼,家永遠都是我們的避風港,所以不論是我們在城里買的房子,還是在自己老家自建的房子,每個人都愿意花時間、花精力和花錢去好好的建造它,只為了讓它看起來更美、更溫馨。如果你也想要回老家建一棟別墅的話,還是選一款最漂亮的戶型吧!今天小編就給大家推薦四套農村30萬元二層小樓圖,絕對讓你愛不釋手,趕快收藏圖紙吧。 戶型一:歐式農村兩層小別墅設計圖,占地170平米左右,主體造價30萬左右
圖紙介紹:這款戶型占地170平米左右,外觀設計非常大氣,采用的是紅色和黃色色彩搭配,看上去清新優雅的感覺;一層客廳空間非常寬敞,空間的布局也是非常合理;二樓還有臥室套間,大露臺的設計延伸了室內空間,從外邊看更有立體感。
占地面積:16.80m*11.50m,177平方米左右; 建筑層高:二層; 建筑高度:9.63米(含屋頂); 設計功能: 一層戶型:堂屋、客廳、餐廳、廚房 、臥室x2、衛生間x2、棋牌室、雜物間; 二層戶型:客廳、臥室(帶衛生間)、臥室x3、衛生間、書房、露臺x2; 戶型二:農村二層自建房設計圖,外觀時尚好看,主體造價30萬左右
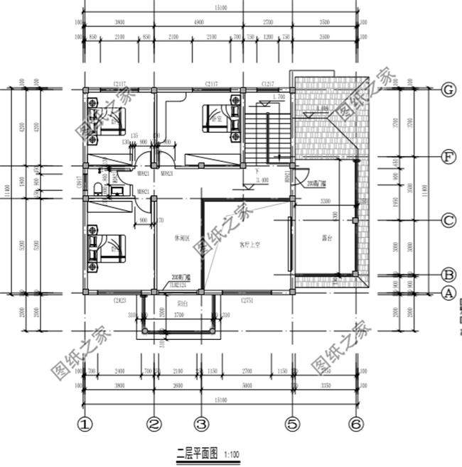
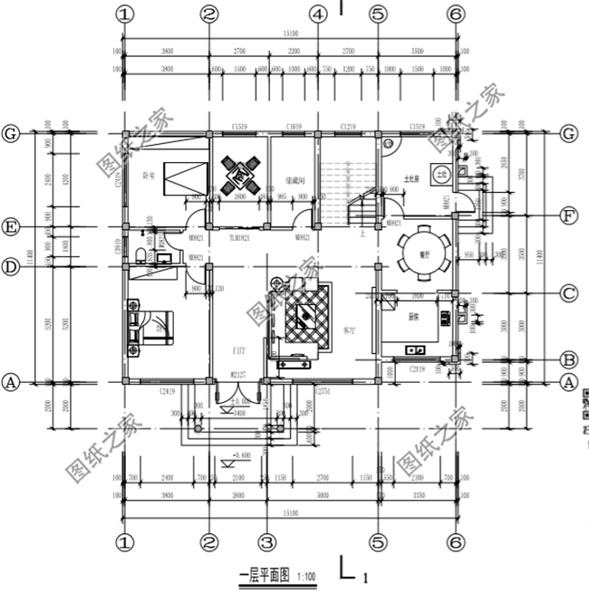
圖紙介紹:這款戶型帶土灶房,總占地面積170平米左右,外掛時尚大方好看,多窗的設計增強室內采光,獨特的造型給人眼前一亮的感覺,是一款非常值得借鑒的戶型;室內布局合理,空間利用率高,滿足農村生活需求;二層有大露臺,在農村也可以晾曬農作物,非常適應農村生活。
占地面積:15.1m*11.4m,172平方米; 建筑層高:二層; 建筑高度:10.6米(含屋頂); 設計功能: 一層戶型: 臥室,臥室(帶衛生間),棋牌室,儲藏間,土灶房,廚房,餐廳,客廳; 二層戶型: 臥室X3,衛生間,休閑區,客廳上空,陽臺,露臺; 戶型三:歐式雙層別墅設計圖,高端豪華的外觀,主體造價僅30萬左右
圖紙介紹:這款戶型外觀高端大氣又奢華,復式中空的客廳,內部結構布局非常合理,空間利用率極高,很適合居住生活。
占地面積:14.9m*11.9m,138平方米左右; 建筑層高:二層; 建筑高度:11.16米(含屋頂); 設計功能: 一層戶型:客廳、廚房、餐廳、小餐廳/雜物間、臥室(帶衛生間)、臥室、衛生間; 二層戶型:客廳上空、臥室(帶衛生間書房更衣室)、書房、臥室、衛生間、陽臺; 戶型四:獨棟二層簡歐小別墅設計圖,大氣時尚,帶旋轉樓梯,主體造價30萬左右
圖紙介紹:這款戶型簡歐風格,時尚簡約,一進門就是大客廳,很方便接待客人;大落地窗讓別墅更具有造型感,觀景效果也非常好,也極大的增強了室內的采光;房間也很多,適合人口多的居住。
占地面積:16.5m*11.6m,189.26平方米左右; 建筑層高:二層; 建筑高度:10.668米(含屋頂); 設計功能: 一層戶型:客廳、廚房、餐廳、土灶房、臥室x3、衛生間; 二層戶型:客廳上空、娛樂區域、臥室x3、衛生間、陽臺、露臺; 這幾款戶型占地面積都很大,很適合家庭人口多的住戶建造,你有喜歡的嗎?下方留言告訴小編。
圖紙之家-專注農村別墅/自建房設計18年,集合國內200余位經驗豐富的設計師,被評為口碑最好的農村建筑設計公司! |

四開間一層自建房設計圖,四臥二廳+棋牌室+書房
占地:181.29平方米
客廳中空三層復式別墅房屋設計圖,帶外觀效果圖
占地:145平方米
田園輕奢三層帶露臺的鄉村別墅設計圖紙,11x10米
占地:106.64平方米
80平方米三層農村自建民房設計圖,小戶型別墅方案
占地:81平方米
帶庭院的農村一層別墅圖紙設計,外觀時尚好看
占地:多戶型可選
農村18萬元二層小樓圖,帶開放式車庫
占地:110平方米
二層農村房子圖片及全套施工圖紙,占地150平面左右
占地:150平方米
160平方米三層帶大露臺的復式別墅設計圖紙
占地:155平方米
歐式三層小洋樓設計圖,外觀氣派,典雅、高貴
占地:145平方米
新古典中式風格別墅設計圖,全套施工圖+效果圖
占地:188平方米
農村27萬二層自建別墅設計圖,占地140平米左右,戶型極好
占地:140平方米
最美中式合院別墅圖,這才是中國農村該建的房子,如此精美絕倫
占地:380平方米
農村三層蓋房設計圖大全,最新的設計,最新的戶型
占地:150平方米
13×10米現代簡約風格三層別墅圖,坡屋頂和平屋頂完美結合
占地:120平方米
復式別墅新農村二層房屋設計圖紙,屋頂錯落有致
占地:多戶型可選
135平三層農村樓房設計圖及效果圖,造價20萬左右
占地:135平方米
大二間三層別墅戶型圖,三層新農村自建房設計圖紙及效果圖
占地:116平方米
新農村三層房屋住宅設計圖紙大全(含效果圖)
占地:122平方米
一層農村自建房別墅設計圖,簡潔時尚的設計,給父母建養老房
占地:144平方米
小面寬農村兩開間二層小別墅,簡單實用雖小但不擁擠
占地:118.56平方米
推薦:10套新農村自建房設計圖,2026年最新設計
閱讀次數:4825737次
100套鄉村別墅圖片大全,2026年最新設計
閱讀次數:2492203次
6款農村蓋一層平房的設計圖,10萬元就能建起來
閱讀次數:1852637次
這11個一層農村自建房別墅火爆了朋友圈!我最喜歡戶型十!你呢
閱讀次數:750268次
農村6萬元建一層小別墅圖,你敢相信嗎
閱讀次數:567686次
農村5萬塊就能自建房,6套普通房子設計圖分享,你沒看錯!
閱讀次數:419410次
8套農村漂亮三間平房圖片,非常適合在農村修建!
閱讀次數:411197次
農村自建房化糞池怎么做?附方案及施工過程
閱讀次數:391783次
農村一層三間平房設計圖,告別土氣養老房,讓人忍不住點贊
閱讀次數:350581次
新農村二層樓房圖片造價12萬,挑一套回家建房吧!
閱讀次數:349126次
