
接下來給大家介紹3套二層別墅,外觀漂亮、簡單大方,非常適合居住。
別墅圖紙一:別墅漂亮二層別墅設計圖紙,占地160平
![]() 別墅效果圖展示
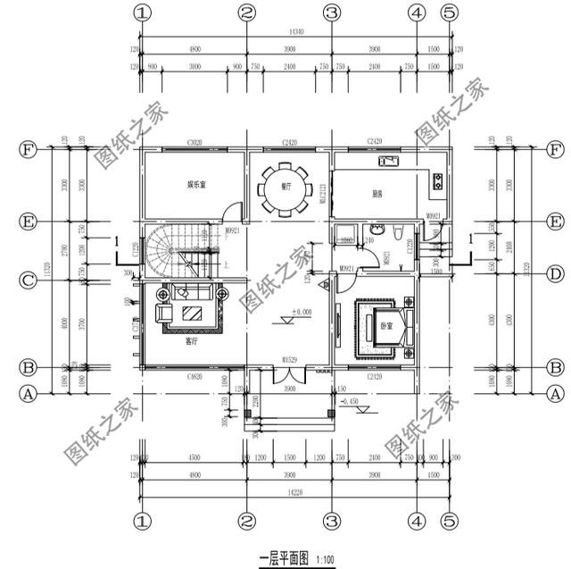
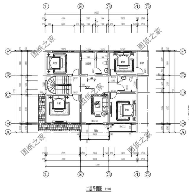
圖紙介紹:別致漂亮二層別墅設計圖紙,占地160平米左右,精致的外觀,讓人過目難忘。顏色搭配也好,配飾搭配也好都稱得上一棟別墅的巔峰之作了。 占地面積:14.2m*11.3m,160平方米左右; 建筑層高:二層; 建筑高度:9.1米(含屋頂); 設計功能: 一層別墅戶型:客廳、餐廳、廚房、臥室、娛樂室、衛生間; 二層別墅戶型:起居室、臥室×4、衣帽間、衛生間×2、陽臺; ![]()
![]() 別墅戶型圖展示
別墅圖紙二:農村最好看兩層小樓圖全套CAD施工圖紙
![]() 別墅效果圖展示
圖紙介紹:農村最好看兩層小樓圖及全套CAD施工圖紙,新中式風格,簡潔大氣,整體設計看起來典雅、自然、高貴的氣質,帶有清新宏偉,有氣勢。 占地面積:12.3m*13.8m,147平方米左右; 建筑層高:二層; 建筑高度:9.9米(含屋頂); 設計功能: 一層戶型:客廳、餐廳、廚房、衛生間、臥室(帶衛生間)、臥室; 二層戶型:家庭影院、主臥(帶衛生間)、臥室、書房、麻將室、衛生間、陽臺、大露臺; ![]() ![]() 別墅戶型圖展示
別墅圖紙三:獨棟二層別墅cad設計圖紙,平屋頂自建別墅方案精選
![]() 別墅效果圖展示
圖紙介紹:獨棟二層別墅cad設計圖紙,平屋頂平屋頂自建別墅方案精選,現代風格設計,時尚漂亮,通透明亮,這套別墅多處運用虛實對比,白色涂料外墻對比木質線條,簡約現代的外墻對比室內溫馨的氣氛,將現代生活簡約卻有溫馨的生活展現的淋漓盡致。 占地面積:16.5m*17.9m,190平方米左右; 建筑層高:二層; 建筑高度:10.2米(含屋頂); 設計功能: 一層戶型:開放門廳、玄關、客廳、餐廳、廚房、老人房(帶衛生間)、棋牌室、衛生間; 二層戶型:客廳上空、娛樂室、臥室(帶衛生間、衣帽間)、臥室、衛生間、露臺; ![]() ![]() 別墅戶型圖展示
以上就是農村自建二層普通房,外觀漂亮、簡單大方,喜歡哪款,歡迎下方留言。
圖紙之家-專注農村別墅/自建房設計18年,集合國內200余位經驗豐富的設計師,被評為口碑最好的農村建筑設計公司! |

農村二層半新中式小別墅設計圖(帶閣樓層),二層半自建房戶型
占地:144平方米
開間14米!農村養老一層別墅神戶型,爸媽住得安心,施工隊狂贊太
占地:160.86平方米
新農村二層小別墅全套設計圖紙(含外觀效果圖)
占地:85.6平方米
農村三層蓋房設計圖大全,最新的設計,最新的戶型
占地:150平方米
18米寬一層中式小院設計圖,三合院戶型布局寬敞大氣
占地:232.75平方米
普通簡單的平屋頂二層房子設計,造價低施工簡單
占地:151.04平方米
兄弟共建一層雙拼平房設計圖,省錢省心又可相互照應
占地:177.27平方米
3層20萬農村自建房設計圖,占地110平米
占地:110平方米
農村房子設計圖三層獨棟別墅方案,占地130平方米
占地:130平方米
高端大氣四層復式別墅房屋設計圖,含外觀效果圖
占地:270平方米
面寬8米農村二間二層小別墅設計方案,施工簡單造價低
占地:73.77平方米
農村一層7字型平房別墅設計圖,“L”自行戶型,外觀簡約低調
占地:213.39平方米
140平方米新農村復式自建房子,三層別墅建筑圖紙及效果圖
占地:138平方米
120平米三層30萬別墅圖片大全及全套施工圖,外觀簡潔大方
占地:120平方米
左右對稱的歐式高端三層別墅設計圖,外觀氣派、豪華
占地:200平方米
面寬不到10米的小戶型自建房戶型圖,全套設計圖紙可施工
占地:123.2平方米左右
農村二層四合院設計圖,秒殺各種洋別墅
占地:220平方米
農村兄弟雙拼平房別墅設計圖,獨門獨戶,一層也能建雙拼
占地:274.18平方米
180平方米新農村雙拼戶型別墅房屋設計圖紙帶外觀圖17X11米
占地:180平方米
11x13米兩層半現代風別墅設計圖,??看過的都后悔建早了!
占地:126.02平方米
推薦:10套新農村自建房設計圖,2026年最新設計
閱讀次數:4825737次
100套鄉村別墅圖片大全,2026年最新設計
閱讀次數:2492203次
6款農村蓋一層平房的設計圖,10萬元就能建起來
閱讀次數:1852637次
這11個一層農村自建房別墅火爆了朋友圈!我最喜歡戶型十!你呢
閱讀次數:750268次
農村6萬元建一層小別墅圖,你敢相信嗎
閱讀次數:567686次
農村5萬塊就能自建房,6套普通房子設計圖分享,你沒看錯!
閱讀次數:419410次
8套農村漂亮三間平房圖片,非常適合在農村修建!
閱讀次數:411197次
農村自建房化糞池怎么做?附方案及施工過程
閱讀次數:391783次
農村一層三間平房設計圖,告別土氣養老房,讓人忍不住點贊
閱讀次數:350581次
新農村二層樓房圖片造價12萬,挑一套回家建房吧!
閱讀次數:349126次
