
|
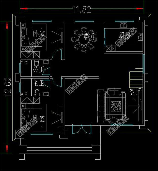
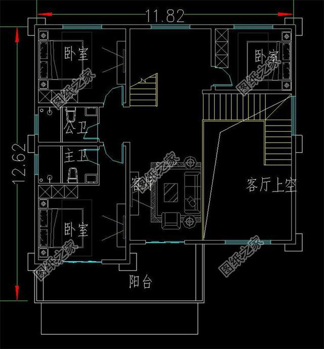
建房在農村一直都是大事中的大事,建房成本逐年增長,政策也在不斷調控,手里有錢卻還猶豫不決的朋友,狠下心,畢竟早建早省錢,早建早安心。新款三層農村自建房,經濟實用款,造型卻不單調,可以說是農村自建房戶型第一名。 下面小編推薦三款農村三層現代平頂別墅設計圖以及戶型圖,看看有你喜愛的嗎? 第一款:農村三層現代平頂別墅,簡約時尚![]() 外立面色調采用灰色和白色結合,整體看起來簡約時尚,線條干凈利落,別墅通透明朗,大面積的玻璃窗設計,使整體看上去視野開闊又寬敞。層次錯落有致,有廊有臺,充滿現代氣息又與周圍環境和諧相襯,享品質鄉野人生。符合年輕人的審美,居住區安排更多臥室,不怕家中人口多,看了就有想買的沖動! 占地面積:11.82m*12.62m,125.142平方米左右; 建筑高度:11.2米(含屋頂) 功能: 一層戶型:客廳、餐廳、廚房、臥室(帶衛生間)、臥室、衛生間 二層戶型:客廳上空、小客廳、臥室(帶衛生間)、臥室x2、衛生間、陽臺 三層戶型:臥室x2、衛生間、露臺、涼亭(帶頂) ![]() ![]() ![]() 第二款:現代簡歐式三層自建房設計圖外觀采用的歐式風格,沒有過多的設計那些等繁瑣的裝飾,整體看起來還是比較簡約的,這符合我們現代人的審美,也一定程度的降低了施工成本。一層入室空間南北通透,客廳與餐廳空間互通,這樣顯得整棟別墅非常寬敞明亮,并且通風非常好。一層有兩間臥室,南向主臥,可用作老人居住,帶內置衛生間,給老人日常生活起居提供便捷。二三層均設置3間臥室,二層中間是一個客廳,適合自家人休閑娛樂;三層則是設置小書房,可用于主人日常辦公或者孩子讀書寫作業的地方。西南角是一個開放式露臺,可打造成一個屋頂花園,非常愜意,當然也適合用于農村晾曬糧食干菜。 占地面積:10.02m*12.76m,131.08平方米左右 建筑高度:10.42米(含屋頂) 設計功能: 一層戶型:客廳、廚房、餐廳、臥室(衛生間)x2、衛生間 二層戶型:客廳上空、小客廳、臥室(衛生間)x2、臥室、衛生間 三層戶型:棋牌室、書房、臥室(衛生間)x2、臥室、露臺 ![]() ![]() ![]() ![]() 第三款:現代式三層別墅效果圖,簡單大氣![]() 占地130平三層別墅設計圖方案,電梯和地下室設計,清新時尚的外觀,通透明亮的體態,還有層次分明的造型,都給人以深刻的印象,清新自然撲面而來,讓人賞心悅目,墻體依然是大理石涂料,真的太有美感了,比起傳統的貼瓷磚,不是一個檔次,灰白色調搭配,優雅迷人,時尚生活隨心暢享,在鄉下也能體會城市生活的感覺。 占地面積:10.64m*9.94m,134.75平方米左右 建筑高度:13.15米(含屋頂) 設計功能: 地下室戶型:車庫、儲藏室 一層戶型:客廳、餐廳、廚房、臥室(帶衣帽間)、衛生間 二層戶型:書房、娛樂區、臥室(帶衛生間、衣帽間)、臥室(帶衛生間)、陽臺 三層戶型:臥室(帶衛生間、衣帽間)、臥室(帶衛生間)、露臺
![]() ![]() ![]() ![]() 新款現代三層平頂別墅設計圖,在設計上更加符合現代生活,戶型上劃分更加合理。有沒有你中意的?可以告訴我哦。
圖紙之家-專注農村別墅/自建房設計18年,集合國內200余位經驗豐富的設計師,被評為口碑最好的農村建筑設計公司! |

大戶型高端三層別墅設計圖紙,外觀效果圖+CAD建筑圖
占地:227平方米
100平方米二層中式小別墅設計圖紙級效果圖片
占地:99平方米
帶車庫二層別墅設計圖及效果圖,帶車庫的農村二層樓房推薦
占地:123平方米
125平自建房設計圖二層戶型,建房選這款準沒錯
占地:124.04平方米
農村三層帶車庫、帶露臺別墅設計圖,經典自建別墅設計方案
占地:160平方米
中式四合院農村自建房設計圖,白墻黛瓦,四水歸堂
占地:137.72平方米
適合回鄉建的三合院平房設計圖,舒適又接地氣
占地:213.96平方米
簡單實用農村自建四層小別墅設計圖(三層半),95平米
占地:95平方米
農村二層小別墅圖片,二層別墅效果圖及設計圖
占地:153平方米
100平內的三層豪華歐式別墅房屋設計圖紙 ,簡歐風格
占地:94平方米左右
140平方米三層別墅設計圖紙,歐式帶外觀效果圖
占地:140平方米
14米×10米農村二層小別墅自建房設計圖,外觀設計時尚美觀
占地:125平方米
110平左右農村復式二層小樓設計圖,外觀非常受歡迎
占地:112平方米
農村四層樓房設計圖,占地120平方米,歐式風格,高端大氣
占地:120平方米
農村建房的“面子天花板”!新中式簡歐結合三層別墅,進門就被
占地:225.98平方米
二層農村房屋設計圖紙,帶效果圖和全套施工方案圖
占地:多種戶型
三層新農村自建小型別墅設計圖及效果圖,三間三層樓房戶型
占地:114平方米
新農村140平米樓房圖四層獨棟別墅設計圖,簡歐外觀風格設計
占地:141平方米
爆火農村養老房設計:16 米面寬一層戶型,自住養老全拿捏
占地:169.87平方米
農村四間二層半雙拼樓設計圖,住三帶人都沒有問題!
占地:270平方米
推薦:10套新農村自建房設計圖,2026年最新設計
閱讀次數:4825737次
100套鄉村別墅圖片大全,2026年最新設計
閱讀次數:2492203次
6款農村蓋一層平房的設計圖,10萬元就能建起來
閱讀次數:1852637次
這11個一層農村自建房別墅火爆了朋友圈!我最喜歡戶型十!你呢
閱讀次數:750268次
農村6萬元建一層小別墅圖,你敢相信嗎
閱讀次數:567686次
農村5萬塊就能自建房,6套普通房子設計圖分享,你沒看錯!
閱讀次數:419410次
8套農村漂亮三間平房圖片,非常適合在農村修建!
閱讀次數:411197次
農村自建房化糞池怎么做?附方案及施工過程
閱讀次數:391783次
農村一層三間平房設計圖,告別土氣養老房,讓人忍不住點贊
閱讀次數:350581次
新農村二層樓房圖片造價12萬,挑一套回家建房吧!
閱讀次數:349126次
