
第一款:80平米鄉村一層半帶閣樓自建別墅設計圖,帶車庫
![]() 別墅效果圖
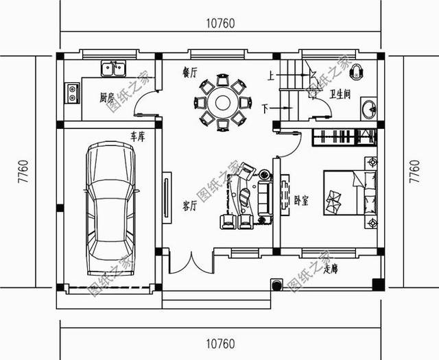
圖紙介紹:80平方米鄉村一層帶閣樓自建別墅設計圖,帶車庫,外觀非常簡潔,灰色的外墻磚,簡約大氣的方柱,迂回的走廊,構成建筑明亮舒適的格局。屋頂采用的是傳統的坡屋頂,建筑的層次感更分明,舒適感更全面 占地面積:10.76m*7.76m,80平方米左右; 建筑層高:一層半; 建筑高度:7.2米(含屋頂); 設計功能: 一層戶型:走廊、客廳、餐廳、廚房、臥室、衛生間、車庫; 閣樓戶型:棋牌室、儲藏間、臥室x2、衛生間; ![]() ![]() 別墅戶型圖
第二款:農村實用性一層半樓房圖片效果圖,占地140平米左右
![]() 別墅效果圖
圖紙介紹:農村實用型一層半樓房圖片效果圖,占地140平米左右,帶閣樓,簡約大方的別墅立面,干凈利落的輪廓,屋頂錯落有致的外觀造型。簡約淡雅之間透著濃厚的鄉村生活之美。別墅二層采用小閣樓的形式,戶主注重空間的交流,中間是大面積的休閑區。三間臥室分別在四角,各自相互獨立,周圍的環境盡收眼底。 占地面積:12.9m*11.4m,140平方米左右; 建筑層高:一層半; 建筑高度:7.42米(含屋頂); 設計功能: 一層:客廳、餐廳、廚房、、臥室×2、烤火房、儲藏間、衛生間; 閣樓:臥室×3、休閑區、儲藏間、衛生間; ![]() ![]() 別墅戶型圖
第三款:一層半房屋別墅設計圖,帶閣樓圖、帶露臺,外觀新穎時尚
![]() 別墅效果圖
圖紙介紹:本戶型為一層半房屋設計圖,帶閣樓圖,帶露臺,外觀新穎時尚,戶型布局合理,面積適中,適合新農村自建使用。 占地面積:11.70m*11.10m,130平方米左右; 建筑層高:一層半; 建筑高度:7.58米(含屋頂); 設計功能: 一層:客廳、餐廳、廚房、衛生間、主臥(帶衛生間)、臥室、棋牌室(書房或小臥室); 閣樓:起居室、臥室x2、衛生間、露臺; ![]() ![]() 別墅戶型圖
以上就是鄉下一層半房子設計圖,喜歡哪款,歡迎下方留言。
圖紙之家-專注農村別墅/自建房設計18年,集合國內200余位經驗豐富的設計師,被評為口碑最好的農村建筑設計公司! |

新農村二層客廳挑高樓房設計圖,外觀歐式風格
占地:178平方米
三層樓房設計圖紙含效果圖,外觀造型高低錯落,別致大方
占地:152.4平方米
占地百平農村三層戶型方案,簡約實用,獨具特色,理想新居等你
占地:105.61平方米
二層復式小別墅設計圖,樓中樓結構,外觀漂亮,簡單
占地:120平方米
高端三層豪宅別墅設計方案圖,帶地下室,過悠然愜意生活
占地:127.06平方米
新徽派農村三層小別墅設計圖,白墻黛瓦中式風,12米乘11米
占地:115.46平方米
20多萬的造價一層三合院農村自建房效果圖
占地:225.048平方米
2026年獨棟三層雙拼別墅戶型圖,總占地面積300平方米左右
占地:300平方米
120平方米新農村四層房屋設計圖紙和效果圖
占地:120平方米
80-90平米自建樓房設計圖,農村小別墅經典戶型圖
占地:86平方米
時尚的農村二層別墅圖紙設計,現代風格,簡約的外觀
占地:152平方米左右
農村二層住宅別墅設計圖,貼心實用,12.8米乘14.5米
占地:156.16平方米
高顏值又實用的一層雙拼鄉村別墅設計圖,舒適度堪比豪宅
占地:217.3平方米
農村兄弟倆雙拼別墅房屋設計圖,外觀質樸
占地:195平方米
兩層半樓房設計圖及效果圖,農村二層房屋設計圖推薦
占地:135平方米
架空層設計的農村自建房別墅設計圖,既做車庫又做儲物間,太實
占地:230.62平方米
高端三層帶地下室別墅房屋設計圖方案及效果圖
占地:135平方米
2026二層農村新款別墅新式二層樓房設計圖,非常時尚
占地:多種戶型
300平四層別墅房屋設計圖,含外觀效果圖,大面積、多臥室
占地:261平方米
占地80平四層平頂別墅設計圖,現代風房子效果圖
占地:80平方米
推薦:10套新農村自建房設計圖,2026年最新設計
閱讀次數:4825737次
100套鄉村別墅圖片大全,2026年最新設計
閱讀次數:2492203次
6款農村蓋一層平房的設計圖,10萬元就能建起來
閱讀次數:1852637次
這11個一層農村自建房別墅火爆了朋友圈!我最喜歡戶型十!你呢
閱讀次數:750268次
農村6萬元建一層小別墅圖,你敢相信嗎
閱讀次數:567686次
農村5萬塊就能自建房,6套普通房子設計圖分享,你沒看錯!
閱讀次數:419410次
8套農村漂亮三間平房圖片,非常適合在農村修建!
閱讀次數:411197次
農村自建房化糞池怎么做?附方案及施工過程
閱讀次數:391783次
農村一層三間平房設計圖,告別土氣養老房,讓人忍不住點贊
閱讀次數:350581次
新農村二層樓房圖片造價12萬,挑一套回家建房吧!
閱讀次數:349126次
