
|
看到別人住豪宅是羨慕的,畢竟都希望能過上好生活,設計一款屬于自己的別墅,我相信也是大家希望的,今天小編就介紹兩款四層別墅,讓大家享受一下別墅的氣派和豪華。 第一款:現代式四層別墅設計圖以及戶型圖這款最新款農村四層別墅設計圖,帶挑空客廳,給人樓中樓高檔之感,豪華別墅的代表。的這輩子,擁有一棟豪華別墅,人生才不算白活。別墅外觀設計感十足。富貴之氣迎面而來。低調的配色給人一種穩重大氣之感!別墅還設計多窗戶多露臺,建一棟就是大大的享受! ![]() ![]() ![]() 占地面積:12.0m*13.1m,147平方米左右 建筑層高:四層 建筑高度:15.75米(含屋頂) 設計功能: 一層戶型展示:玄關、客廳、餐廳、廚房、茶室、臥室(帶衛生間)、衛生間 二層戶型展示:客廳上空、起居室、臥室(帶衛生間)、臥室×2、娛樂室、衛生間、陽臺 三層戶型展示:起居室、主臥(帶陽臺和衛生間)、臥室(帶衛生間)、次臥、書房、衛生間、陽臺 四層戶型展示:娛樂室、臥室(帶衛生間)、臥室、儲物間、衛生間、2大露臺
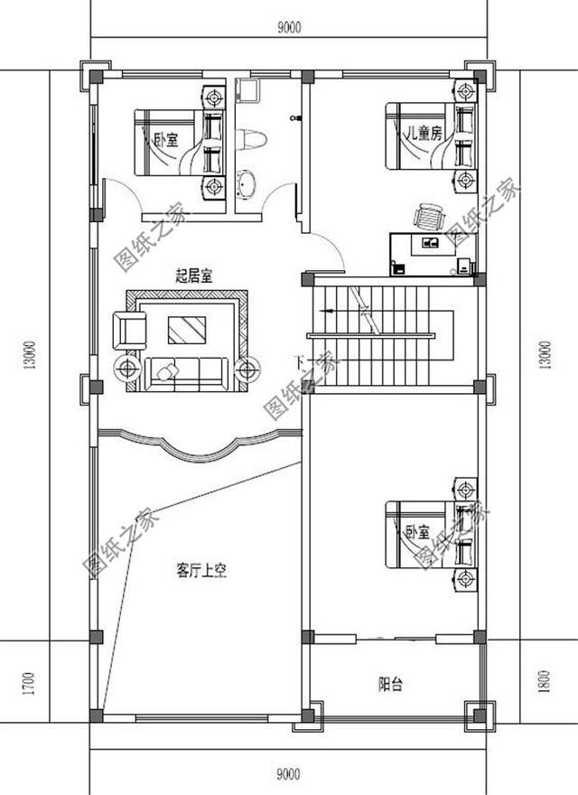
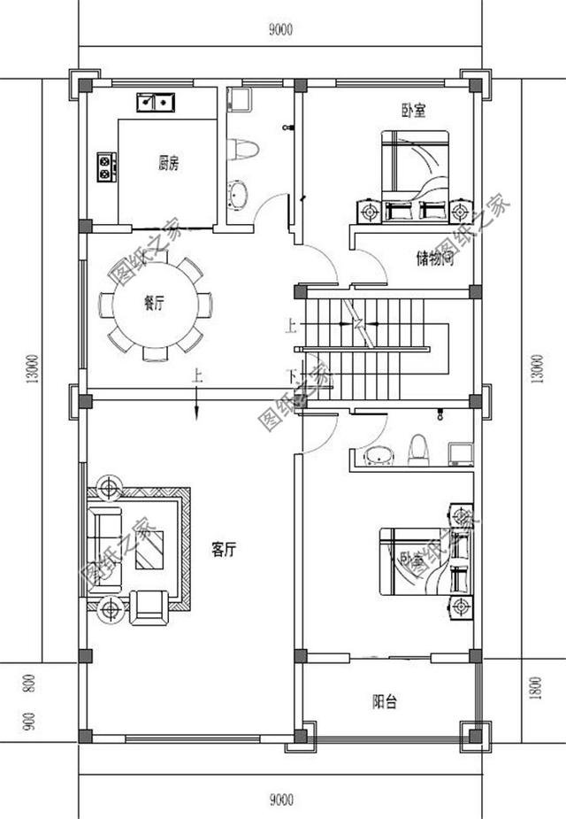
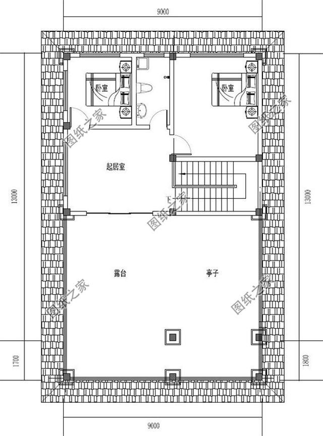
![]() ![]() ![]() ![]() 第二款: 現代歐式四層別墅設計圖以及戶型圖這款一次帶商鋪臨街戶型自建別墅樓房,房屋設計圖紙,挑空復式帶大露臺。一層作為商鋪帶有公共衛生間,設計南向樓梯進入生活區。二層布局為:基本的生活配置包括廚房餐廳等,室外設以陽臺;三層有三室一廳一衛,配有一個外置陽臺。四層設計了兩室一廳一衛,配以亭子和露臺。帶商鋪的房子,不論是租出去,還是自己用來做點小生意是合適的。 ![]() ![]() ![]() 占地面積:9.0m*13.0m,133平方米 建筑層高:四層 建筑高度:16.82米(含屋頂) 設計功能: 一層戶型: 商鋪,衛生間 二層戶型:客廳,臥室(帶衛生間,陽臺),廚房,餐廳,衛生間,臥室,儲物間 三層戶型:客廳上空,臥室(帶陽臺),起居室,臥室,衛生間,兒童房 四層戶型:露臺,亭子,起居室,臥室X2,衛生間
![]() ![]() ![]() ![]() 以上就是小編推薦的兩款四層別墅設計圖以及戶型圖,看看有沒有你喜歡的?本文由圖紙之家原創,歡迎關注,帶你一起長知識!
圖紙之家-專注農村別墅/自建房設計18年,集合國內200余位經驗豐富的設計師,被評為口碑最好的農村建筑設計公司! |

100平方米自建房二層設計圖紙及效果圖,12x9米
占地:100平方米
兩層農村自建二層樓設計圖紙,面寬12米左右
占地:131.2平方米
農村20萬元二層小樓房設計圖,經典新農村自建房戶型
占地:120平方米
160平方米農村二層別墅設計效果圖帶CAD建筑圖
占地:160平方米
小型農村二層自建樓房設計圖,面寬10米小占地經濟
占地:78.54平方米
小型三層別墅cad建筑圖紙帶效果圖,帶屋頂露臺
占地:101平方米左右
20萬左右農村雙拼別墅住宅設計圖,簡單小戶型設計
占地:120平方米
高端大氣的農村四層樓房別墅設計圖,戶型真不錯,占地130多平
占地:135.31平方米
兄弟共建一層雙拼平房設計圖,省錢省心又可相互照應
占地:177.27平方米
新徽派農村三層小別墅設計圖,白墻黛瓦中式風,12米乘11米
占地:115.46平方米
農村二層中式三合院設計圖,這才是國人該建的房子
占地:175.58平方米
實用三層新農村住宅設計圖,鄉村別墅設計圖(含外觀效果圖)
占地:102.34平方米
新中式二層農村別墅設計圖紙及外觀圖,面寬15米左右
占地:148.86平方米
100平方米二層中式小別墅設計圖紙級效果圖片
占地:99平方米
占地180平豪華三層農村別墅自建房設計圖,歐式與現代相融合
占地:183.706平方米
50萬以內的歐式三層房屋別墅施工設計圖紙及效果圖
占地:169平方米
豪華大氣農村三層別墅圖紙,帶車庫、露臺,占地200平方米左右
占地:207平方米
闊氣高端的三層別墅設計圖,亮得恰到好處,永遠也住不膩
占地:160平方米
新農村140平米樓房圖四層獨棟別墅設計圖,簡歐外觀風格設計
占地:141平方米
雙拼豪華高端三層別墅設計圖,外觀效果圖大氣
占地:300平方米
推薦:10套新農村自建房設計圖,2026年最新設計
閱讀次數:4825737次
100套鄉村別墅圖片大全,2026年最新設計
閱讀次數:2492203次
6款農村蓋一層平房的設計圖,10萬元就能建起來
閱讀次數:1852637次
這11個一層農村自建房別墅火爆了朋友圈!我最喜歡戶型十!你呢
閱讀次數:750268次
農村6萬元建一層小別墅圖,你敢相信嗎
閱讀次數:567686次
農村5萬塊就能自建房,6套普通房子設計圖分享,你沒看錯!
閱讀次數:419410次
8套農村漂亮三間平房圖片,非常適合在農村修建!
閱讀次數:411197次
農村自建房化糞池怎么做?附方案及施工過程
閱讀次數:391783次
農村一層三間平房設計圖,告別土氣養老房,讓人忍不住點贊
閱讀次數:350581次
新農村二層樓房圖片造價12萬,挑一套回家建房吧!
閱讀次數:349126次
