
|
戶型一:140平方米新農村復式自建房子,三層別墅建筑圖紙及效果圖
![]() 圖紙介紹:140平方米新農村自建復式三層別墅建筑圖紙及效果圖,這是一款三層歐式風格農村別墅,整個戶型非常方正,外立面采用墻磚和文化石做涂裝,灰藍色的屋頂,暖色系搭配,使整個外觀都非常明朗與溫馨,適合農村建筑。 占地面積:11.76m*11.29m,138平方米左右; 建筑層高:三層; 建筑高度:12.58米(含屋頂); 設計功能: 一層戶型:客廳、餐廳、廚房、臥室(帶衛生間)、儲藏室、衛生間; 二層戶型:客廳上空、起居室、臥室(帶衛生間)、臥室x2、書房、衛生間、陽臺; 三層戶型:臥室(帶衛生間)、臥室x2、棋牌室、衛生間、露臺; ![]() ![]() ![]() 戶型二:鄉下三層大氣房子設計圖,外觀挺高大上的
![]() 圖紙介紹:三層大氣典雅歐式風情別墅設計,鄉下自建這樣的房子,鄰居朋友都會羨慕,給你完全不一樣的觀感體驗,造型別致有型,三層的造型分布完全不同,充滿了立體感和空間感,給人以一種莊重的視覺體驗,斜肩是屋頂設計,更是給三層樓的歐式別墅添加了別樣的風采,讓整體的建筑看上去更加的大氣莊重。 占地面積:11.76m*12.6m,132.48平方米; 建筑層高:三層; 建筑高度:12.109米(含屋頂); 設計功能: 一層戶型:客廳、餐廳、廚房、臥室(帶衛生間)、臥室、衛生間; 二層戶型:客廳、臥室(帶衛生間衣帽間)、臥室x2、衛生間、陽臺; 三層戶型:客廳、臥室(帶衣帽間)、臥室x2、衛生間、露臺; ![]() ![]() ![]() 戶型三:80平農村房屋設計圖,小戶型自建房三層別墅
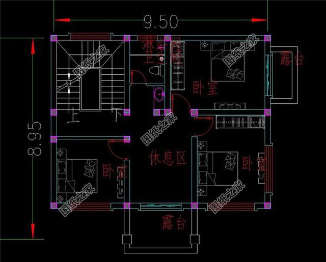
![]() 圖紙介紹:80平農村三層房屋設計圖及效果圖,精致小戶型自建房別墅方案推薦,經濟實用,這款現代風別墅比起大多以冷色搭配的設計,配色看上去溫暖喜慶,更加充滿家的溫馨。外觀時尚簡約,搭配灰色彎瓦屋頂,配色簡單大方。 占地面積:9.5m*8.95m,79.76平方米左右; 建筑層高:三層; 建筑高度:12.761米(含屋頂); 設計功能: 一層戶型:客廳、餐廳、神位、廚房、茶室、衛生間; 二層戶型:小客廳、臥室x3、衛生間、露臺; 三層戶型:臥室(帶衣帽間)、臥室、衛生間、露臺; ![]() ![]() ![]() 以上就是2020年新款三層別墅設計圖紙,功能齊全,看起來一定都不比城里的房子差,喜歡哪款,歡迎下方留言。
圖紙之家-專注農村別墅/自建房設計18年,集合國內200余位經驗豐富的設計師,被評為口碑最好的農村建筑設計公司! |

農村120平米三間三層樓房設計圖紙,農村理想住房設計圖
占地:120平方米
160平方米經典鄉村二層房屋設計圖紙
占地:160平方米
260平方米仿歐式二層別墅設計圖紙及效果圖,22X12米
占地:260平方米
新農村二層小別墅全套設計圖紙(含外觀效果圖)
占地:85.6平方米
一層雙拼別墅獨立入戶+共用墻,兄弟合建,施工隊直呼太省料
占地:269.43平方米
三層蓋房子歐式挑空客廳別墅設計圖,外觀漂亮戶型實用
占地:多種戶型
兩層半20多萬復式農村自建房設計圖,經典不過時戶型
占地:120平方米
三層復式別墅設計圖紙(含效果圖),復式住宅設計圖精選
占地:147.7平方米
一層帶閣樓農村別墅設計圖,多得一層可變空間,太值了!
占地:165.89平方米
村里三層新中式風自建別墅圖,對稱設計,氣派好看
占地:135.3平方米
農村兄弟雙拼二層四合院別墅設計圖,戶型左右對稱
占地:430平方米
150平農村三層歐式別墅設計圖紙,盡顯豪華與精致,讓人羨慕不已
占地:147.62平方米
帶堂屋新農村三層房屋別墅設計圖紙,帶外觀效果圖
占地:214平方米
8.5×12米四層歐式房屋設計圖紙,占地100平,落地窗中嵌入了雕花
占地:100平方米
100平方米二層中式小別墅設計圖紙級效果圖片
占地:99平方米
兩間二層農村自建房設計圖,面積雖小功能齊全,布局緊湊。
占地:118.75平方米
農村大氣四層樓房圖片及全套設計圖紙,復式客廳旋轉樓梯
占地:143平方米
2026年新款別墅外觀圖及全套施工圖紙,占地面積13×10米
占地:130平方米
簡約實用農村自建房戶型圖,美觀經濟又通透,南北通透住得爽!
占地:160.6平方米
120平米二層別墅樓設計圖,簡約省錢也能建的漂亮
占地:121.74平方米
推薦:10套新農村自建房設計圖,2026年最新設計
閱讀次數:4825737次
100套鄉村別墅圖片大全,2026年最新設計
閱讀次數:2492203次
6款農村蓋一層平房的設計圖,10萬元就能建起來
閱讀次數:1852637次
這11個一層農村自建房別墅火爆了朋友圈!我最喜歡戶型十!你呢
閱讀次數:750268次
農村6萬元建一層小別墅圖,你敢相信嗎
閱讀次數:567686次
農村5萬塊就能自建房,6套普通房子設計圖分享,你沒看錯!
閱讀次數:419410次
8套農村漂亮三間平房圖片,非常適合在農村修建!
閱讀次數:411197次
農村自建房化糞池怎么做?附方案及施工過程
閱讀次數:391783次
農村一層三間平房設計圖,告別土氣養老房,讓人忍不住點贊
閱讀次數:350581次
新農村二層樓房圖片造價12萬,挑一套回家建房吧!
閱讀次數:349126次
