
|
別墅圖紙一:兄弟四間三層雙拼別墅設計圖
![]() 圖紙介紹:兄弟四間三層雙拼別墅設計圖,造價40萬左右,一起建雙拼別墅可以節約很多不必要的花銷,雙拼戶型也顯得兄弟更為團結,父母見也開心。 占地面積:15.0m*14.0m,210平方米左右,單戶105平方米左右; 建筑層高:三層; 建筑高度:11.7米(含屋頂); 設計功能: 一 層:客廳、餐廳、廚房、臥室、衛生間、儲藏間; 二 層:客廳、臥室x3、衛生間、陽臺; 三 層:客廳、臥室x2、衛生間、陽臺、大露臺; ![]() ![]() ![]() 別墅圖紙二:2020帶車庫三層雙拼別墅房屋設計圖,配色淡雅低調
![]() 圖紙介紹:2019帶車庫三層雙拼悲傷房屋設計圖,外觀簡單大氣,讓人一看就很舒服,無論是獨棟還是雙拼都十分吸睛,經濟實用。內部的各個布局充分滿足了農村生活的需要,露臺等也充分地滿足了農村晾曬東西的需要。 占地面積:16.00m*15.80m,224平方米左右,單戶112平左右; 建筑層高:三層; 建筑高度:13.29米(含屋頂); 設計功能: 一層:客廳、餐廳、廚房、臥室、衛生間、車庫+雜物間; 二層:起居室、臥室(帶衛生間)、臥室(帶衛生間、衣帽間)、陽臺、露臺; 三層:臥室(帶衛生間)、書房、客房、榻榻米、衛生間、陽臺、露臺; ![]() ![]() ![]() 別墅圖紙三:300平米農村三層雙拼悲傷房屋設計圖紙,帶地下儲藏室
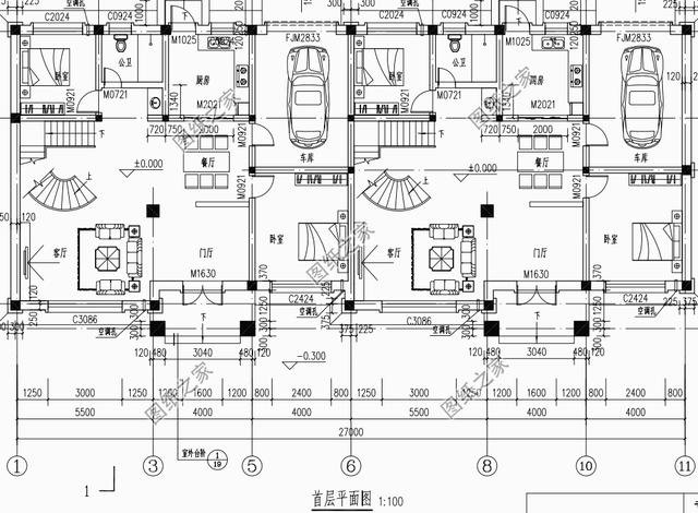
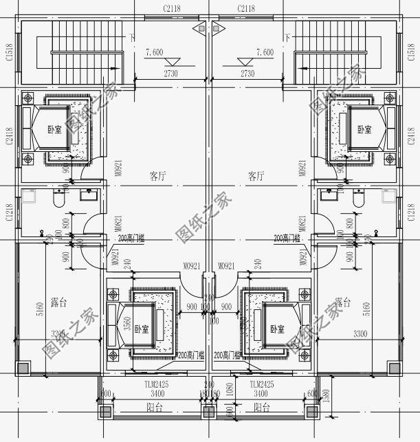
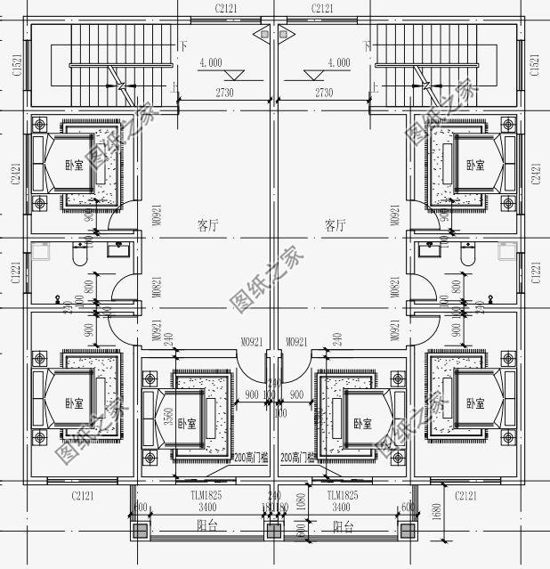
![]() 圖紙介紹:300平方米農村三層雙拼別墅房屋設計圖紙大全,帶地下室儲藏室、車庫、旋轉樓梯設計,別墅以米黃色為主色調,時尚而低調,室內整體顯得通透明亮,能夠給人營造溫馨舒適的家。 占地面積:27m*12m,300平方米左右,單戶150平左右; 建筑層高:三層; 建筑高度:13.17米(含屋頂); 設計功能: 地下室:儲藏室; 一層:門廳、客廳、餐廳、廚房、臥室x2、衛生間、車庫; 二層:客廳上空、起居室、茶座、主臥(帶衛生間)、臥室x3、洗衣房、衛生間、陽臺; 三層:起居室、主臥(帶衛生間)、臥室x2、洗衣房、衛生間、露臺; ![]() ![]() ![]() 以上就是農村兩兄弟合并別墅設計圖,不僅對稱,還四平八穩,方方正正,喜歡哪款,歡迎下方留言。
圖紙之家-專注農村別墅/自建房設計18年,集合國內200余位經驗豐富的設計師,被評為口碑最好的農村建筑設計公司! |

農村二層半新中式小別墅設計圖(帶閣樓層),二層半自建房戶型
占地:144平方米
新農村簡歐三層樓房圖片自建3層別墅施工設計圖及效果圖
占地:126平方米
高端歐式四層別墅房屋施工圖紙及效果圖,圓弧大窗
占地:170平方米
帶車庫現代三層樓房設計圖,外觀效果圖時尚、美觀
占地:160平方米
建房老師傅力薦!這塊二層簡歐設計圖,花錢少、顏值高,必火
占地:131.65平方米
普通農村二層房子設計圖 ,復式結構,帶車庫,占地160平米左右
占地:160平方米
110平方米新農村三層房屋設計圖,含外觀效果圖
占地:110平方米
農村20萬元二層小樓圖片及全套圖紙,外型美造價低
占地:多種戶型
田園兩層半別墅新農村房屋施工設計圖,外觀清新靚麗感情色彩豐
占地:144.12平方米
經濟型實用歐式一層小樓房別墅平房設計圖,11X10米
占地:103平方米
歐式四層(三層半)獨棟別墅設計圖復式,設計豪華時尚
占地:194平方米
125平方米新農村二層房屋施工設計CAD圖紙加效果圖
占地:125平方米
五十萬二層半鄉村別墅,客廳挑空設計,占地200平米左右
占地:200平方米
170平方米農村二層小別墅設計圖及效果圖
占地:170平方米
大氣、簡約三層雙拼別墅設計圖,適合和父母同住,既相互關照又
占地:260平方米
新農村四層獨棟復式別墅設計圖,設計豪華時尚
占地:140平方米
鄉村自建獨棟三層別墅樓房設計圖,預算30萬內
占地:120平方米
人氣頗高的三層新中式別墅方案,五種戶型,五種尺寸
占地:120-165平方米
二層帶架空層的農村別墅設計圖,功能齊全,超越十里八村
占地:130平方米
農村四層復式房屋設計圖紙,占地105平方米預算35萬左右
占地:105平方米
推薦:10套新農村自建房設計圖,2026年最新設計
閱讀次數:4825737次
100套鄉村別墅圖片大全,2026年最新設計
閱讀次數:2492203次
6款農村蓋一層平房的設計圖,10萬元就能建起來
閱讀次數:1852637次
這11個一層農村自建房別墅火爆了朋友圈!我最喜歡戶型十!你呢
閱讀次數:750268次
農村6萬元建一層小別墅圖,你敢相信嗎
閱讀次數:567686次
農村5萬塊就能自建房,6套普通房子設計圖分享,你沒看錯!
閱讀次數:419410次
8套農村漂亮三間平房圖片,非常適合在農村修建!
閱讀次數:411197次
農村自建房化糞池怎么做?附方案及施工過程
閱讀次數:391783次
農村一層三間平房設計圖,告別土氣養老房,讓人忍不住點贊
閱讀次數:350581次
新農村二層樓房圖片造價12萬,挑一套回家建房吧!
閱讀次數:349126次
