
|
戶型一:小戶型徽派建筑別墅設計方案,三層別墅設計圖
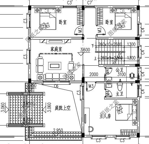
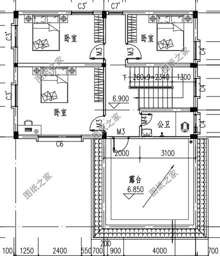
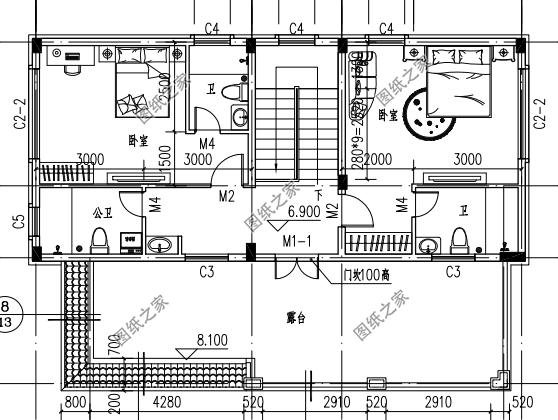
![]() 圖紙介紹:小戶型徽派建筑別墅設計方案大全,帶外觀效果圖片,造價較低,總建筑面積250平左右,滿足絕大部分家庭使用。 占地面積:9.9m*9.5m,95平方米左右; 建筑層高:三層; 建筑高度:12.24米(含屋頂); 設計功能: 一 層:門廳、客廳、餐廳、廚房、老人房(帶衛生間)、車庫; 二 層:客廳、主臥(帶衛生間)、臥室x3、衛生間; 三 層:主臥(帶衛生間)、臥室、衛生間、大露臺; ![]() ![]() ![]() 戶型二:徽派120平新農村住宅設計方案,帶外觀效果圖
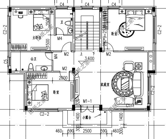
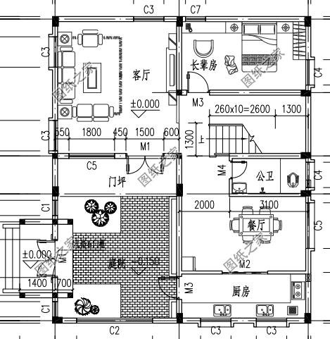
![]() 圖紙介紹:本方案為徽派120平新農村住宅設計方案,帶外觀效果圖, 占地面積:10m*11.9m,120平方米左右; 建筑層高:三層; 建筑高度:12.35米(含屋頂); 設計功能: 一 層:客廳、廚房、餐廳、老人房、衛生間、庭院 二 層:客廳、主臥室、臥室x2 三 層:臥室x3、衛生間、露臺 ![]() ![]() ![]() 戶型三:帶車庫徽派風格三層別墅房屋設計圖,新農村住宅設計
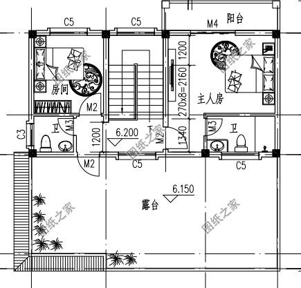
![]() 圖紙介紹:帶車庫徽派風格三層別墅設計圖,帶外觀效果圖,占地面積適中,造價合理,適合農村自建使用。 占地面積:13.5m*11m,140平方米左右; 建筑層高:三層; 建筑高度:13.5米(含屋頂); 設計功能: 一 層:門廳、客廳、餐廳、廚房、老人房(帶衛生間)、農具間(儲藏間)、衛生間車庫; 二 層:客廳、主臥(帶衛生間)、臥室x2、衛生間、小露臺; 三 層:主臥x2(帶衛生間)、衛生間、大露臺; ![]() ![]() ![]() 以上就是徽派建筑三層別墅設計圖,這三款造價不高,占地面積適中,滿足絕大部分家庭,喜歡哪款,歡迎下方留言。
圖紙之家-專注農村別墅/自建房設計18年,集合國內200余位經驗豐富的設計師,被評為口碑最好的農村建筑設計公司! |

經典農村三層樓房設計圖,10個不同尺寸戶型,各種戶型供您選擇
占地:多種
一層中式仿古三合院設計圖,實用又大氣,百年不過時
占地:366.67平方米
農村120平三層樓房設計圖,造型現代,帶屋頂花園
占地:120平方米
170平方米農村二層房屋設計施工圖,外觀圖時尚、好看
占地:172平方米
兩層三間農村自建房圖,125平有7間臥室,全家人都能住得下
占地:125.34平方米
復式三層雙拼別墅設計圖,客廳中空,旋轉樓梯
占地:350平方米
農村一層小別墅設計圖,經濟大氣,16米乘9米
占地:124.12平方米
120平方米新農村全套二層施工設計圖紙大全11X11米
占地:120平方米
130平方米復式三層別墅房屋設計圖,含外觀效果圖
占地:130平方米
高端大氣的農村四層樓房別墅設計圖,戶型真不錯,占地130多平
占地:135.31平方米
漂亮實用的新農村二層小樓圖,造價20萬左右,超大景觀露臺
占地:130平方米
帶車庫鄉下雙拼別墅設計圖,三層造型漂亮大全
占地:256平方米
私人經濟小別墅設計圖,農村自建小洋樓100平左右戶型
占地:104平方米
農村現代三層建房子設計圖及圖片,平屋頂的設計
占地:150平方米
2款帶露臺農村別墅設計圖二層精選,造價超值性價比
占地:多戶型可選
性價比超高一層農村自建別墅設計圖,戶型耐看不用爬樓
占地:158.6平方米
115平漂亮的三層別墅設計方案,外觀圖片大氣、精致
占地:115平方米
復式挑空二層別墅設計圖,占地175平米,建好住著很舒適
占地:175.44平方米
80平方米鄉村一層半帶閣樓自建別墅設計圖,帶車庫
占地:80平方米
一眼就驚艷的二層新中式別墅設計圖,大氣做夢都想回家蓋棟!
占地:128.58平方米
推薦:10套新農村自建房設計圖,2026年最新設計
閱讀次數:4825737次
100套鄉村別墅圖片大全,2026年最新設計
閱讀次數:2492203次
6款農村蓋一層平房的設計圖,10萬元就能建起來
閱讀次數:1852637次
這11個一層農村自建房別墅火爆了朋友圈!我最喜歡戶型十!你呢
閱讀次數:750268次
農村6萬元建一層小別墅圖,你敢相信嗎
閱讀次數:567686次
農村5萬塊就能自建房,6套普通房子設計圖分享,你沒看錯!
閱讀次數:419410次
8套農村漂亮三間平房圖片,非常適合在農村修建!
閱讀次數:411197次
農村自建房化糞池怎么做?附方案及施工過程
閱讀次數:391783次
農村一層三間平房設計圖,告別土氣養老房,讓人忍不住點贊
閱讀次數:350581次
新農村二層樓房圖片造價12萬,挑一套回家建房吧!
閱讀次數:349126次
