
|
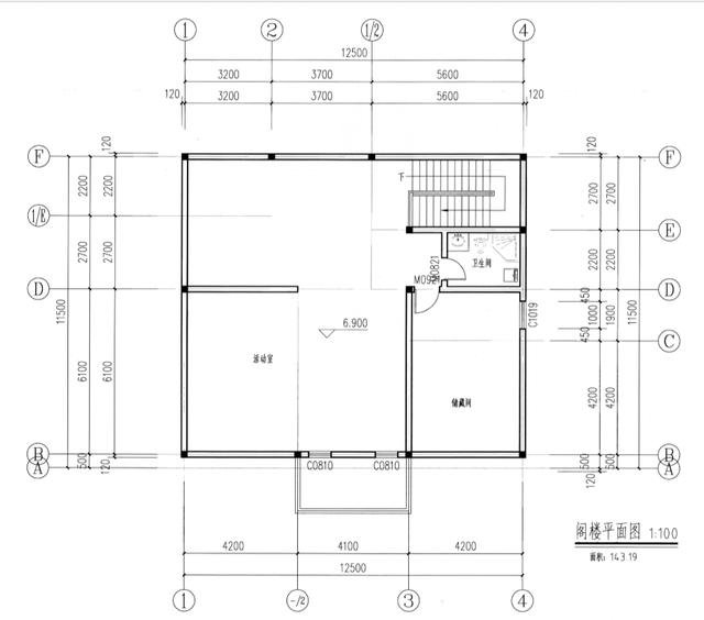
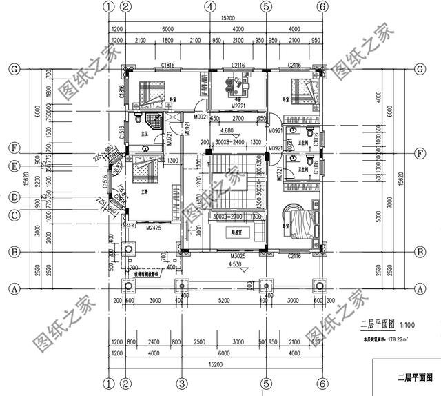
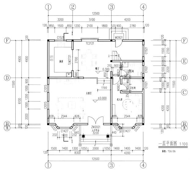
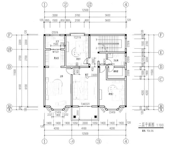
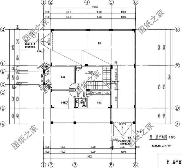
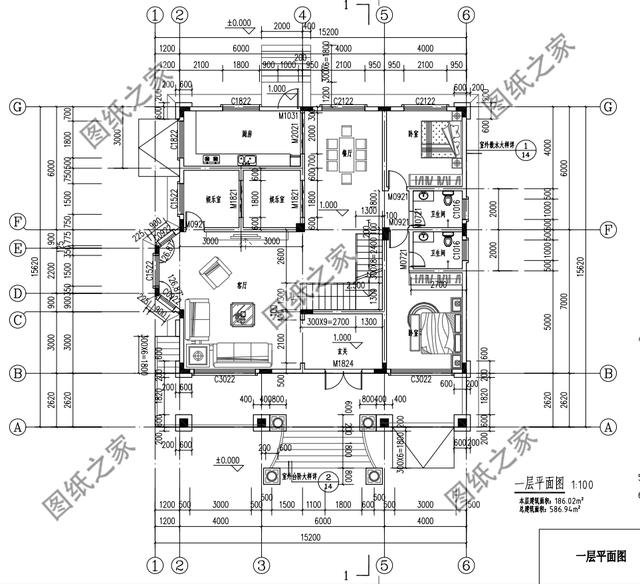
現在的農村,空氣清新、春夏秋冬分明,生活條件變好了,也吸引了越來越多的年輕人回家鄉生活,回鄉也會發現好多人家都建起了小別墅,打造美麗的新農村。今天分享三款不同風格的農村自建二層樓房設計圖,戶型和外觀都很精致,要建房的朋友可以分享給家人看看哦! 第一款:新中式二層別墅設計圖以及戶型圖![]() ![]() ![]() 圖紙介紹:新二層別墅設計圖,對稱設計,頂層大露臺,內設中空露天。別墅本身追求舒適的體驗感,大面積的落地窗設計,使得整體室內光線充足,居住體驗提升。 占地面積:11m*10.5m,114平方米左右 建筑層高:二層 建筑高度:8.2米(含屋頂) 設計功能: 一層戶型:客廳、餐廳、廚房、衛生間、主臥、書房、庭院 二層戶型:臥室x2、書房、涼亭茶座、衛生間、大露臺 ![]() ![]() 第二款:簡歐式二層別墅設計圖以及戶型圖![]() ![]() 農村二層半別墅設計設計圖(帶閣樓),戶型經典實用,外觀精致、美觀,二層主臥寬敞明亮的主臥套間供主人居住,二樓衛生間專門設有洗澡間,生活更舒適,方便。 占地面積:12.5m*11.5m,占地150平方米左右 建筑層高:二層半(帶悶頂層) 建筑高度:9.9米(含屋頂) 功能: 一層戶型:大客廳、餐廳、廚房、老人房(帶衛生間)、衛生間 二層戶型:客廳、主臥(帶更衣室和衛生間)、臥室x2、衛生間(帶洗澡間) 閣樓層:活動室、儲藏間、衛生間 ![]() ![]() ![]() 第三款:豪華型二層別墅設計圖以及戶型圖![]() ![]() ![]() 奢華歐式二層樓設計圖,入戶設有玄關,一層大窗設計既時尚又增加了房間的空間,二層設有4室1廳3衛1書房,房間數量較多,其中兩個是帶獨立衛生間的主臥,陽臺的設計既美觀又可以方便晾曬等,小客廳的設計完全符合農村的傳統,一般用來接待親朋好友比較重要的客人,整個布局緊湊又不擁擠,不浪費面積。 占地面積:15.2m*15.6m,190平方米左右 建筑層高:二層 建筑高度:10.58米(含屋頂) 設計功能: 地下室:車庫、活動室、衛生間 一層戶型:玄關、客廳、餐廳、廚房、衛生間、主臥(帶衛生間)、臥室 二層戶型:起居室、主臥(帶衛生間)×2、臥室×2、書房、衛生間、、大露臺 ![]() ![]() ![]() 以上就是小編介紹的農村自建二層樓房設計圖以及戶型圖,快分享給家人看看吧!本文由圖紙之家原創,歡迎關注,帶你一起長知識!
圖紙之家-專注農村別墅/自建房設計18年,集合國內200余位經驗豐富的設計師,被評為口碑最好的農村建筑設計公司! |

210平左右三層(兩層半)雙拼新農村別墅設計圖紙及外觀效果圖
占地:206.712平方米
四層簡單新農村房屋設計圖紙,造價低,適合農村自建
占地:多種戶型
農村平屋頂中式合院設計圖,帶車庫帶庭院
占地:210平方米
農村房子設計圖三層獨棟別墅方案,占地130平方米
占地:130平方米
闊氣高端的三層別墅設計圖,亮得恰到好處,永遠也住不膩
占地:160平方米
最新設計的農村二層自建房屋設計圖,占地180平米,經濟實用
占地:180平米
面寬13米三層新中式獨棟別墅設計圖,復式自建房戶型方案
占地:201.25平方米
帶土灶房一層四開間別墅設計方案,溫馨舒適的雅舍
占地:164.34平方米
160平米三層別墅設計圖,功能齊全,外觀漂亮,適合和父母同住
占地:160平方米
農村120平三層樓房設計圖,造型現代,帶屋頂花園
占地:120平方米
帶堂屋設計一層三合院設計圖,白墻黛瓦古韻悠悠,比高層舒服接
占地:179.37平方米
一層半中式合院別墅設計圖,帶配房,有庭有院有品位
占地:135平方米左右
最漂亮的一層平房圖片及設計圖,造價18萬左右,結構簡單易于施
占地:186平方米
現代風格建房圖紙二層別墅設計方案,外觀百看不厭
占地:多戶型可選
最新農村20萬元二層半別墅設計圖,占地僅110多平
占地:110平方米
兩開間自建別墅設計圖,占地小造型簡約,不愁宅基地面寬小了
占地:118.4平方米
開間20米雙拼別墅三層設計圖,兄弟合建省時省力又省心
占地:205.8平方米
獨立餐廳廚房,平屋頂現代風格三層別墅設計圖
占地:159.02平方米
120平帶車庫二層農村別墅施工圖,簡約時尚的外觀
占地:119.13平方米
農村二層仿古尖屋頂別墅設計圖,外觀古樸耐看
占地:87平方米左右
推薦:10套新農村自建房設計圖,2026年最新設計
閱讀次數:4825737次
100套鄉村別墅圖片大全,2026年最新設計
閱讀次數:2492203次
6款農村蓋一層平房的設計圖,10萬元就能建起來
閱讀次數:1852637次
這11個一層農村自建房別墅火爆了朋友圈!我最喜歡戶型十!你呢
閱讀次數:750268次
農村6萬元建一層小別墅圖,你敢相信嗎
閱讀次數:567686次
農村5萬塊就能自建房,6套普通房子設計圖分享,你沒看錯!
閱讀次數:419410次
8套農村漂亮三間平房圖片,非常適合在農村修建!
閱讀次數:411197次
農村自建房化糞池怎么做?附方案及施工過程
閱讀次數:391783次
農村一層三間平房設計圖,告別土氣養老房,讓人忍不住點贊
閱讀次數:350581次
新農村二層樓房圖片造價12萬,挑一套回家建房吧!
閱讀次數:349126次
