
|
人生在世,有一處舒適的住所是幸福的,每天工作回到家,一家子其樂融融,幸福洋溢。現在的農村建房也更側重舒適度了,不僅要求外觀漂亮,室內布局還要符合現代人的生活習慣,總之住得舒服最重要!今天給大家介紹的這款占地190平方米二層自建房設計圖,戶型還不錯,美觀實用,馬上來看看具體介紹。
正面效果圖 一層外墻采用多彩文化石裝飾,正立面左側設有三個并排的拱形窗戶,右邊有凸窗,二層有陽臺和露臺,外墻采用淡黃色真石漆,屋頂四個坡面設計,橙黃色十分亮眼,簡約時尚的外觀設計,給人一種清新明快的舒適感!
背面效果圖 本套二層自建房設計圖詳情介紹 開間15.2米,進深13.8米,首層占地面積194.6㎡,建筑面積477㎡,采用磚混結構,主體造價預算大概40萬左右。
俯視圖 室內布局
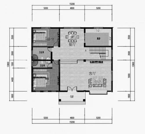
一層平面圖 一層:門廳、客廳、臥室(帶衛生間)、臥室、公衛、廚房、餐廳 門廳右邊是客廳,客廳的面積較大,逢年過節來客找到的空間也充足一些,廚房在樓梯間旁邊,正對門廳的是餐廳,與廚房相連,方便做飯進餐。兩間臥室均布置在西面,其中一間帶有獨立衛生間,公衛則在兩臥室之間。
二層平面圖 二層:客廳(帶陽臺)、臥室(帶衛生間、露臺)、臥室(帶衛生間)、臥室×2、書房 二層客廳設在南面正中位置,附有陽臺,光線充足,本層共設有4間臥室,其中一間臥室帶有衛生間和露臺,一間帶有衛生間。書房設在客廳正對面,公衛布局在樓梯正對面。 圖紙之家-專注農村別墅/自建房設計18年,集合國內200余位經驗豐富的設計師,被評為口碑最好的農村建筑設計公司! |

豪華三層別墅設計圖紙,全套施工方案帶效果圖
占地:130平方米
三層新農村別墅設計圖片及全套圖紙,外形對稱,帶露臺,這個戶
占地:160平方米
中國最美建筑四合院設計圖紙及效果圖,顏值爆棚
占地:152平方米左右
2026最受歡迎的三層農村小別墅設計圖紙,占地155平方米
占地:155平方米
最新款農村三層自建房戶型設計圖及外觀圖片照片,鄉村蓋房精選
占地:112.56平方米
徽派3層農村小別墅設計圖,廣東新農村住宅設計圖集
占地:110平方米
130平帶閣樓兩層半別墅房屋設計圖,含外觀效果圖
占地:130平方米
農村兩間三層房屋設計圖,含外觀圖片
占地:120平方米
10X13米新款歐式三層別墅樓房設計圖,外觀清新明亮
占地:140平方米
新中式三層雙拼別墅設計圖,外觀圖片美觀、大氣
占地:176平方米
適合7字型宅基地蓋的一層別墅,中式風格設計
占地:163平方米
2026最新兄弟簡歐雙拼別墅設計圖紙,單戶130平米左右
占地:260平方米
經濟實用二層農村自建房設計圖,新中式風格12x11米
占地:114平方米
新中式三層樓房設計圖紙,帶地下室,地下車庫,帶電梯
占地:230平方米
90平米三層農村房子設計圖,簡單大氣實用
占地:94.28平方米
150平農村三層歐式別墅設計圖紙,盡顯豪華與精致,讓人羨慕不已
占地:147.62平方米
125平兩層別墅房屋設計圖,帶普通和復式兩個戶型
占地:125平方米
120平帶車庫二層農村別墅施工圖,簡約時尚的外觀
占地:119.13平方米
農村17萬元一層自建別墅設計圖,外觀簡潔,戶型方正
占地:163平方米
帶架空層的兩層別墅設計圖,通透又明亮,建在農村絕對有面子
占地:106.79平方米
推薦:10套新農村自建房設計圖,2026年最新設計
閱讀次數:4825737次
100套鄉村別墅圖片大全,2026年最新設計
閱讀次數:2492203次
6款農村蓋一層平房的設計圖,10萬元就能建起來
閱讀次數:1852637次
這11個一層農村自建房別墅火爆了朋友圈!我最喜歡戶型十!你呢
閱讀次數:750268次
農村6萬元建一層小別墅圖,你敢相信嗎
閱讀次數:567686次
農村5萬塊就能自建房,6套普通房子設計圖分享,你沒看錯!
閱讀次數:419410次
8套農村漂亮三間平房圖片,非常適合在農村修建!
閱讀次數:411197次
農村自建房化糞池怎么做?附方案及施工過程
閱讀次數:391783次
農村一層三間平房設計圖,告別土氣養老房,讓人忍不住點贊
閱讀次數:350581次
新農村二層樓房圖片造價12萬,挑一套回家建房吧!
閱讀次數:349126次
