
|
打算回農村老家建個一層養老房,以后老了有地方住。但是大家都知道,建房子除了挑戶型挑款式剩下的就是關于預算了。農村人都不容易,辛辛苦苦賺大半輩子錢,蓋完房子還想給自己留點養老錢呢。所以今天小編就給大家提供四款農村一層15萬別墅設計圖,造價經濟,實用舒適,簡直太值了。
款式一:農村經濟型歐式一層平房設計圖,占地11米×10米
![]() ![]() ![]() ![]() 圖紙介紹:這款經濟型實用一層小,占地11X10米,外觀精致大氣,門前小走廊可供晾曬和日常休閑,室內布局舒適合理,這款別墅無論在占地還是造價上,都特別適合農村建房的需求 占地面積:11m*10m,103平方米左右; 建筑層高:一層; 建筑高度:6.12米(含屋頂); 設計功能: 一層戶型:客廳、餐廳、廚房、主臥(帶衛生間)、臥室x2、衛生間、化糞池;
款式二:占地140平方米一層平房別墅設計圖,四室兩廳設計
![]() ![]() ![]() ![]() 圖紙介紹:本戶型占地140平米,戶型以實用為主,外觀配色適合農村自建,漂亮、精致,兩廳兩衛四室對一般家庭來說絕對夠用。 占地面積:13.5m*9.9m,建筑面積140平方米左右; 建筑層高:一層; 建筑高度:4.54米(含屋頂); 設計功能: 一層設計:客廳、餐廳、廚房、衛生間、臥室x4(其中1個臥室帶衛生間);
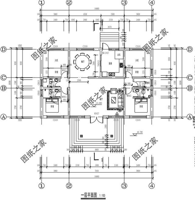
款式三:農村一層平房別墅設計圖,占地150平方米,主體造價15萬
![]() ![]() ![]() ![]() 圖紙介紹:這款別墅戶型周正,設計功能很齊全。總設計有三室兩廳一廚兩衛,帶有書房和棋牌室,功能齊全,大方實用,造價經濟實惠。 占地面積:12.7m*13.3m,154平方米左右; 建筑層高:一層; 建筑高度:7.7米(含屋頂); 設計功能:客廳、餐廳、廚房、臥室(帶衛生間)、臥室×2、書房、棋牌室、衛生間;
款式四:農村一層平房外觀圖,占地160平方米,簡約大氣
![]() ![]() ![]() ![]() 圖紙介紹:這款別墅戶型雖然只有一層,但是外觀看上去也很大氣,戶型簡單但是非常吸引人,也是大多數人喜歡的風格戶型。 占地面積:16.0m*10.0m,160平方米左右; 建筑層高:一層; 建筑高度:6.0米(含屋頂); 設計功能:客廳、餐廳、廚房、、臥室(帶衛生間)×2、臥室×2、衛生間、儲藏間; 看了今天這4套圖紙,你有沒有心動呢?
圖紙之家-專注農村別墅/自建房設計18年,集合國內200余位經驗豐富的設計師,被評為口碑最好的農村建筑設計公司! |

七字型一層平房別墅設計圖紙,15X16米
占地:177.9平方米
帶陽光房的二層簡歐別墅圖紙,戶型經典實用
占地:147.2平方米
小L型新款二層別墅設計圖,復式客廳旋轉樓梯,14米乘13米
占地:182平方米
180平方現代風三層別墅設計圖,經典大氣,百看不厭
占地:180.48平方米
2款現代風格農村兩層別墅設計圖,時尚漂亮
占地:多戶型可選
經典美式風100平米二層小別墅設計方案,鄉村建房首選
占地:100.17平方米
新款中式二層四合院住宅設計圖,農村自建帶露臺設計
占地:223平方米
好看又簡單的二層樓房設計圖紙,戶型還實用
占地:150平方米
12.8乘10米一層平房別墅設計圖,四室二廳南北通透
占地:128.85平方米
10米×12米30萬以內農村建房三層豪華歐式別墅圖,處處顯品味
占地:120平方米
三層別墅設計施工圖紙(含外觀效果圖)帶大露臺
占地:160平方米
鄉下一層門面二層別墅設計圖紙,帶門面的自建房方案
占地:198.4平方米
歐式豪華三層別墅設計圖,占地面積170平米,高端大氣帶露臺
占地:170平方米
仿古建筑中式祠堂設計圖紙及外觀效果圖
占地:546平方米
20萬左右普通農村房子設計圖,二層簡約小別墅
占地:140平方米
美式田園二層別墅設計方案圖,全套設計圖+效果圖
占地:235平方米
七字形農村自建房二層設計圖,“L”型別墅設計,簡約時尚!
占地:209平米左右
2026新中式農村三層別墅圖,外觀漂亮,看一眼就愛上
占地:240平方米
經典一層帶閣樓三合院別墅設計圖,18米乘9.5米
占地:118.63平方米
農村兩層帶地下室別墅設計圖,還帶庭院規劃,適合農村建
占地:144.5平方米
推薦:10套新農村自建房設計圖,2026年最新設計
閱讀次數:4825737次
100套鄉村別墅圖片大全,2026年最新設計
閱讀次數:2492203次
6款農村蓋一層平房的設計圖,10萬元就能建起來
閱讀次數:1852637次
這11個一層農村自建房別墅火爆了朋友圈!我最喜歡戶型十!你呢
閱讀次數:750268次
農村6萬元建一層小別墅圖,你敢相信嗎
閱讀次數:567686次
農村5萬塊就能自建房,6套普通房子設計圖分享,你沒看錯!
閱讀次數:419410次
8套農村漂亮三間平房圖片,非常適合在農村修建!
閱讀次數:411197次
農村自建房化糞池怎么做?附方案及施工過程
閱讀次數:391783次
農村一層三間平房設計圖,告別土氣養老房,讓人忍不住點贊
閱讀次數:350581次
新農村二層樓房圖片造價12萬,挑一套回家建房吧!
閱讀次數:349126次
