
|
戶型一:15*11米左右新中式兩層別墅圖,古風古味,帶庭院
![]() 圖紙介紹:15×11米左右新中式兩層別墅方案圖,古風古味,帶一小庭院子戶型圖。藍白灰經典搭配,至簡至美,古色古香。一宅一院,展現廣闊空間,休閑愜意,在鄉野中回歸自然清靜。圍合而成的宅院尺度合宜,構成了對外界較為隱秘的小院空間,由此溝通院內外的山水。屋內各臥室面積大小適宜,居住舒適。 占地面積:15.34m*10.92m,161.72平方米左右; 建筑層高:二層; 建筑高度:8.355米(含屋頂); 設計功能: 一層戶型:堂屋、餐廳、廚房、臥室x3、衛生間; 二層戶型:書房、茶室、健身房、臥室x3、衛生間、露臺、陽臺x2; ![]() ![]() 戶型二:三層別墅建筑設計圖,帶外觀效果圖,帶院子
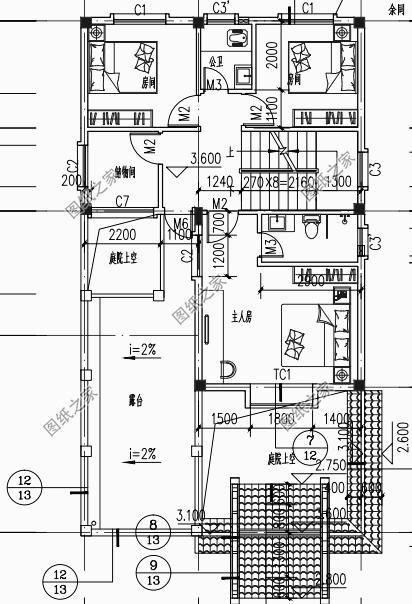
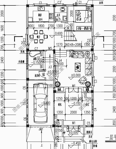
![]() 圖紙介紹:本戶型秉承傳統并結合現代建筑手法,充分考慮農村生活和生產的需求,功能分區合理,兩院落的設計,增添了現代家庭生活的趣味性和多樣性,體現地方農村建筑的特色。 占地面積:8m*14.8m,帶院子占地120平方米左右; 建筑層高:三層; 建筑高度:11.1米(含屋頂); 設計功能: 一 層:客廳、餐廳、廚房、臥室、衛生間、前院、側院、農具間(儲藏間)、車庫; 二 層:主臥(帶衛生間)、臥室x2、衛生間、儲藏間、露臺; 三 層:主臥(帶衛生間)、臥室x2、衛生間、露臺; ![]() ![]() ![]() 戶型三:帶中式小院的二層仿古別墅設計圖,小戶型自建房設計
![]() 圖紙介紹:帶中式小院子的自建房別墅設計圖,仿古中式風格,造型漂亮極了,小戶型設計,一層建筑面積80多平,整體外觀精致美觀,平面布局簡單合理。灰色琉璃瓦坡屋頂,功能實用,造型優美,給人一種明朗素雅和層次分明的韻律美的享受。 占地面積:9.9m*9m,82.94平方米; 建筑層高:二層; 建筑高度:8.43米(含屋頂); 設計功能: 一層戶型:庭院、客廳、廚房、餐廳、臥室、衛生間; 二層戶型:臥室(帶衛生間)、書房、臥室、衛生間; ![]() ![]() 以上就是農村小院子花園效果圖,很多人都希望自己的房子有個小院子,養養花,種種菜。也會想象自己住在里邊的時候,很溫馨。喜歡哪款,歡迎下方留言。
圖紙之家-專注農村別墅/自建房設計18年,集合國內200余位經驗豐富的設計師,被評為口碑最好的農村建筑設計公司! |

地中海風格二層別墅設計圖及效果圖,外觀有格調
占地:125平方米
230平方米新農村二層自建別墅設計圖紙帶外觀圖,20X11米
占地:227平方米
110平預算20萬內三層別墅設計圖,含效果圖
占地:110平方米
帶大套間新農村二層別墅自建房設計圖紙帶效果圖
占地:185平方米
中式徽派二層農村別墅設計圖,白墻黛瓦馬頭墻,永不過時
占地:171平方米
230平方農村雙拼別墅設計圖,26x11米自建房屋戶型
占地:230平方米
26萬二層平頂別墅樓設計圖,客廳中空,占地120平米
占地:120平方米
12x9米自建一層小別墅設計圖,占地不大造價低,簡單舒適人人夸
占地:108.36平方米
110平方米農村兩層別墅設計效果圖及圖紙,12X12米
占地:110平方米
兄弟合建房新農村三層雙拼別墅建筑圖紙及效果圖,300平方米
占地:301平方米
三層別墅設計施工圖紙(含外觀效果圖)帶大露臺
占地:160平方米
面寬17米農村一層平房設計圖,簡約空間敞亮
占地:169.393平方米
現代新中式四層復式別墅房屋設計圖,旋轉樓梯,含效果圖
占地:150平方米
自建三層小洋樓設計圖紙,含效果圖,帶車庫
占地:121平方米
農村二層帶電梯別墅設計圖,歐式風格,避免老人上下樓的麻煩
占地:179.94平方米
最新140平米三層自建房屋設計圖紙,本戶型帶小院
占地:140平米
大戶型高端三層別墅設計圖紙,外觀效果圖+CAD建筑圖
占地:227平方米
2026兩層半20多萬農村自建房圖,簡歐風格,美觀大氣
占地:120平方米
105平方米新農村三層別墅設計圖,全套CAD建筑圖+效果圖
占地:105平方米
大氣的150平方米新中式三層別墅建筑圖及效果圖
占地:150平方米左右
推薦:10套新農村自建房設計圖,2026年最新設計
閱讀次數:4825737次
100套鄉村別墅圖片大全,2026年最新設計
閱讀次數:2492203次
6款農村蓋一層平房的設計圖,10萬元就能建起來
閱讀次數:1852637次
這11個一層農村自建房別墅火爆了朋友圈!我最喜歡戶型十!你呢
閱讀次數:750268次
農村6萬元建一層小別墅圖,你敢相信嗎
閱讀次數:567686次
農村5萬塊就能自建房,6套普通房子設計圖分享,你沒看錯!
閱讀次數:419410次
8套農村漂亮三間平房圖片,非常適合在農村修建!
閱讀次數:411197次
農村自建房化糞池怎么做?附方案及施工過程
閱讀次數:391783次
農村一層三間平房設計圖,告別土氣養老房,讓人忍不住點贊
閱讀次數:350581次
新農村二層樓房圖片造價12萬,挑一套回家建房吧!
閱讀次數:349126次
