
|
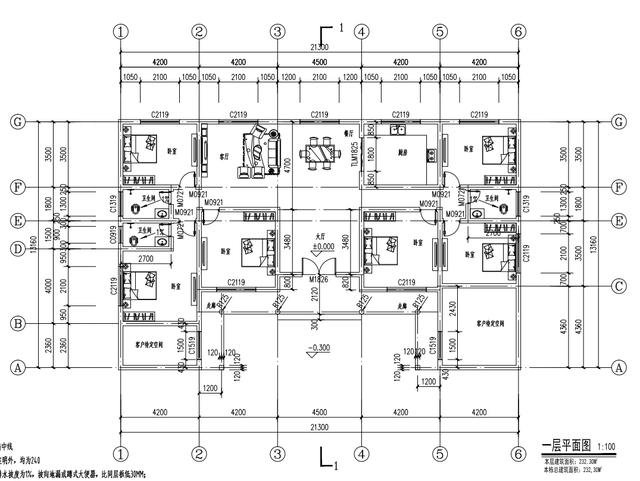
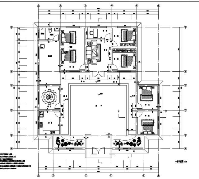
我們中國的文化,已泱泱五千年,全世界都已認識。吃穿住行都蘊含著我們的獨特是文化,中餐、旗袍、京劇等皆是精華。而說到住,國人心中莫過于中式合院了,古樸典雅,集古人之精華,經典的粉墻黛瓦飛檐翹角,古樸大方的設計將中國人的內斂氣質演繹的淋漓盡致。 今天小編就介紹三款一層三合院平房設計圖以及戶型圖,看完分享給家人看看吧! 第一款:帶中式庭院的農村=一層三合院設計圖以及戶型圖![]() 這款農村一層三合院自建房設計圖,妙搭中式,頤養天年,設計師以客廳為中心點,并在兩側布置了臥室。客廳南北通透,室內空間較為開朗開闊,并且在靠近窗邊的位置,預留了連廊,方便家里的老人曬太陽。廂房中,共布置了兩間臥室,可供親人留宿。立面上選用了中式傳統建筑的白墻黛瓦風格,屋頂則沿用了硬山頂設計,有利于防風防火的同時,亦保持著精美的建筑之風。 占地面積:16.76m*18.8m,222平方米左右(含連廊); 建筑高度:6.36米(含屋頂); 戶型:客廳、廚房、餐廳、臥室(帶衛生間和衣帽間)X2、臥室(帶衛生間和書房)、臥室、雜物間、衛生間; ![]() 第二款: 古典一層別墅設計圖以及平面圖![]() ![]() ![]() 一層三合院自建房屋圖紙,外觀不僅古樸洋氣,而且戶型實用。不僅住著舒服,而且造價經濟實惠,適合回農村養老。 占地面積:21.3m*13.1m,230平方米左右 建筑高度:6.4米(含屋頂); 設計功能:過廳、客廳、餐廳、廚房、主臥(帶衛生間)、臥室×5、衛生間×2、客戶待定空間; ![]() 第三款:一層別墅設計圖以及戶型圖![]() 本戶型為一層別墅設計方案圖,含外觀效果圖,造型古典,美觀,戶型設計合理,自建推薦圖紙。 占地面積:19.26m*19.43m(含院子),360平方米左右(含院子); 建筑層高:一層; 建筑高度:10.30米(含屋頂); 設計功能: 一層:院子、東側(臥室x2)、西側(餐廳、廚房)、客廳、臥室x3、書房、洗衣房、衛生間(淋浴房);
![]() 今天介紹的一層三合院平房設計圖以及戶型圖,喜歡哪個評論告訴我!
圖紙之家-專注農村別墅/自建房設計18年,集合國內200余位經驗豐富的設計師,被評為口碑最好的農村建筑設計公司! |

農村二層半別墅圖片大全,二層半別墅設計圖推薦
占地:160平方米
中國最美建筑四合院設計圖紙及效果圖,顏值爆棚
占地:152平方米左右
高端大氣四層復式別墅房屋設計圖,含外觀效果圖
占地:270平方米
農村四層樓房設計圖,占地120平方米,歐式風格,高端大氣
占地:120平方米
農村三間四層樓房設計圖,農村輕奢型四層別墅
占地:160平方米
居家養老一層別墅設計圖,面寬20米,農村建一棟不吃虧
占地:259.7平方米
農村一層別墅設計圖,3室2廳帶書房,占地面積200平米左右
占地:200平方米
現代新中式四層復式別墅房屋設計圖,旋轉樓梯,含效果圖
占地:150平方米
帶地下室KTV三層農村自建別墅設計圖,12米乘12.5米
占地:131.7平方米
新農村中式一層三合院效果圖及全套設計圖,喜歡合院的有福了
占地:118平方米
140平米一層農村自建房設計圖,好看不貴簡約耐看
占地:141.12平方米
農村建房兄弟雙拼三層,經典的歐式風格,大氣的外觀
占地:250平方米
帶架空層的農村二層別墅設計方案,造型大氣漂亮
占地:176平方米
2026最美三層別墅設計圖紙及效果圖,十佳最美農村別墅
占地:151平方米
帶中式小院的二層仿古別墅設計圖,小戶型自建房設計,外觀美極
占地:82.94
簡歐式三層半(4層)農村自建房別墅設計圖效果圖,帶車庫戶型
占地:127平方米
農村最漂亮二層歐式別墅設計圖,面寬16.5米(含車庫)
占地:180.366
農村27萬二層自建別墅設計圖,占地140平米左右,戶型極好
占地:140平方米
2026帶車庫三層雙拼別墅房屋設計圖,配色淡雅低調
占地:224平方米
在農村30萬可以建造的三層別墅款式,帶別墅外觀圖片
占地:138平方米
推薦:10套新農村自建房設計圖,2026年最新設計
閱讀次數:4825737次
100套鄉村別墅圖片大全,2026年最新設計
閱讀次數:2492203次
6款農村蓋一層平房的設計圖,10萬元就能建起來
閱讀次數:1852637次
這11個一層農村自建房別墅火爆了朋友圈!我最喜歡戶型十!你呢
閱讀次數:750268次
農村6萬元建一層小別墅圖,你敢相信嗎
閱讀次數:567686次
農村5萬塊就能自建房,6套普通房子設計圖分享,你沒看錯!
閱讀次數:419410次
8套農村漂亮三間平房圖片,非常適合在農村修建!
閱讀次數:411197次
農村自建房化糞池怎么做?附方案及施工過程
閱讀次數:391783次
農村一層三間平房設計圖,告別土氣養老房,讓人忍不住點贊
閱讀次數:350581次
新農村二層樓房圖片造價12萬,挑一套回家建房吧!
閱讀次數:349126次
