
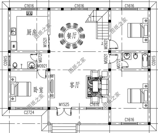
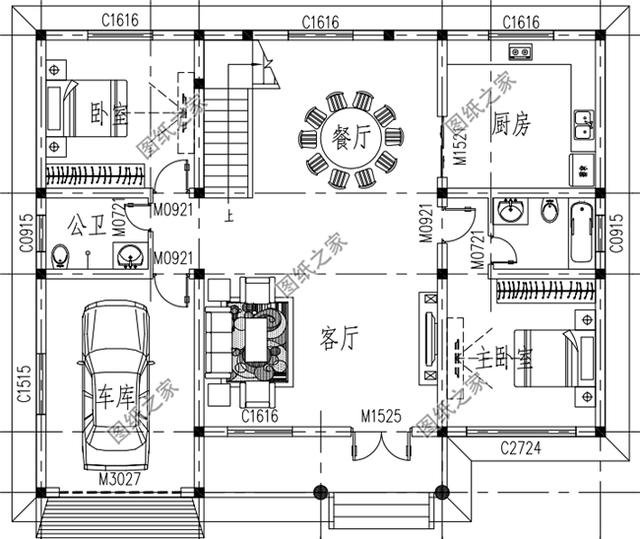
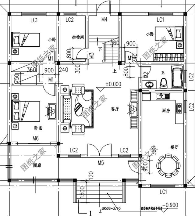
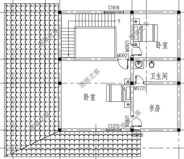
一層半房子一:160平方米歐式一層半別墅本戶型為歐式一層半(二層)別墅設計圖,帶露臺,外觀時尚,戶型布局合理、功能齊全。 ![]() 占地面積:13.14m*12.84m,160平方米左右; 建筑層高:一層半(二層); 建筑高度:9.32米(含屋頂); 設計功能: 一層房屋戶型:客廳、廚房、餐廳、儲藏間、衛生間、臥室x3(其中右側2個臥室帶衣帽間); 二層房屋戶型:臥室x2、儲藏間、衛生間、大露臺、小露臺; ![]() ![]() 一層半房子二:一層半小別墅設計圖帶效果圖本戶型為農村一層半小別墅設計圖,外觀艷麗,一層已經能滿足大部分家庭的使用,二層一個主臥帶書房和衛生間。 ![]() 占地面積:13.80m*11.30m,155平方米左右; 建筑層高:一層半; 建筑高度:7.58米(含屋頂); 設計功能: 一層:客廳、餐廳、廚房、衛生間、主臥(帶衛生間)、臥室x2; 閣樓:臥室、主臥(帶衛生間和書房); ![]() ![]() 一層半房子三:農村一層半房屋設計圖本戶型為農村一層半房屋設計圖,帶車庫,外觀艷麗,富有現代氣息,戶型布局合理,二層中有一個主臥帶書房和衛生間。 ![]() 占地面積:13.80m*11.30m,155平方米左右; 建筑層高:一層半; 建筑高度:7.58米(含屋頂); 設計功能: 一層:客廳、餐廳、廚房、衛生間、主臥(帶衛生間)、臥室、車庫; 閣樓:臥室、主臥(帶衛生間和書房); ![]() ![]() 以上就是幾款農村一層半房子圖片,大家喜歡哪款呢,評論告訴我吧!
圖紙之家-專注農村別墅/自建房設計18年,集合國內200余位經驗豐富的設計師,被評為口碑最好的農村建筑設計公司! |

氣派的帶旋轉樓梯三層別墅房屋設計圖,戶型很好
占地:150平方米
230平(單戶115平)雙拼別墅房屋設計圖及效果圖大全
占地:230平方米
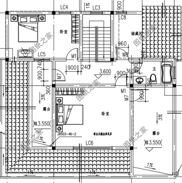
農村二層半樓房設計圖及效果圖,歐式風格
占地:150平方米
一層中式七字型房屋設計圖,帶院子經典設計,耐看不過時
占地:163.18平方米
兩層半樓房設計圖及效果圖,農村二層房屋設計圖推薦
占地:135平方米
180平方米漂亮大氣三層雙拼別墅設計圖,自建房圖片
占地:186平方米
三間二層最好看別墅設計圖,簡單實用美到爆炸,農村建房新潮流
占地:121.51平方米
150平二層別墅房屋設計圖,現代風格,造型精致
占地:150平方米
140平三層自建房別墅設計圖,外觀圖大氣、美觀
占地:140平方米
110平農村二層房屋設計圖,新農村自建房戶型推薦
占地:110平方米
農村四間二層別墅設計圖,七室二廳帶車庫,室內寬敞鄰居都羨慕
占地:217.1平方米
120平方米新農村全套二層施工設計圖紙大全11X11米
占地:120平方米
時尚二層現代風別墅設計圖紙,平屋頂方案13×10米
占地:98平方米
16×12米二層歐式帶車庫農村小別墅,既舒適又美觀
占地:180平方米
一二層都帶廚房餐廳的獨棟二層別墅設計圖,帶雙廚房
占地:143.68平方米
面寬8米多的三層農村別墅設計圖,小開間宅基地推薦
占地:112.82平方米
性價比超高一層農村自建別墅設計圖,戶型耐看不用爬樓
占地:158.6平方米
160平方米三層帶大露臺的復式別墅設計圖紙
占地:155平方米
120平農村三層房屋設計圖,含外觀圖片
占地:120平方米
戶型好的農村三層樓房設計圖,帶外觀效果圖
占地:110平方米
推薦:10套新農村自建房設計圖,2026年最新設計
閱讀次數:4825737次
100套鄉村別墅圖片大全,2026年最新設計
閱讀次數:2492203次
6款農村蓋一層平房的設計圖,10萬元就能建起來
閱讀次數:1852637次
這11個一層農村自建房別墅火爆了朋友圈!我最喜歡戶型十!你呢
閱讀次數:750268次
農村6萬元建一層小別墅圖,你敢相信嗎
閱讀次數:567686次
農村5萬塊就能自建房,6套普通房子設計圖分享,你沒看錯!
閱讀次數:419410次
8套農村漂亮三間平房圖片,非常適合在農村修建!
閱讀次數:411197次
農村自建房化糞池怎么做?附方案及施工過程
閱讀次數:391783次
農村一層三間平房設計圖,告別土氣養老房,讓人忍不住點贊
閱讀次數:350581次
新農村二層樓房圖片造價12萬,挑一套回家建房吧!
閱讀次數:349126次
