
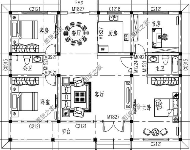
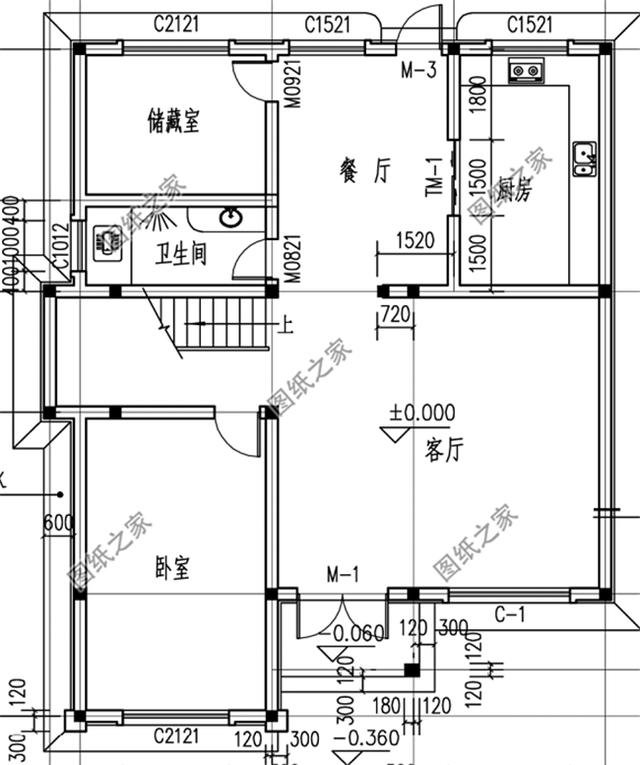
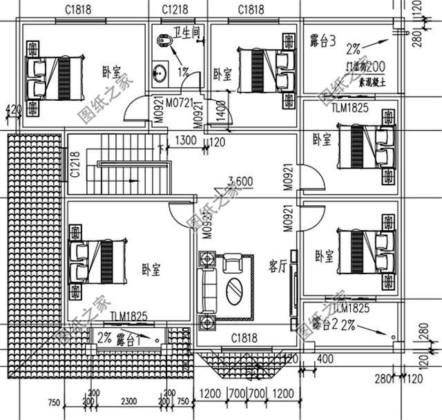
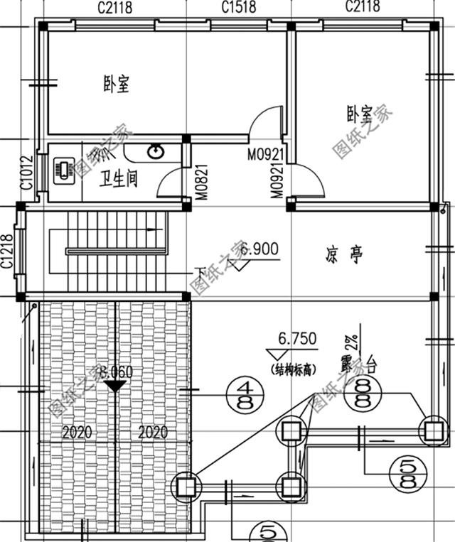
第一款:最漂亮的一層平房圖片本戶型為漂亮、美觀的一層平房設計圖,含外觀圖片,內部布局非常合理,南北通透,采光優良,4室兩廳兩衛。 ![]() 占地面積:14.0m*10.5m,建筑面積145平左右; 建筑層高:一層; 建筑高度:6.50米(含屋頂); 設計功能: 一層戶型設計:客廳、餐廳、廚房、主臥(帶衛生間)、臥室x2、書房、衛生間; ![]() 第二款:二層農村小別墅設計圖二層農村小別墅設計圖,所用的占地面積都不大,符合農村建房政策,外部造型及色彩搭配之協調更讓人嘆絕。 ![]() 占地面積:13.6m*12.3m,140平方米左右; 建筑層高:二層; 建筑高度:9.9米(含屋頂); 設計功能: 一層戶型:玄關、客廳、餐廳、廚房、衛生間、臥室x2、衛生間,戶外平臺; 二層戶型:客廳、臥室x4、露臺、衛生間; ![]() ![]() 第三款:客廳中空三層復式別墅房屋設計圖本方案為客廳中空三層復式別墅房屋設計圖,落地大玻璃,屋頂帶大露臺,還有個小涼亭,含外觀效果圖,外觀時尚、新穎。 ![]() 占地面積:11.00m*13.2m,145平方米左右; 建筑層高:三層; 建筑高度:12.06米(含屋頂); 設計功能: 一 層:客廳、廚房、餐廳、臥室、衛生間、儲藏間; 二 層:休閑廳、臥室x3、衛生間、陽臺; 三 層:臥室x2、衛生間、涼亭、露臺; ![]() ![]() ![]() 以上就是農村145平方房子設計圖片,這幾套別墅的設計圖,你最喜歡哪一套?
圖紙之家-專注農村別墅/自建房設計18年,集合國內200余位經驗豐富的設計師,被評為口碑最好的農村建筑設計公司! |

南方新農村三層樓房設計圖紙,帶房屋效果圖
占地:110平方米
150平方米的新農村自建三層小別墅設計施工圖紙及效果圖
占地:150平方米
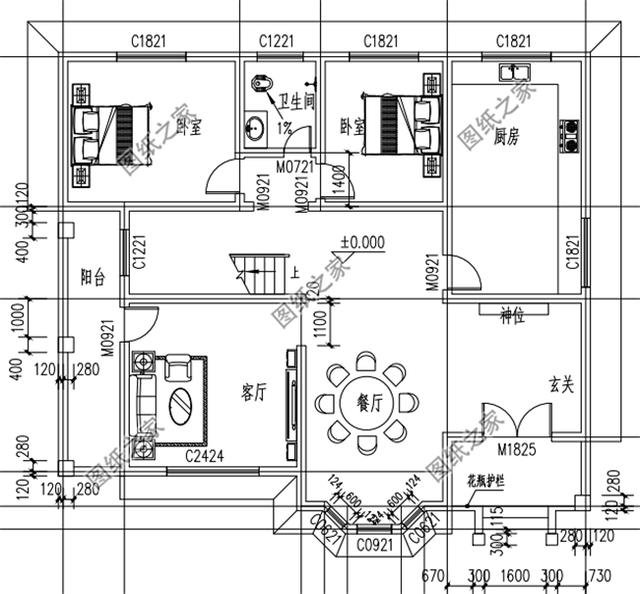
新農村自建二層小樓圖,時尚大方,外型精美,室內布局也很贊
占地:137平方米
一層農村自建房設計圖,造型美觀大氣,占地150平
占地:153.415平方米
普通農村二層房子設計圖 ,復式結構,帶車庫,占地160平米左右
占地:160平方米
115平方米農村三層別墅設計圖,預算30萬左右
占地:115平方米
簡簡單單的二層樓房的設計圖,24萬就能搞定
占地:120平方米
蓋別墅圖紙新農村簡歐二層房屋設計圖,12米×12米左右
占地:128平方米左右
簡約大氣四開間二層自建房設計圖,16x10米,經典耐看高顏值
占地:160平方米
一層農村自建房別墅設計方案,左右對稱布局好
占地:154平方米
農村18萬元二層小樓圖紙,漂亮實用的農村二層樓房設計圖
占地:140平方米
經典三層雙拼房屋設計圖,帶效果圖,戶型好,單戶面積120
占地:240平方米
簡單現代平屋頂兩層四間自建樓房設計圖紙施工方案,簡潔又實用
占地:192平方米
2026新款三層小別墅設計圖,占地150平米,帶地下室
占地:150平方米
農村15萬元二層小樓設計圖,15萬農村兩層小別墅圖片
占地:120平方米
簡單的二層樓房圖片及設計方案,自建樓房必看
占地:140平方米
私人經濟小別墅設計圖,農村自建小洋樓100平左右戶型
占地:104平方米
鄉村高檔四層豪華別墅自建房設計圖,一層不帶餐廳廚房戶型
占地:147平方米
二層門面房自建小樓設計圖紙及效果圖,占地150平
占地:151.83平方米
新農村自建三層樓房設計圖紙,外觀簡單大方
占地:137平方米
推薦:10套新農村自建房設計圖,2026年最新設計
閱讀次數:4825737次
100套鄉村別墅圖片大全,2026年最新設計
閱讀次數:2492203次
6款農村蓋一層平房的設計圖,10萬元就能建起來
閱讀次數:1852637次
這11個一層農村自建房別墅火爆了朋友圈!我最喜歡戶型十!你呢
閱讀次數:750268次
農村6萬元建一層小別墅圖,你敢相信嗎
閱讀次數:567686次
農村5萬塊就能自建房,6套普通房子設計圖分享,你沒看錯!
閱讀次數:419410次
8套農村漂亮三間平房圖片,非常適合在農村修建!
閱讀次數:411197次
農村自建房化糞池怎么做?附方案及施工過程
閱讀次數:391783次
農村一層三間平房設計圖,告別土氣養老房,讓人忍不住點贊
閱讀次數:350581次
新農村二層樓房圖片造價12萬,挑一套回家建房吧!
閱讀次數:349126次
