
|
都說家里有倆兄弟的不好分家,容易吵架,那是因為沒有蓋對房子,像這樣蓋個雙拼別墅,倆兄弟住在一塊,但是又有各自的空間,怎么會吵架呢?而且雙拼別墅蓋起來還經濟實惠,看看小編推薦的這三款復式雙拼別墅設計圖,光是看外觀,就大氣的讓人羨慕,更別說室內了,更是合理。
款式一:農村三層雙拼別墅設計圖,占地300平方米左右
圖紙介紹:這款三層雙拼別墅外觀看上去高端氣派,而且雙拼別墅可以節省建房成本,戶型對稱設計。獨門獨戶,隱私性很強了,公共長廊。前后都設有外出門,出行方便。 占地面積:21m*15.8m,301平方米左右,單戶150平左右; 建筑層高:三層; 建筑高度:13.96米(含屋頂); 設計功能: 一層:堂屋、客廳、餐廳、廚房、父母房、衛生間; 二層:客廳上空、起居室、臥室x3、衛生間、共用陽臺; 三層:活動室、臥室x3、書房、衛生間、露臺; ![]() ![]() ![]() ![]() 款式二:農村三層雙拼別墅設計圖,歐式風格,外觀大氣
圖紙介紹:本戶型占地250平方米,單戶125平米左右,經典的歐式風格,外觀大氣,室內布局合理,適合農村建造。 占地面積:22.2m*13.1m,250平方米左右,單戶125平左右; 建筑層高:三層; 建筑高度:12.2米(含屋頂); 設計功能: 一層:中堂、客廳、餐廳、廚房、臥室、衛生間、儲藏間; 二層:客廳上空、臥室×3、衛生間、共用(活動室、陽臺); 三層:臥室、棋牌室、衛生間、露臺; ![]() ![]() ![]() ![]() 款式三:農村三層雙拼別墅設計圖,帶地下室設計,復式戶型
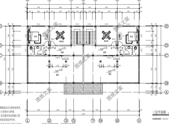
圖紙介紹:本戶型單戶占地130平方米左右,外觀美觀大氣,復式戶型,對稱的設計給人整潔大方的感覺,有多陽臺及多露臺設計,出式門檐和陽臺的設計不僅增加了利用空間而且使房子凹凸有致,看起來大氣又舒適。 占地面積:23m*13.1m,261.6平方米左右,單戶130.8平左右; 建筑層高:三層; 建筑高度:13.111米(含屋頂); 設計功能: 地下室戶型:休息廳、采光井、影音室; 一層:大廳、客廳、臥室(帶衛生間)、廚房、餐廳、衛生間; 二層:客廳上空、起居室、娛樂室、臥室(帶衛生間)、臥室、衛生間、陽臺; 三層:活動室、書房、臥室(帶衣帽間、衛生間、梳妝臺)、陽臺、露臺; ![]() ![]() ![]() ![]() ![]() 如果你家里也有倆兄弟,趕快參考參考這三款別墅吧。
圖紙之家-專注農村別墅/自建房設計18年,集合國內200余位經驗豐富的設計師,被評為口碑最好的農村建筑設計公司! |

120平方兩層房子設計圖及圖片,外觀大方好看,內部結構合理
占地:120平方米
L字型自建房屋設計圖,一層別墅類型,外觀效果圖漂亮
占地:188.62平方米
實用三層新農村住宅設計圖,鄉村別墅設計圖(含外觀效果圖)
占地:102.34平方米
165平方米農村帶陽光房的二層小別墅設計圖紙帶外觀圖18.16米*9.
占地:166平方米
110平房子設計圖,經典的農村自建房屋設計圖
占地:110平方米
造價15萬經濟美觀一層農村別墅設計圖,占地150平米
占地:多戶型可選
省錢美觀一層自建房子設計圖,父母養老住很適合
占地:117平方米
復式200平米三層樓房設計圖紙,大露臺還有健身房和書房
占地:200平方米
兄弟合建中式一層四合院設計圖,古樸雅致代代相傳,永不過時
占地:468.03平方米
160平方米經典鄉村二層房屋設計圖紙
占地:160平方米
別致美觀的簡歐二層別墅房屋設計圖,含外觀效果圖
占地:145平方米
新農村兄弟合建三層雙拼房屋設計方案圖,開間18米有全套圖紙
占地:237.21平方米
爆款農村兄弟雙拼自建房設計圖,占地不大舒適宜居
占地:147.2平方米
150平米左右歐式三層鄉村別墅設計圖,客廳中空
占地:150平方米
不帶廚房的一層別墅設計圖,三臥二廳超巴適,室外獨立廚房
占地:120平方米
頂配三拼三層別墅設計,獨立入戶+共享庭院,兄弟三家共享奢華
占地:367.44平方米
帶堂屋設計一層三合院設計圖,白墻黛瓦古韻悠悠,比高層舒服接
占地:179.37平方米
農村一層中式三合院戶型設計圖,造型古香古色
占地:215平方米左右
農村五間房子設計圖,大戶型別墅設計圖推薦
占地:240平方米
簡單時尚二層住宅設計圖紙,簡單的設計,不平凡的視覺感受
占地:110平方米
推薦:10套新農村自建房設計圖,2026年最新設計
閱讀次數:4825737次
100套鄉村別墅圖片大全,2026年最新設計
閱讀次數:2492203次
6款農村蓋一層平房的設計圖,10萬元就能建起來
閱讀次數:1852637次
這11個一層農村自建房別墅火爆了朋友圈!我最喜歡戶型十!你呢
閱讀次數:750268次
農村6萬元建一層小別墅圖,你敢相信嗎
閱讀次數:567686次
農村5萬塊就能自建房,6套普通房子設計圖分享,你沒看錯!
閱讀次數:419410次
8套農村漂亮三間平房圖片,非常適合在農村修建!
閱讀次數:411197次
農村自建房化糞池怎么做?附方案及施工過程
閱讀次數:391783次
農村一層三間平房設計圖,告別土氣養老房,讓人忍不住點贊
閱讀次數:350581次
新農村二層樓房圖片造價12萬,挑一套回家建房吧!
閱讀次數:349126次
