
|
現代人生活水平越來越高,但還是有很多人選擇回老家蓋別墅,而且自己蓋房子,不像在城里那樣有范圍限制,在農村可以按著自己的喜好來,喜歡什么戶型就建什么戶型。相信很多人喜歡二層半的別墅吧,今天介紹的這三款二層半建房圖紙設計圖,簡單好看,造價經濟,即使經濟有限的家庭也能夠蓋的起。
款式一:農村二層半自建樓房設計圖,戶型簡單實用
![]() ![]() ![]() ![]() ![]() 圖紙介紹:這款別墅占地120平方米左右,共有三層。一樓的老人房帶有獨立的衛生間,二層活動室的設計可以使業主在休息的時候也能得到放松,三樓大露臺設計可以滿足業主家庭的晾曬需求。 占地面積:10.76m*12.26m,121平方米左右; 建筑層高:二層; 建筑高度:12.647米(含屋頂); 設計功能: 一層戶型:玄關、客廳、機房、廚房、餐廳、臥室(帶衛生間)、臥室、衛生間; 二層戶型:茶室、活動室、臥室(帶衛生間)、臥室x3、衛生間、陽臺; 三層戶型:活動室、臥室x3、衛生間、露臺;
款式二:農村兩層半別墅設計圖,客廳挑空設計
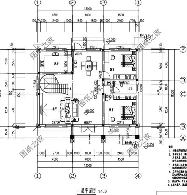
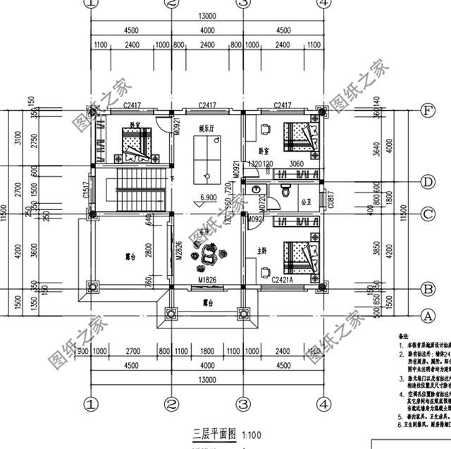
![]() ![]() ![]() ![]() 圖紙介紹:這款兩層半別墅客廳挑空,帶大露臺設計。外觀大氣時尚,室內布局通透大氣,多個臥室滿足一家人居住,三樓還設計了一個露臺供大家使用。 占地面積:13.0m*11.5m,一層占地136平方米左右; 建筑層高:三層; 建筑高度:12.78米(含屋頂); 設計功能: 一 層:客廳、廚房、餐廳、臥室×2、衛生間; 二 層:客廳上空、客廳、臥室(帶書房,衛生間)、臥室、娛樂廳、陽臺; 三 層:茶室、娛樂廳、臥室x3、衛生間、大露臺;
款式三:農村新中式二層半別墅設計圖,占地144平方米左右
![]() ![]() ![]() ![]() 圖紙介紹:本戶型占地144平米左右,外觀造型簡單,建造成本也不高,適合自己建,漂亮又耐看;室內功能設計非常齊全,布局大方合理,住著非常舒適,兩層總臥室數量6個,足夠滿足日常生活需求。 占地面積:12m*13.8m,144平方米左右; 建筑層高:二層; 建筑高度:10.5米(含屋頂); 設計功能: 一層戶型:客廳、餐廳、廚房、臥室、臥室(帶衛生間)、衛生間; 二層戶型:起居室、小客廳、臥室x3、臥室(帶衛生間)、衛生間、露臺、陽臺; 悶頂戶型:儲藏間x2、活動室、露臺; 以上就是小編推薦的農村二層半別墅戶型圖以及效果圖,有喜歡的分享給自家人看看。
圖紙之家-專注農村別墅/自建房設計18年,集合國內200余位經驗豐富的設計師,被評為口碑最好的農村建筑設計公司! |

130平米左右三層農村小別墅,經典永不過時三層小洋樓
占地:130平方米
帶地下室的三層歐式別墅戶型設計圖,帶地下室農村自建房
占地:139.256平方米
新農村兩層帶露臺自建房設計圖,造價30萬內
占地:170平方米
新農村二層帶露臺經濟型小別墅設計圖紙,含外觀效果圖
占地:120平方米
占地200平農村二層自建房設計方案戶型,陽面臥室多
占地:208平方米
農村一層雙拼別墅設計方案,豐富的室內空間配置,滿足您的生活
占地:358.46平方米
135平三層農村樓房設計圖及效果圖,造價20萬左右
占地:135平方米
小占地二層徽派別墅設計圖,白墻黛瓦韻味十足,太氣派了
占地:89.6平方米
中國最美的四合院別墅設計圖方案,復式挑空客廳戶型
占地:343.57平方米
最新款二層半別墅圖片,占地115平米左右,帶地下室,帶露臺
占地:115平方米
35萬內三層自建別墅設計圖,外觀美觀,戶型舒適
占地:135平方米
二層現代風格雙拼別墅設計圖,平屋頂,帶地下室設計
占地:192.47平方米
簡歐風格二層別墅設計圖,經典不過時大氣時尚,漂亮的不像話!
占地:205.68平方米
農村兩層新中式仿古四合院別墅戶型圖,小型占地不到200平
占地:193平方米
18×15米新中式高檔農村三層別墅設計圖,低調奢華又實用
占地:195.91平方米
農村三間四層樓房設計圖,農村輕奢型四層別墅
占地:160平方米
90平小戶型四層房屋設計圖,農村自建別墅推薦
占地:90平方米
農村25萬元二層小樓圖,經典大氣建成20年不過時
占地:150平方米
110平方米新農村三層別墅設計圖,含外觀效果圖
占地:109平方米
小型中式一層三合院別墅設計圖,小宅基地照樣建合院
占地:119.73平方米
推薦:10套新農村自建房設計圖,2026年最新設計
閱讀次數:4825737次
100套鄉村別墅圖片大全,2026年最新設計
閱讀次數:2492203次
6款農村蓋一層平房的設計圖,10萬元就能建起來
閱讀次數:1852637次
這11個一層農村自建房別墅火爆了朋友圈!我最喜歡戶型十!你呢
閱讀次數:750268次
農村6萬元建一層小別墅圖,你敢相信嗎
閱讀次數:567686次
農村5萬塊就能自建房,6套普通房子設計圖分享,你沒看錯!
閱讀次數:419410次
8套農村漂亮三間平房圖片,非常適合在農村修建!
閱讀次數:411197次
農村自建房化糞池怎么做?附方案及施工過程
閱讀次數:391783次
農村一層三間平房設計圖,告別土氣養老房,讓人忍不住點贊
閱讀次數:350581次
新農村二層樓房圖片造價12萬,挑一套回家建房吧!
閱讀次數:349126次
