
|
其實每個人跟每個人的想法都不同,對于房子的款式喜愛程度也不同,大多數人可能都喜歡坡屋頂別墅,但是喜歡平屋頂別墅的也不少。畢竟平屋頂的設計相對來說造價低,而且施工起來也比較簡單。今天小編給大家推薦三款三層平屋頂樓房設計圖,如果有喜歡平頂別墅的朋友們可以參考。
第一款:農村三層平屋頂別墅設計圖,面寬8米,小戶型別墅
![]() 圖紙介紹:本戶型占地115平米左右,面寬僅8米,非常精致小巧的一款別墅戶型,雖然占地不大,但是卻有大進深。平屋頂設計很是特別,戶型方正,外觀設計簡單大方,棱角分明,采用黃色瓷磚做外墻,溫馨耐看且耐臟。 占地面積:7.9m*16.22m,115平方米左右; 建筑層高:三層; 建筑高度:12米(含屋頂); 設計功能: 一層戶型:客廳、棋牌室、廚房、餐廳、臥室、衛生間; 二層戶型:客廳上空、客廳、臥室x3、衛生間、陽臺; 三層戶型:客廳、臥室x3、衛生間、露臺; ![]() ![]() ![]() 第二款:農村自建三層小洋樓設計圖,帶屋頂花園設計
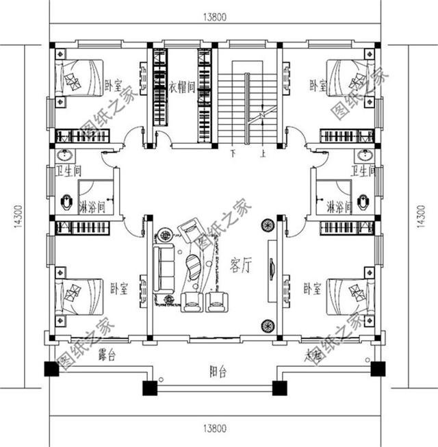
![]() 圖紙介紹:這款三層別墅占地170平方米左右,平屋頂設計,簡歐風格,屋頂設計美觀,層次分明,整體一個大露臺,一邊可作為晾曬區,另一邊可設為空中花園,中間還有涼亭,非常適合農村家庭建造。 占地面積:13.8m*14.3m,170平方米左右; 建筑層高:三層; 建筑高度:11.7米(含屋頂); 設計功能: 一層戶型:門廳、走廊、客廳、廚房、餐廳、儲藏間、臥室x2、衛生間; 二層戶型:客廳、臥室x4、衣帽間、衛生間x2、陽臺、露臺; 三層戶型:臥室x2、衛生間、涼亭、露臺; ![]() ![]() ![]() 第三款:農村三層別墅設計圖,帶復式旋轉樓梯設計
![]() 圖紙介紹:這款三層別墅占地131平米左右,帶復式客廳旋轉樓梯設計,書房、棋牌室應有盡有,外觀采用的歐式風格,很符合現代人的審美。一層有兩間臥室,南向主臥可用作老人居住,帶內置衛生間,給老人日常生活起居提供便捷。二三層均設置3間臥室,二層中間是一個客廳,適合自家人休閑娛樂;三層則是設置小書房,可用于主人日常辦公或者孩子讀書寫作業的地方。西南角是一個開放式露臺適合用于農村晾曬糧食干菜。 占地面積:10.02m*12.76m,131.08平方米左右; 建筑層高:三層; 建筑高度:10.42米(含屋頂); 設計功能: 一層戶型:客廳、廚房、餐廳、臥室(衛生間)x2、衛生間; 二層戶型:客廳上空、小客廳、臥室(衛生間)x2、臥室、衛生間; 三層戶型:棋牌室、書房、臥室(衛生間)x2、臥室、露臺; ![]() ![]() ![]() 這三款別墅造價低,施工簡單,喜歡就不要錯過了。
圖紙之家-專注農村別墅/自建房設計18年,集合國內200余位經驗豐富的設計師,被評為口碑最好的農村建筑設計公司! |

帶獨立廚房的二層自建房設計圖,大戶型方案
占地:233平方米
170平方米歐式三層雙拼別墅建筑設計圖紙及效果圖片
占地:172平方米
大戶型高端三層別墅設計圖紙,外觀效果圖+CAD建筑圖
占地:227平方米
100平客廳挑高三層樓房設計圖,復式結構
占地:100平方米
鄉村二層簡歐小戶型別墅圖設計,占地90平方米左右
占地:92.12平方米
經典三層小別墅設計圖紙(效果圖+全套cad建筑圖),新農村自建
占地:120平方米
新農村兄弟合建三層雙拼房屋設計方案圖,開間18米有全套圖紙
占地:237.21平方米
二層精美偏法式風格別墅設計圖,不但顏值高,品質還高
占地:154.17平方米
面寬8米農村二間二層小別墅設計方案,施工簡單造價低
占地:73.77平方米
平屋頂四間一層農村自建房設計圖紙,經濟時尚
占地:144平方米
鄉下復式三層房子設計圖,帶堂屋,客廳中空,輕奢風格
占地:190平方米
農村200平一層別墅房屋設計圖,外觀圖片時尚、漂亮
占地:200平方米
私人經濟小別墅設計圖,農村自建小洋樓100平左右戶型
占地:104平方米
帶車庫,帶露臺的三層復式樓房設計圖,新農村房屋方案推薦
占地:140平方米
私人二層農村小樓設計圖,外觀靚麗,富有現代氣息
占地:160平方米
簡歐風格三層別墅設計圖,外觀看起來很高端、上檔次
占地:139平方米
120平米三層30萬別墅圖片大全及全套施工圖,外觀簡潔大方
占地:120平方米
130平方米復式三層別墅房屋設計圖,含外觀效果圖
占地:130平方米
農村平屋頂三層現代風別墅戶型圖,簡約實用經濟顏值高
占地:111.9平方米
二層別墅設計圖紙及效果圖,占地200平米,外觀精致優雅,小有情
占地:200平方米
推薦:10套新農村自建房設計圖,2026年最新設計
閱讀次數:4825737次
100套鄉村別墅圖片大全,2026年最新設計
閱讀次數:2492203次
6款農村蓋一層平房的設計圖,10萬元就能建起來
閱讀次數:1852637次
這11個一層農村自建房別墅火爆了朋友圈!我最喜歡戶型十!你呢
閱讀次數:750268次
農村6萬元建一層小別墅圖,你敢相信嗎
閱讀次數:567686次
農村5萬塊就能自建房,6套普通房子設計圖分享,你沒看錯!
閱讀次數:419410次
8套農村漂亮三間平房圖片,非常適合在農村修建!
閱讀次數:411197次
農村自建房化糞池怎么做?附方案及施工過程
閱讀次數:391783次
農村一層三間平房設計圖,告別土氣養老房,讓人忍不住點贊
閱讀次數:350581次
新農村二層樓房圖片造價12萬,挑一套回家建房吧!
閱讀次數:349126次
