
|
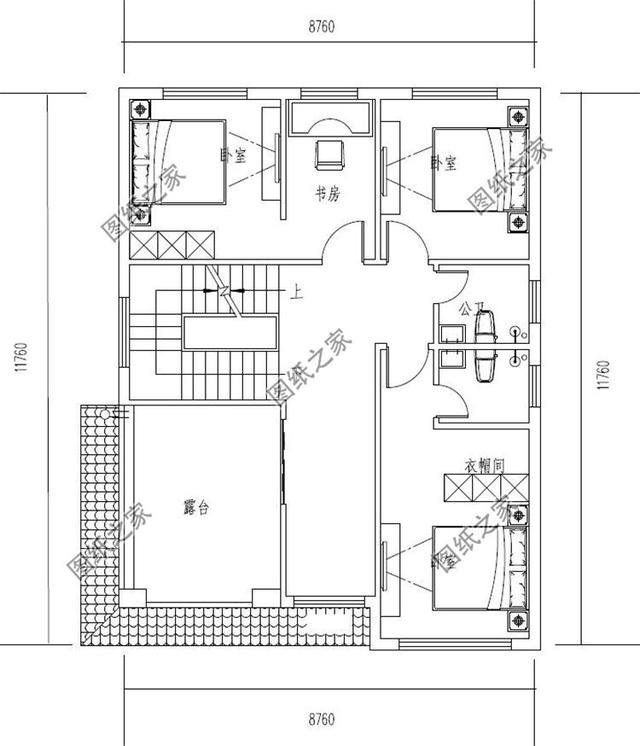
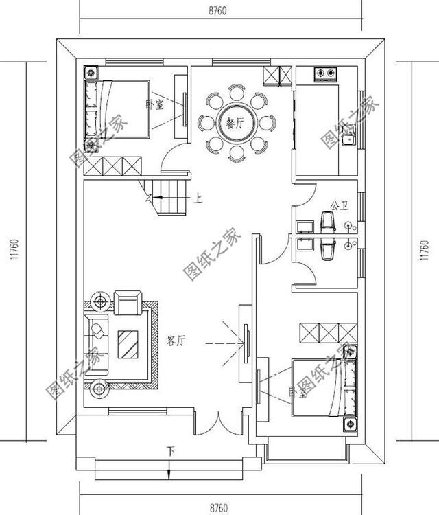
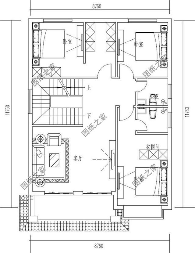
房子就是歸屬,好多人在城里打工,但是都不會忘記回到老家蓋一棟房子,就是為了能夠讓一家人住的體面一點,得到老了也可以住的舒適一點。所謂手里有錢,老家有地,人生算是圓滿一半了,再建一棟房,那就真的沒什么煩惱了。今天小編推薦三層農村三層樓房戶型圖,落地窗加露臺,漂亮又大氣。 第一款:農村三層別墅設計圖,帶地下儲藏室,客廳挑空![]() ![]() ![]() ![]() ![]() 圖紙介紹:這款三層別墅占地108平米左右,帶地下儲藏室,挑空客廳。外觀簡潔大氣,室內布局合理,功能齊全,二三樓都帶有露臺。 占地面積:10.3m*10.5m,一層占地108平方米左右; 建筑層高:三層; 建筑高度:12.33米(含屋頂); 設計功能: 地下室:儲藏間; 一 層:客廳、廚房、餐廳、臥室(帶衛生間)、衛生間; 二 層:客廳上空、起居室、臥室(帶衛生間)、臥室、衛生間、露臺; 三 層:臥室(帶衛生間)、臥室、繪畫室、露臺、衛生間; 第二款:農村三層自建樓房設計圖,帶地下室設計![]() ![]() ![]() ![]() ![]() 圖紙介紹:本戶型復式挑空客廳,帶超豪華地下室設計,簡歐風格非常的高端大氣,一層中空客廳,旋轉樓梯的設計也是非常的氣派。二層設置了3間臥室,設置緊湊,方正合理,開窗采光良好;三層布局與二層一樣,多了一個大露臺,很好的滿足日常晾曬的需求。 占地面積:16m*13.5m,192平方米左右; 建筑層高:三層; 建筑高度:13.444米(含屋頂); 設計功能: 地下室戶型:健身房、品酒室、棋牌室、儲物間、臺球室、KTV、衛生間; 一層戶型:玄關、客廳、茶室+書房、廚房、餐廳、臥室、衛生間; 二層戶型:客廳上空、起居室、臥室(帶衣帽間、衛生間)、臥室(帶衛生間)、臥室、衛生間、陽臺x2; 三層戶型:臥室(帶衣帽間、衛生間)、臥室(帶衛生間)x2、陽臺、露臺; 第三款:新中式農村三層樓房設計圖,外觀大氣,小開間設計![]() ![]() ![]() ![]() 圖紙介紹:這款新中式三層小別墅小開間設計,外觀簡潔大方,給人的感覺很清爽,戶型方正,沒有過多的棱角,也沒有花哨的裝飾,是一棟難得的高端別墅。 占地面積:8.76m*11.76m,103.176平方米左右; 建筑層高:三層; 建筑高度:13.167米(含屋頂); 設計功能: 一層戶型:客廳、餐廳、衛生間、臥室(帶衛生間)、臥室; 二層戶型:客廳、衣帽間、臥室x2、臥室(帶衛生間、衣帽間)、衛生間、陽臺; 三層戶型:臥室(帶衛生間、衣帽間)、臥室x2、書房、露臺; 不知道這三款別墅有大家喜歡的嗎?
圖紙之家-專注農村別墅/自建房設計18年,集合國內200余位經驗豐富的設計師,被評為口碑最好的農村建筑設計公司! |

新中式農村自建二層別墅設計圖,占地160平米左右,客廳中空
占地:160平方米
新農村140平米樓房圖四層獨棟別墅設計圖,簡歐外觀風格設計
占地:141平方米
最新140平米三層自建房屋設計圖紙,本戶型帶小院
占地:140平米
120平米三層30萬別墅圖片大全及全套施工圖,外觀簡潔大方
占地:120平方米
130平米左右三層農村小別墅,經典永不過時三層小洋樓
占地:130平方米
田園風格別墅設計圖紙及效果圖,三層鄉村小別墅設計方案
占地:166.4平方米
農村小別墅一層設計圖紙,全套施工圖兩款戶型可選
占地:多種戶型可選
新農村三層自建樓房設計圖,帶大露臺,外觀大氣
占地:136平方米
新中式風格農村自建房二層設計圖,15.5米乘12米
占地:186平方米
小戶型三層別墅設計圖,戶型經典,外觀精致、美觀
占地:95平方米
高端三層獨棟歐式別墅效果圖,帶大衛生間,CAD全套施工設計圖
占地:158平方米
50萬左右農村三層別墅設計圖,歐式的外觀大氣沉穩
占地:150平方米
100平方米實用二層半小別墅設計圖紙(帶閣樓層),住著安逸
占地:100平方米左右
占地70平米一層小戶型別墅設計圖,功能齊全造價低,耐看實用
占地:70.19平方米
140平方米歐式三層別墅建筑設計圖紙,復式結構
占地:140平方米
歐式三層豪宅樓設計圖紙及外觀效果圖,占地180平左右
占地:177.82平方米
200平方米別墅設計圖紙(含效果圖),農村別墅方案精選
占地:200.26平方米
好看又簡單的二層樓房設計圖紙,戶型還實用
占地:150平方米
農村一層7字型平房別墅設計圖,“L”自行戶型,外觀簡約低調
占地:213.39平方米
占地90平米四層超現代風別墅設計圖,享受高品質生活
占地:3.76平方米
推薦:10套新農村自建房設計圖,2026年最新設計
閱讀次數:4825737次
100套鄉村別墅圖片大全,2026年最新設計
閱讀次數:2492203次
6款農村蓋一層平房的設計圖,10萬元就能建起來
閱讀次數:1852637次
這11個一層農村自建房別墅火爆了朋友圈!我最喜歡戶型十!你呢
閱讀次數:750268次
農村6萬元建一層小別墅圖,你敢相信嗎
閱讀次數:567686次
農村5萬塊就能自建房,6套普通房子設計圖分享,你沒看錯!
閱讀次數:419410次
8套農村漂亮三間平房圖片,非常適合在農村修建!
閱讀次數:411197次
農村自建房化糞池怎么做?附方案及施工過程
閱讀次數:391783次
農村一層三間平房設計圖,告別土氣養老房,讓人忍不住點贊
閱讀次數:350581次
新農村二層樓房圖片造價12萬,挑一套回家建房吧!
閱讀次數:349126次
