
|
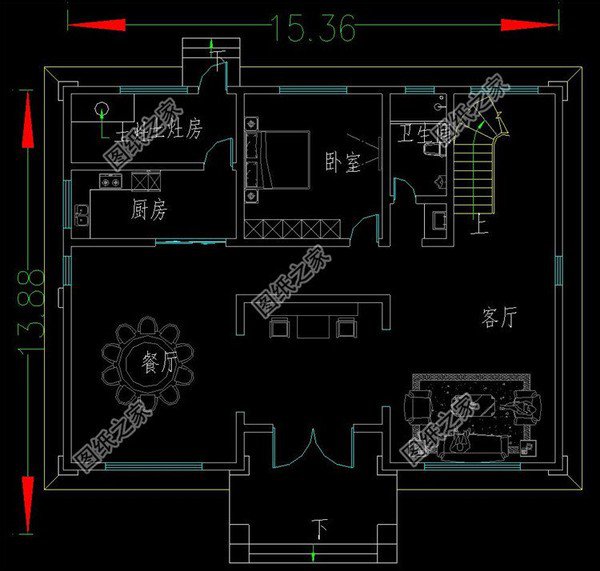
看如今的發展趨勢,城市里的房價只增不減,從老家來這里打拼的小伙伴,想在城里定居買房絕非容易事情。不過把攢下的錢回村子里蓋棟別墅也不錯。大方氣派,家人住在一塊兒美滿幸福,讓父母的養老環境更安逸舒適,今天小編分享三款170平到180平左右的三層別墅設計圖以及戶型圖,布局大方實用,看過的都夸好。 第一款:180平高端歐式三層別墅效果圖以及平面圖,大戶型復式客廳![]() 農村豪宅的頂級配置!簡潔大氣的戶型,采用了大量歐式設計元素,讓外觀顯得非常高雅!藍色斜屋頂,搭配米黃色真石漆以及少許的棕色面磚,色彩搭配合理。大大的落地窗讓整棟建筑更加迷人,入戶門廳采用方柱加雙柱,整個立面氣勢十足。 占地面積:15.36m*13.88m,182.016平方米左右; 建筑層高:三層; 建筑高度:14.208米(含屋頂); 設計功能: 一層戶型:堂屋、客廳、餐廳、廚房、土灶房、臥室、衛生間; 二層戶型:客廳、茶藝區、臥室(帶衛生間)、臥室x2、衛生間、陽臺; 三層戶型:客廳挑空、臥室x2、臥室(帶衛生間)、衛生間、露臺 ![]() ![]() ![]() 第二款:三層新中式別墅設計圖以及戶型圖,造價40萬左右![]() 大氣農村三層自建房戶型,沉穩霸氣,大氣典雅,在老家蓋棟特別給父母長臉!建筑整體非常的有層次感,造型設計也十分豐富,凹凸有致。主體采用米白色真石漆裝飾,棕色點綴,深淺兩色的碰撞,給人極大的視覺沖擊感。入戶形式為傳統的門廳形式,向外伸延的入戶平臺給整個建筑提升墩重感,讓建筑看起來比較穩重。 占地面積:12.82m*13.82m,171.656平方米左右; 建筑層高:三層; 建筑高度:13.202米(含屋頂); 設計功能: 一層戶型:玄關、客廳、廚房、餐廳、儲藏室、娛樂室(帶衛生間)、臥室、衛生間; 二層戶型:客廳上空、客廳、臥室(帶衛生間)、臥室x3、衛生間、露臺; 三層戶型:活動室、臥室(衛生間)、臥室x2、衛生間、陽臺、露臺 ![]() ![]() ![]() 第三款:兩層半別墅設計圖以及戶型圖,自建推薦![]() 對于年輕人來說,現代風格的小別墅越來越受到歡迎,它時尚漂亮,通透明亮,大大的落地窗,視野開闊,能夠完全的看到外面的景色,與大自然融為一體,也具有現代科技感,讓人心胸寬廣,心情愉悅,引人注目。 占地面積:15.5m*12.9m,179平方米左右; 建筑層高:二層; 建筑高度:11.149米(含屋頂); 設計功能: 一層戶型:客廳、書房(可自由安排)、廚房、餐廳、臥室(帶衛生間)、衛生間、儲藏室; 二層戶型:臥室x4(帶衛生間)、陽臺; 閣樓戶型:套間臥室x2、衛生間、衣帽間x2(可自由安排) ![]() ![]() ![]() 今天小編推薦的三款170平到180平左右的三層別墅設計圖以及戶型圖就到這里了,喜歡的分享給家人看看吧!
圖紙之家-專注農村別墅/自建房設計18年,集合國內200余位經驗豐富的設計師,被評為口碑最好的農村建筑設計公司! |

農村帶地下室二層半自建房屋設計圖,樓中樓設計,歐式風格
占地:140平方米
簡單的二層樓房圖片及設計方案,自建樓房必看
占地:140平方米
適合農村建造的二層房屋設計圖紙及效果圖,帶悶頂層,占地15
占地:150平方米
120平米二層別墅樓設計圖,簡約省錢也能建的漂亮
占地:121.74平方米
210平方米新農村三層雙拼全套別墅設計圖紙帶效果圖
占地:207.25平方米
頂配三拼三層別墅設計,獨立入戶+共享庭院,兄弟三家共享奢華
占地:367.44平方米
140平方米新農村四層房屋設計圖紙,農村自建推薦
占地:140平方米
現代風格三拼別墅設計圖紙,三兄弟回村自建房戶型
占地:324平方米
預算10萬左右新農村自建房屋設計圖紙,帶效果圖
占地:82平方米
110平方米新農村三層房屋設計圖紙,含效果圖,帶車庫
占地:113平方米
復式大客廳帶旋轉樓梯二層別墅設計圖,大廳很闊氣
占地:193平方米左右
三層新農村住宅設計圖及效果圖,三層樓房設計圖展示
占地:140平方米
私人二層農村小樓設計圖,外觀靚麗,富有現代氣息
占地:160平方米
農村四層雙拼別墅房屋設計圖,造型現代、大氣
占地:220平方米
兄弟雙拼四間三層別墅設計圖,農村自建推薦戶型方案
占地:260平方米
二層復式雙拼別墅設計圖(客廳中空),含外觀效果圖
占地:195平方米
簡約現代的二層別墅自建房設計圖,13米乘9米
占地:124平方米
110平方米新農村三層別墅設計圖,含外觀效果圖
占地:109平方米
12x10米農村建房圖紙,客廳中空,讓你后半輩子在稱贊聲中度過
占地:120平方米
歐式新農村三層復式樓自建房別墅圖紙,旋轉樓梯設計
占地:128平方米
推薦:10套新農村自建房設計圖,2026年最新設計
閱讀次數:4825737次
100套鄉村別墅圖片大全,2026年最新設計
閱讀次數:2492203次
6款農村蓋一層平房的設計圖,10萬元就能建起來
閱讀次數:1852637次
這11個一層農村自建房別墅火爆了朋友圈!我最喜歡戶型十!你呢
閱讀次數:750268次
農村6萬元建一層小別墅圖,你敢相信嗎
閱讀次數:567686次
農村5萬塊就能自建房,6套普通房子設計圖分享,你沒看錯!
閱讀次數:419410次
8套農村漂亮三間平房圖片,非常適合在農村修建!
閱讀次數:411197次
農村自建房化糞池怎么做?附方案及施工過程
閱讀次數:391783次
農村一層三間平房設計圖,告別土氣養老房,讓人忍不住點贊
閱讀次數:350581次
新農村二層樓房圖片造價12萬,挑一套回家建房吧!
閱讀次數:349126次
