
|
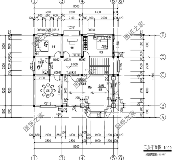
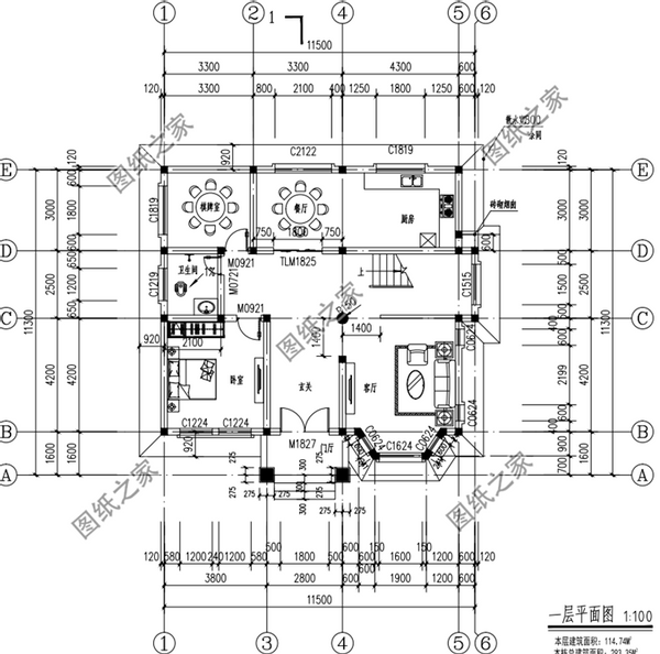
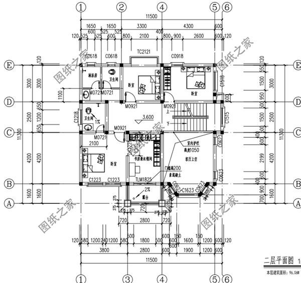
要說農村建房子,還是二層半的最實用,畢竟頂層的露臺方便晾曬,比較適合農村,而且旁邊呢房子還可以用來做儲物間,儲存糧食、干貨等都非常方便,也不易返潮。而且現在地基都受到限制,房間建 戶型一:農村二層半樓房設計圖,占地121平米,戶型簡單實用![]() 圖紙介紹:本戶型占地121平米,帶大露臺設計,外觀簡單,沒有花里胡哨的設計,布局非常實用,適合農村的別墅。別墅為歐式風格,設計 占地面積:10.76m*12.26m,121平方米左右; 建筑層高:二層; 建筑高度:12.647米(含屋頂); 設計功能: 一層戶型:玄關、客廳、機房、廚房、餐廳、臥室(帶衛(wèi)生間)、臥室、衛(wèi)生間; 二層戶型:茶室、活動室、臥室(帶衛(wèi)生間)、臥室x3、衛(wèi)生間、陽臺; 三層戶型:活動室、臥室x3、衛(wèi)生間、露臺; ![]() ![]() ![]() ![]() 戶型二:農村二層半別墅設計圖,占地110平米,造價20來萬![]() 圖紙介紹:這款二層半別墅占地110多平,造價20來萬,雖然占地不大,卻有著華麗麗的豪宅既視感。室內布局也是非常合理,功能齊全,有棋牌室、淋浴房和書房等。 占地面積:11.5m*11.3m,一層占地115平方米左右; 建筑層高:三層; 建筑高度:12.35米(含屋頂); 設計功能: 一 層:玄關、客廳、廚房、餐廳、臥室、棋牌室、衛(wèi)生間; 二 層:客廳上空、臥室(帶書房,衣帽間,衛(wèi)生間)、臥室x2、公衛(wèi)、淋浴房、小露臺; 三 層:臥室x2、書房、茶室、衛(wèi)生間、大露臺; ![]() ![]() ![]() 戶型三:農村二層半樓房設計圖,占地120平米,造價20萬左右![]() 圖紙介紹:這款兩層半別墅占地120平米左右,造價20萬左右,外觀中歐結合,簡單大氣,時尚個性,三樓露臺空間大,可以營造空中花園的氛圍,視覺效果極佳。 占地面積:12.0m*11.5m,一層占地120平方米左右; 建筑層高:三層; 建筑高度:11.9米(含屋頂); 設計功能: 一 層:客廳、廚房、餐廳、臥室、娛樂室、衛(wèi)生間; 二 層:客廳、臥室(帶衛(wèi)生間)、臥室x3、衛(wèi)生間、休閑區(qū)、書房、陽臺; 三 層:臥室(帶衛(wèi)生間)、休閑區(qū)、書房、大露臺、陽臺; ![]() ![]() ![]() 這三樓自建房比較適合農村自建,不知道大家最喜歡哪一款呢?
圖紙之家-專注農村別墅/自建房設計18年,集合國內200余位經驗豐富的設計師,被評為口碑最好的農村建筑設計公司! |

中國最美的四合院別墅設計圖方案,復式挑空客廳戶型
占地:343.57平方米
165平方米農村帶陽光房的二層小別墅設計圖紙帶外觀圖18.16米*9.
占地:166平方米
2026帶車庫三層雙拼別墅房屋設計圖,配色淡雅低調
占地:224平方米
2026二層農村新款別墅圖片及施工圖,新中式風格古典大氣
占地:200平方米
兄弟四間三層雙拼別墅設計圖,造價40萬左右
占地:210平方米
新農村二層小別墅全套設計圖紙(含外觀效果圖)
占地:85.6平方米
高端大氣三層半別墅客廳挑空設計,豪華農村自建房圖
占地:179.52平方米
造型對稱的簡約二層別墅設計圖紙,戶型布局好,13x13米5室2廳
占地:151.94平方米
120平方米農村四層別墅設計圖,含全套施工圖
占地:120平方米
漂亮時尚二層樓房設計圖紙,經濟實用,戶型通透
占地:150平方米
超實用的農村一層別墅設計圖,經濟實惠養(yǎng)老自住都不錯,
占地:128.35平方米
二層歐式農村小別墅設計圖,9.5米乘13米,戶型好到鄰居求圖紙
占地:118.32平方米
三層農村小別墅設計圖,一層帶商鋪,占地110平米,經濟實用
占地:110平方米
漂亮的農村三層小樓房設計圖,簡單大氣,帶車庫
占地:150平方米
兩層半新農村別墅設計圖紙,CAD設計圖+高清效果圖
占地:90平方米
二層復式樓房設計圖,平實接地氣的平面布局
占地:180平方米
鄉(xiāng)下建房一層戶型圖,一層住宅設計圖紙,誰說一層平房不能叫別
占地:200平方米
最美農村一層合院設計圖紙,自建一棟火遍十里八鄉(xiāng)
占地:190平方米左右
農村40萬房子圖片外觀設計效果圖,帶地下室,外觀時尚大氣
占地:110平方米
倆兄弟蓋房子的雙拼設計圖,小宅基地設計方案
占地:151.91平方米
推薦:10套新農村自建房設計圖,2026年最新設計
閱讀次數:4825737次
100套鄉(xiāng)村別墅圖片大全,2026年最新設計
閱讀次數:2492203次
6款農村蓋一層平房的設計圖,10萬元就能建起來
閱讀次數:1852637次
這11個一層農村自建房別墅火爆了朋友圈!我最喜歡戶型十!你呢
閱讀次數:750268次
農村6萬元建一層小別墅圖,你敢相信嗎
閱讀次數:567686次
農村5萬塊就能自建房,6套普通房子設計圖分享,你沒看錯!
閱讀次數:419410次
8套農村漂亮三間平房圖片,非常適合在農村修建!
閱讀次數:411197次
農村自建房化糞池怎么做?附方案及施工過程
閱讀次數:391783次
農村一層三間平房設計圖,告別土氣養(yǎng)老房,讓人忍不住點贊
閱讀次數:350581次
新農村二層樓房圖片造價12萬,挑一套回家建房吧!
閱讀次數:349126次
