
|
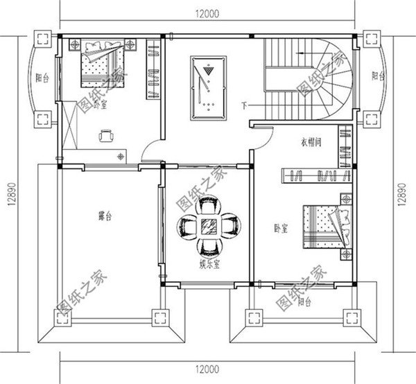
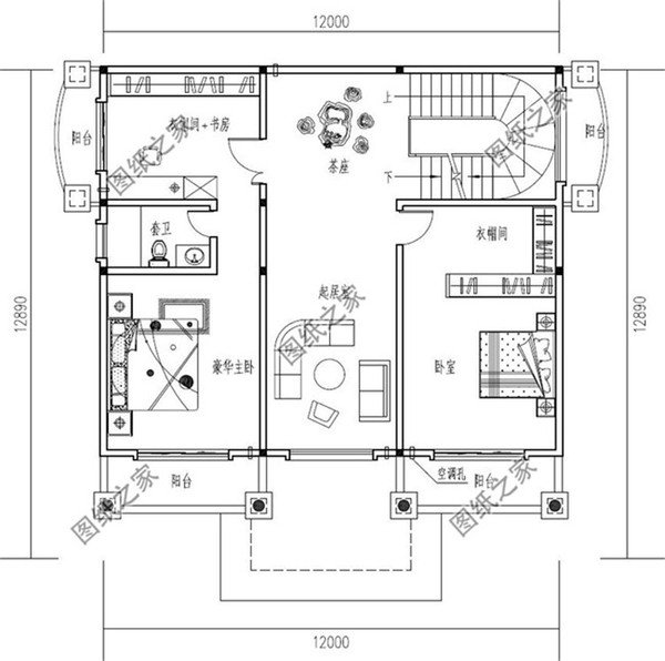
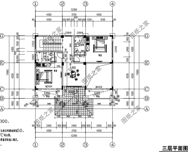
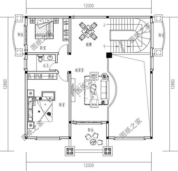
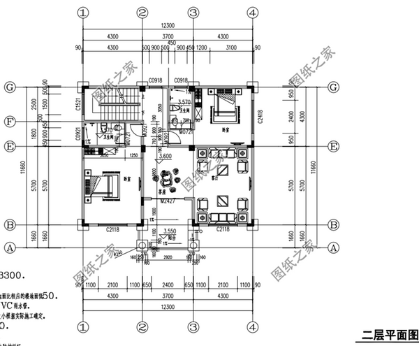
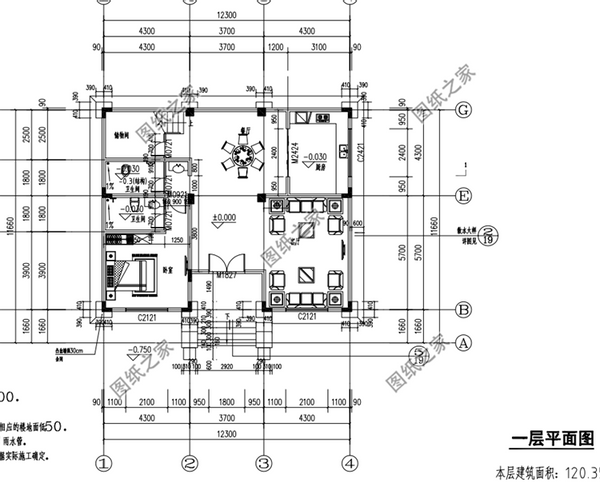
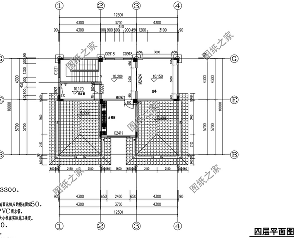
在外面掙了大錢就想回老家安定下來,那么就要建一棟屬于自己的好房子,趁著手里有錢,也當一當村里的大佬,蓋一棟豪華的大房子,走在村里倍有面子。今天推薦三款四層大戶型別墅設計圖,奢華浪漫,隨便選一棟建在村里都漲足了面子。外觀豪華,室內布局合理,功能非常齊全,陽臺露臺都不少,趕快看看吧。 方案一:農村120平米四層別墅設計圖,造價40來萬圖紙介紹:本戶型占地120平方米左右,造價40來萬,外觀大氣,室內布局合理,一層有一室一廳一廚兩衛,設有儲藏間;二層配兩套間一廳,外帶茶座和陽臺設計;三層的布局和二層一樣,四層有洗衣房,衣帽間和涼亭。 占地面積:12.3m*11.7m,120平方米; 建筑層高:四層; 建筑高度:15.3米(含屋頂); 設計功能: 一層戶型: 儲物間,餐廳,廚房,衛生間,臥室(帶衛生間),客廳; 二層戶型: 臥室(帶衛生間)X2,茶座,客廳,陽臺 ; 三層戶型:臥室(帶衛生間)X2,茶座,客廳上空,陽臺X2; 四層戶型:洗衣間,衣帽間,涼亭; ![]() ![]() ![]() ![]() ![]() 方案二:農村四層別墅設計圖,占地170平米,客廳中空圖紙介紹:本戶型占地170平米,客廳中空,室內設計有茶室、書房、娛樂室,功能齊全。一層布局寬敞大氣,廚房中設有后門,符合農村的生活習慣。樓梯設計上也采用了很多農村別墅設計中的慣用手法,從旋轉樓梯完成直角樓梯的切換,洋氣又節省空間。 占地面積:13.50m*16.3m,170平方米左右; 建筑層高:四層; 建筑高度:16.6米(含屋頂); 設計功能: 一層戶型展示:客廳、廚房、餐廳、茶室、臥室、衛生間; 二層戶型展示:客廳上空、客廳、臥室(帶衛生間、衣帽間)、臥室×2、公衛; 三層戶型展示:娛樂室、臥室(帶衛生間、衣帽間)、臥室×3、公衛、陽臺、露臺; 四層戶型展示:棋牌室、書房、涼亭、臥室×2、露臺; ![]() ![]() ![]() ![]() ![]() 方案三:農村四層獨棟別墅設計圖,占地141平米,簡歐風格設計圖紙介紹:這款四層獨棟別墅設計占地141平米,戶型簡單實用,外觀簡歐風格設計,外墻面配色豐富,一二層主要用黃色真石漆,三四層主要用淡黃色真石漆裝飾,門柱采用粉色真石漆,再搭配紅色屋頂,樓層高且造型美,顯得非常氣派。室內還帶豪華套房、棋牌室以及娛樂室,這這樣的房子建在農村,肯定人人羨慕。 占地面積:12m*12.89m,141平方米左右; 建筑層高:四層; 建筑高度:16.62米(含屋頂); 設計功能: 一層戶型:客廳、休閑廳、臥室、衛生間; 二層戶型:客廳上空、起居室、棋牌室、臥室x2、衛生間、陽臺; 三層戶型:起居室、茶座、豪華主臥(帶衛生間、衣帽間、書房)、臥室(帶衣帽間)、陽臺; 四層戶型:娛樂室、臥室(帶衣帽間)、臥室、露臺; ![]() ![]() ![]() ![]() ![]() 這三套大別墅可以說是不可多得的好房子,有要建房的朋友千萬不要錯過了。
圖紙之家-專注農村別墅/自建房設計18年,集合國內200余位經驗豐富的設計師,被評為口碑最好的農村建筑設計公司! |

130平左右三層樓房設計圖,新農村住宅自建推薦
占地:128平方米
110平方米新農村三層房屋設計圖,含外觀效果圖
占地:110平方米
新農村三層帶露臺自建房設計施工圖,農村自建別墅推薦
占地:112平方米
170平方米歐式三層雙拼別墅建筑設計圖紙及效果圖片
占地:172平方米
新中式徽派帶露臺別墅設計圖,構思精巧,自然得體
占地:124.82平方米
實用農村三層房屋設計圖紙,效果圖+全套施工圖
占地:113平方米
歐式兩層別墅設計圖及歐式效果圖,造價25萬左右
占地:150平方米
造價30萬多的三層簡歐新農村別墅設計施工圖紙及效果圖
占地:133平方米左右
大戶型高端三層別墅設計圖紙,外觀效果圖+CAD建筑圖
占地:227平方米
農村兩間三層房屋設計圖,含外觀圖片
占地:120平方米
大氣、簡約三層雙拼別墅設計圖,適合和父母同住,既相互關照又
占地:260平方米
一層四合院別墅,中式庭院寬綽大氣,這樣的合院養老最合適
占地:396平方米
農村三室二廳一層小平房設計圖,簡單實用型
占地:113.4平方米
網紅中式一層三合院別墅設計圖,白墻黛瓦古典大氣,讓人心曠神
占地:248.82平方米
140平方米農村三層復式房屋設計施工圖,開放式廚房
占地:143平方米
農村大氣四層樓房圖片及全套設計圖紙,復式客廳旋轉樓梯
占地:143平方米
一層半小別墅設計圖帶效果圖,農村自建帶閣樓一層半方案
占地:155平方米
經典美式風100平米二層小別墅設計方案,鄉村建房首選
占地:100.17平方米
仿古別墅建筑設計圖,外觀效果圖+全套施工圖
占地:142平方米
帶車位的鄉村二層別墅建筑結構設計圖,全套施工圖140平
占地:139.85平方米
推薦:10套新農村自建房設計圖,2026年最新設計
閱讀次數:4825737次
100套鄉村別墅圖片大全,2026年最新設計
閱讀次數:2492203次
6款農村蓋一層平房的設計圖,10萬元就能建起來
閱讀次數:1852637次
這11個一層農村自建房別墅火爆了朋友圈!我最喜歡戶型十!你呢
閱讀次數:750268次
農村6萬元建一層小別墅圖,你敢相信嗎
閱讀次數:567686次
農村5萬塊就能自建房,6套普通房子設計圖分享,你沒看錯!
閱讀次數:419410次
8套農村漂亮三間平房圖片,非常適合在農村修建!
閱讀次數:411197次
農村自建房化糞池怎么做?附方案及施工過程
閱讀次數:391783次
農村一層三間平房設計圖,告別土氣養老房,讓人忍不住點贊
閱讀次數:350581次
新農村二層樓房圖片造價12萬,挑一套回家建房吧!
閱讀次數:349126次
