
|
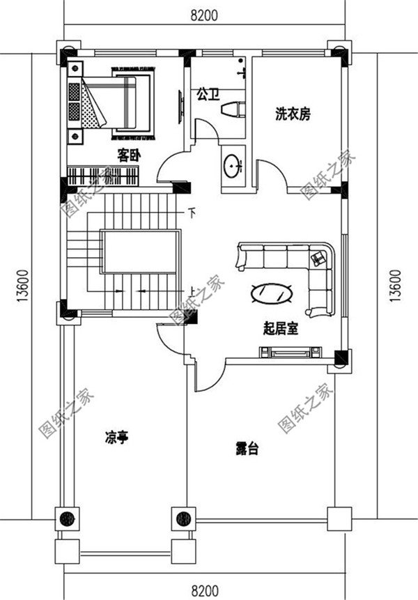
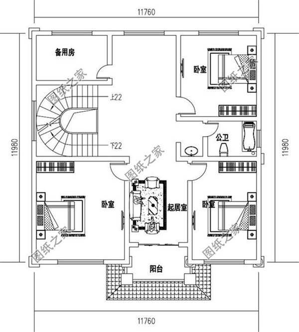
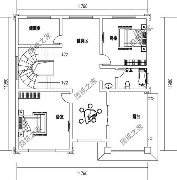
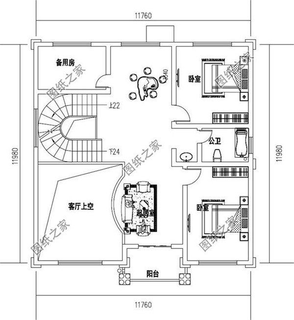
現在城里不僅房價貴,就連物價都不斷提高,所以生活太難了。但是在農村就不一樣了,自建房既節省造價,還能想建多高就多高,因為家里有地,所以有要建房的小伙伴可以看看小編推薦給大家的這四款農村四層別墅設計圖,外觀大氣戶型實用,關鍵是造價經濟,有要建房的朋友抓緊收藏啦。 方案一:農村四層樓房設計圖,復式客廳高端大氣,帶旋轉樓梯設計![]() 圖紙介紹:本戶型占地143平米,外觀十分大氣,簡歐風格干凈簡潔,大落地窗的浮雕非常有設計感,室內設有中空客廳、健身區以及休閑區等,正是符合新農村建房的標準。 占地面積:11.76m*11.98m,143平方米左右; 建筑層高:四層; 建筑高度:16.59米(含屋頂); 設計功能: 一層戶型:客廳、廚房、餐廳、臥室、儲藏室、衛生間; 二層戶型:客廳上空、起居室、休閑區、備用房、臥室x2、衛生間、陽臺; 三層戶型:起居室、備用房、臥室x3、衛生間、陽臺; 四層戶型:臥室x2、休閑區、儲藏室、健身區、衛生間、露臺; ![]() ![]() ![]() ![]() 方案二:農村四層自建房設計圖,占地90平米左右,小戶型設計![]() 圖紙介紹:本戶型占地90平方米左右,主體造價低,外觀溫馨,多窗多柱的設計,滿滿的歐式浪漫氣息。一層餐廳與廚房相連,干凈衛生;客廳寬敞,可供家人放松休息。二層設有3間臥室,大小合理;陽臺和客廳相連,光線充足;三層臥室設置充裕;四層大露臺寬敞,可以打造成空中花園、露臺燒烤等。 占地面積:9.35m*10.62m,92.17平方米左右; 建筑層高:四層; 建筑高度:15.836米(含屋頂); 設計功能: 一層戶型:客廳、廚房、餐廳、茶室、臥室、衛生間; 二層戶型:客廳、臥室(帶衛生間)、臥室x2、衛生間、陽臺; 三層戶型:臥室(帶衛生間)、臥室x3、衛生間、陽臺; 四層戶型:健身房、多功能區、衛生間、露臺、陽臺; ![]() ![]() ![]() ![]() 戶型三:農村四層別墅設計圖,占地112平米,帶屋頂花園設計![]() 圖紙介紹:本戶型占地112平米左右,超大落地窗搭配超大露臺涼亭設計,整體外觀看上去相當的豪華氣派。一層入戶門處設有玄關,隱私性比較好。二層和三層臥室帶衛生間和衣帽間,空間很大又具有單獨的實用空間,并且直通陽臺。四層有客臥、起居室和洗衣房,還有公衛,涼亭、大露臺等,足夠滿足日常生活。 占地面積:8.2m*13.6m,112平方米; 建筑層高:四層; 建筑高度:15.3米(含屋頂); 設計功能: 一層戶型: 玄關,客廳,廚房,餐廳,儲藏室,主臥,公衛; 二層戶型:主臥(帶衛生間+陽臺+衣帽間),起居室,客臥,公衛,書房; 三層戶型:主臥(帶衛生間+陽臺+衣帽間),起居室,客臥,公衛,書房; 四層戶型:涼亭,露臺,起居室,客臥,公衛,洗衣房; ![]() ![]() ![]() ![]() 這三款別墅各有自己的好處,大家看看最喜歡哪一款呢歡迎收藏。
圖紙之家-專注農村別墅/自建房設計18年,集合國內200余位經驗豐富的設計師,被評為口碑最好的農村建筑設計公司! |

新農村一層小別墅設計方案,四臥二廳耐看實用,方便打掃更便捷
占地:153.55平方米
高端大氣三層雙拼自建房設計圖,外觀漂亮,240平左右
占地:240平方米
農村二層住宅樓房設計圖紙,全套方案(施工圖+效果圖)
占地:113平方米
三層歐式豪華別墅設計方案,全套圖紙+效果圖
占地:168平方米
農村二層半新中式小別墅設計圖(帶閣樓層),二層半自建房戶型
占地:144平方米
農村蓋平房設計大全圖,鄉下建房一層戶型圖及效果圖
占地:160平方米
經典一層帶閣樓三合院別墅設計圖,18米乘9.5米
占地:118.63平方米
80平方米新農村二層房屋設計圖紙,造價15萬左右
占地:80平方米
六開間三層農村自建別墅設計圖,盡享豪華舒適生活
占地:341.91平方米
農村二層半兄弟共建房別墅設計圖,復式戶型帶車庫,面寬24米
占地:312平方米左右
青瓦仿古中式大型三層別墅設計圖,韻味十足復古大氣
占地:300平方米
鄉村高檔四層豪華別墅自建房設計圖,一層不帶餐廳廚房戶型
占地:147平方米
蓋別墅圖紙新農村簡歐二層房屋設計圖,12米×12米左右
占地:128平方米左右
兩層中式三合院別墅設計圖紙,堂屋套臥全都有,蓋一棟面子十足
占地:181.93平方米
2026最新兄弟簡歐雙拼別墅設計圖紙,單戶130平米左右
占地:260平方米
五十萬二層半鄉村別墅,客廳挑空設計,占地200平米左右
占地:200平方米
鄉下一層自建養老平房戶型圖及全套圖紙,占地面積200左右
占地:200平方米
帶小院新農村房屋設計圖紙,三層別墅推薦
占地:115平方米
復式樓房二層農村別墅圖,村里建一棟絕對人人都羨慕
占地:130.2平方米
160平方米二層平屋頂房屋設計圖紙及效果圖17x11米
占地:164平方米
推薦:10套新農村自建房設計圖,2026年最新設計
閱讀次數:4825737次
100套鄉村別墅圖片大全,2026年最新設計
閱讀次數:2492203次
6款農村蓋一層平房的設計圖,10萬元就能建起來
閱讀次數:1852637次
這11個一層農村自建房別墅火爆了朋友圈!我最喜歡戶型十!你呢
閱讀次數:750268次
農村6萬元建一層小別墅圖,你敢相信嗎
閱讀次數:567686次
農村5萬塊就能自建房,6套普通房子設計圖分享,你沒看錯!
閱讀次數:419410次
8套農村漂亮三間平房圖片,非常適合在農村修建!
閱讀次數:411197次
農村自建房化糞池怎么做?附方案及施工過程
閱讀次數:391783次
農村一層三間平房設計圖,告別土氣養老房,讓人忍不住點贊
閱讀次數:350581次
新農村二層樓房圖片造價12萬,挑一套回家建房吧!
閱讀次數:349126次
