
|
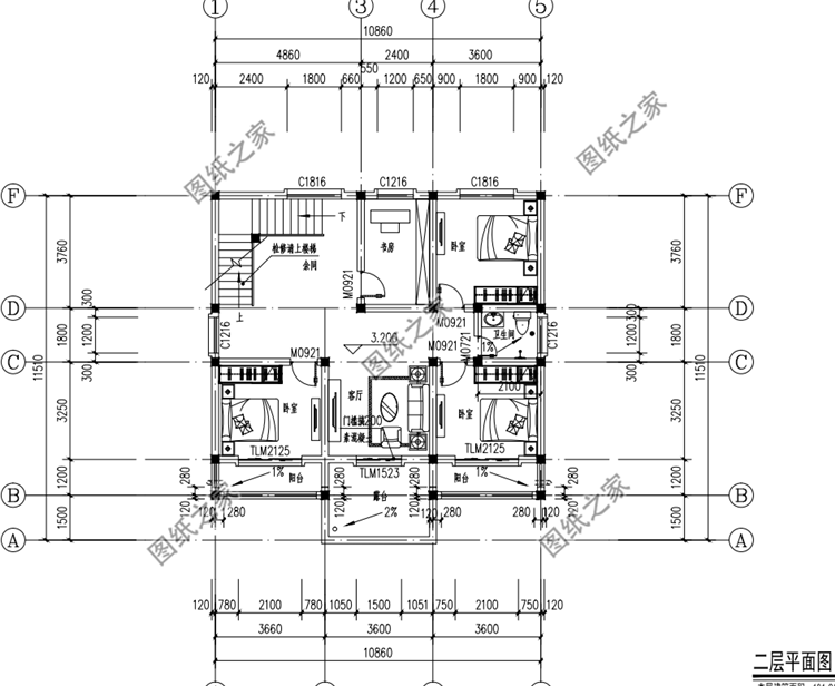
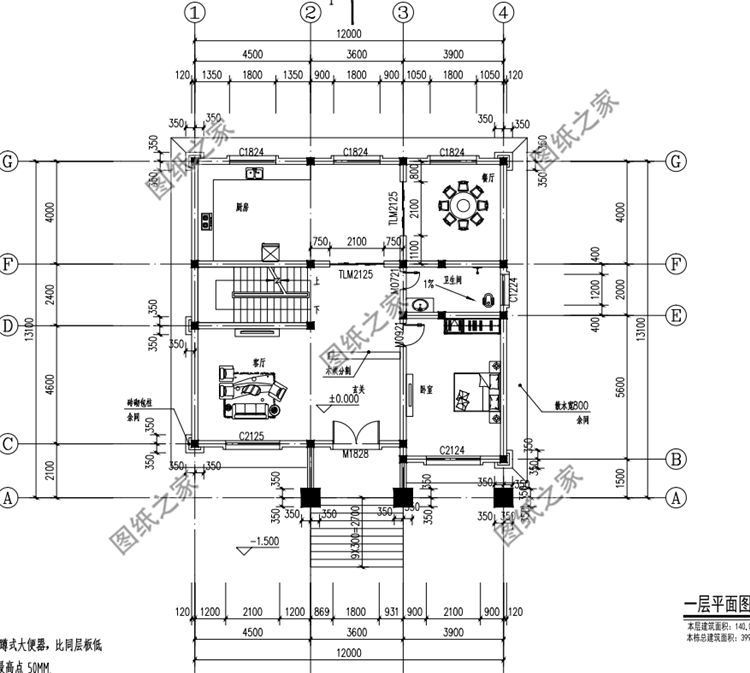
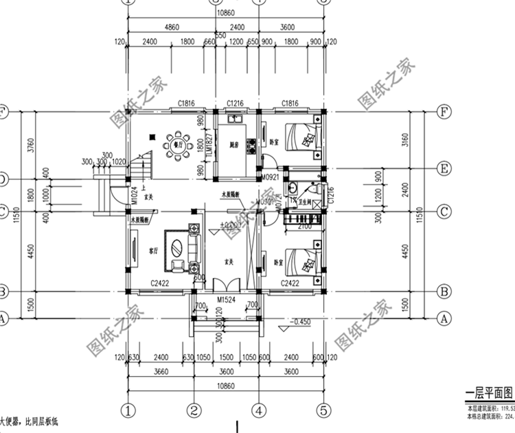
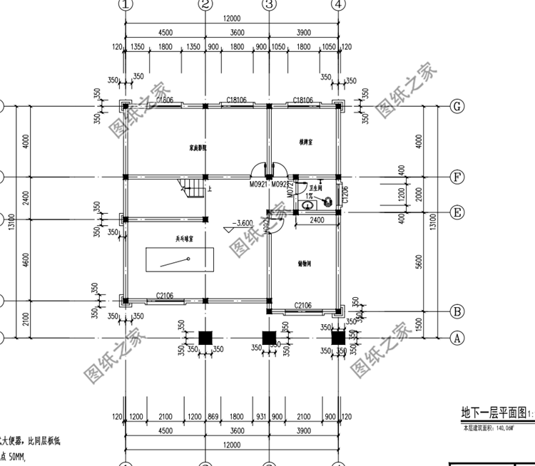
農村很多朋友建房子都注重經濟實用,因為一輩子建房可能就這么一回,所以一定要選對戶型,以防以后戶型落后。今天給大家推薦三款農村三開間別墅設計圖,外觀美觀大方,造型簡單,如果不常在家還可以給父母作為養老房居住,保證看了都喜歡的戶型。造價也經濟實惠,喜歡的話趕快收藏。 戶型一:農村二層樓房設計圖,占地120平米,造價20來萬圖紙介紹:本戶型占地120平米,主體造價20來萬就可以建,外觀大氣美觀,戶型實用。共有五間臥室,帶大露臺設計,適合農村建造。 占地面積:10.8m*11.5m,120平方米左右; 建筑層高:二層; 建筑高度:8.6米(含屋頂); 設計功能: 一層戶型:玄關、客廳、餐廳、廚房、衛生間、臥室×2; 二層戶型:客廳、主臥(帶陽臺)×2、臥室、書房、衛生間、露臺; ![]() ![]() ![]() ![]() 戶型二:農村二層別墅設計圖,占地140平米,帶地下室設計圖紙介紹:帶地下室二層別墅自建房戶型設計圖,占地140平左右,外觀明亮溫暖,下有地下室,上有大露臺,室內布局精細實用。 占地面積:12.00m*13.10m,140平方米左右; 建筑層高:二層; 建筑高度:10.08米(含屋頂); 設計功能: 地下一層戶型:家庭影院、棋牌室、乒乓球室、儲物間、衛生間; 一層戶型:玄關、客廳、餐廳、廚房 、臥室、衛生間; 二層戶型:臥室x4、衛生間、休息室、露臺x3; ![]() ![]() ![]() ![]() 戶型三:農村占地160平米二層別墅設計圖,對稱設計,造價低圖紙介紹:本戶型占地160平方米左右,外觀對稱設計,簡潔干練,兩側開窗,室內皆可有陽光曬入,臥室內設有衣帽間方便儲存衣物,二層單獨設計了客廳起居室,方便家里人多的時候待客和日常起居。主臥也都配有獨立衛生間,私密性好舒適方便,另外各主臥都帶陽臺,活動空間更大,同時還避免了陽光直入室內煩惱。 占地面積:13.44m*11.84m,157.67平方米左右; 建筑層高:二層; 建筑高度:10.5米(含屋頂); 設計功能: 一層戶型:玄關、客廳、茶室、廚房、餐廳、臥室(帶衣帽間、衛生間)、衛生間; 二層戶型:起居室、臥室(帶書房、衛生間)、臥室(帶衣帽間)、臥室、衛生間、洗衣房、露臺、陽臺; ![]() ![]() ![]() 這三款戶型大氣美觀,喜歡的朋友趕快收藏啦。
圖紙之家-專注農村別墅/自建房設計18年,集合國內200余位經驗豐富的設計師,被評為口碑最好的農村建筑設計公司! |

160平方米經典鄉村二層房屋設計圖紙
占地:160平方米
超實用的農村一層別墅設計圖,經濟實惠養老自住都不錯,
占地:128.35平方米
70平農村小戶型二層別墅設計圖,小宅基地的福音
占地:70平方米
80平方米二層房屋設計圖,造價10萬左右
占地:80平方米
兩層半雙拼別墅設計方案,超大露臺+歐式風格,好設計別錯過!
占地:175.8平方米
160平方米歐式一層半別墅施工設計圖紙13X13米
占地:160平方米
農村大戶型中式二層四合院別墅設計圖含外觀效果圖,戶型經典、
占地:464平方米
鄉下三層大氣房子設計圖,外觀挺高大上的,主體29萬多
占地:132.48平方米
240平農村二層自建別墅設計圖紙,帶你體驗家的溫馨
占地:240平方米
新款現代一層小別墅設計圖,農村自建平房推薦戶型
占地:多戶型可選
140平米平屋頂二層新農村自建房設計圖,極簡主義設計 ,實用優
占地:143平方米
農村七字形獨棟一層別墅設計圖,設計感十足
占地:274.51平方米
自建一層三合院別墅圖,雅致鄉村居造價經濟,南北通透更宜居!
占地:176.36平方米
農村7字形漂亮房子設計圖及外觀效果圖
占地:189.3平方米
12.8x10米二層自建房別墅設計圖,大氣美觀實用,建造無憂
占地:128平方米
農村現代三層建房子設計圖及圖片,平屋頂的設計
占地:150平方米
新農村中式一層三合院效果圖及全套設計圖,喜歡合院的有福了
占地:118平方米
進深15米新農村三層房屋設計圖紙,農村住宅設計圖集
占地:128平方米
大氣農村三層歐式雙拼別墅全套施工圖紙,帶堂屋設計,外觀圖片
占地:196.056平方米
120平二層別墅房屋設計圖,造型美觀、現代
占地:120平方米
推薦:10套新農村自建房設計圖,2026年最新設計
閱讀次數:4825737次
100套鄉村別墅圖片大全,2026年最新設計
閱讀次數:2492203次
6款農村蓋一層平房的設計圖,10萬元就能建起來
閱讀次數:1852637次
這11個一層農村自建房別墅火爆了朋友圈!我最喜歡戶型十!你呢
閱讀次數:750268次
農村6萬元建一層小別墅圖,你敢相信嗎
閱讀次數:567686次
農村5萬塊就能自建房,6套普通房子設計圖分享,你沒看錯!
閱讀次數:419410次
8套農村漂亮三間平房圖片,非常適合在農村修建!
閱讀次數:411197次
農村自建房化糞池怎么做?附方案及施工過程
閱讀次數:391783次
農村一層三間平房設計圖,告別土氣養老房,讓人忍不住點贊
閱讀次數:350581次
新農村二層樓房圖片造價12萬,挑一套回家建房吧!
閱讀次數:349126次
