
|
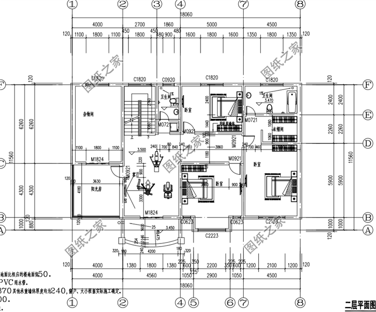
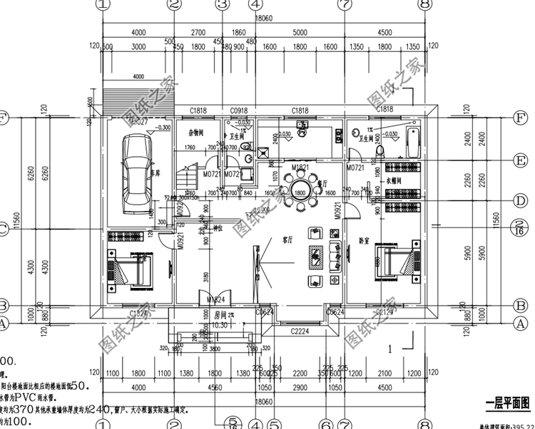
鄉村別墅各式各樣,讓人眼花繚亂,這也說明我們農村的生活水平提高了,不僅如此,家家戶戶也都有了自己的車,那么建房的時候也就少不了車庫了。今天就給大家推薦三款農村帶車庫二層樓房設計圖,在農村是非常受歡迎的款式,如果家里有建房的朋友完全可以收藏這三款戶型。 第一款:農村二層別墅設計圖,帶車庫設計,占地140平米圖紙介紹:本戶型占地140平米左右,帶車庫設計,外觀現代時尚,簡約雅致,帶開放式車庫設計。進門設有玄關,作為進出別墅的公共過渡區域,與客廳相連通,空間有余,獨立廚房與餐廳相連,用推拉門隔開,提供無油煙的良好就餐環境;二層小客廳設置在樓層中心位置,與陽臺直接相連,作為家庭活動的公共區域,必不可缺。 占地面積:14.76m*10.06m,139.85平方米左右; 建筑層高:二層; 建筑高度:9米(含屋頂); 設計功能: 一層戶型:玄關、客廳、廚房兼柴火房、餐廳、洗衣房、臥室x2、衛生間、車庫; 二層戶型:小客廳、儲藏室、臥室x3、陽臺、露臺; ![]() ![]() ![]() 第二款:農村二層別墅設計圖,面寬20平米,帶車庫和土灶房設計圖紙介紹:本戶型占地250平米左右,外觀美觀大氣,帶車庫和土灶房設計,室內布局簡單實用,老虎窗的設計精巧美觀,八角采光窗實用又極具設計感,一看便難以忘懷。一樓二樓都帶有露臺,室外活動區域充足,居住更加舒適。入戶即是客廳,工作了一天的疲憊,直接在客廳的沙發上休息,餐廳和客廳直通,更顯空間的寬闊明亮,兩間臥室,都帶有通風采光窗,居住環境較為舒適,可選作為老人房,盡到子女的孝心,悉心照顧父母;客廳居于中間,有緩沖的空間,生活不會太急促,每日起床有坐著放松的地方,5間臥室,足夠一家人使用,而且還有空余房間,節假日親朋好友可以留宿! 占地面積:20.5m*13.1m,250.85平方米左右; 建筑層高:二層; 建筑高度:11.26米(含屋頂); 設計功能: 一層戶型:客廳、廚房、餐廳、土灶房、臥室、臥室(帶衛生間)、衛生間、車庫; 二層戶型:客廳、臥室x4、臥室(帶衛生間)、衛生間、陽臺x3、露臺; ![]() ![]() ![]() 第三款:農村二層自建房設計圖,歐式風格設計,帶車庫圖紙介紹:這款二層別墅占地211平米,歐式風格,帶車庫設計,外觀美,造價低,深受大眾的喜歡。外墻貼的是奶白色的瓷磚很大氣。搭配藍色屋頂,整體給人感覺很舒服協調,別墅雖只有二層,但卻豪氣十足,農村自建一棟,一點不比城市的花園洋樓差。 占地面積:18.06m*11.56m,211平方米左右; 建筑層高:二層; 建筑高度:10.06米(含屋頂); 設計功能: 一層戶型:客廳、神位、餐廳、廚房 、臥室、臥室(帶衣帽間、衛生間)、衛生間、雜物間、車庫; 二層戶型:臥室(帶衣帽間、衛生間)、健身房、臥室x2、衛生間、雜物間、陽光房、露臺; ![]() ![]() ![]() ![]() 不知道這三款戶型大家喜歡嗎?歡迎評論留言。
圖紙之家-專注農村別墅/自建房設計18年,集合國內200余位經驗豐富的設計師,被評為口碑最好的農村建筑設計公司! |

歐式小型二層別墅效果圖片,帶全套Cad別墅設計圖紙
占地:120平方米
開間14米!農村養老一層別墅神戶型,爸媽住得安心,施工隊狂贊太
占地:160.86平方米
新農村二層住宅設計圖紙,簡單別墅設計圖(含效果圖)
占地:77.6平方米
西班牙風格農村二層樓房設計圖及效果圖,實用美觀
占地:170平方米
新款現代一層小別墅設計圖,農村自建平房推薦戶型
占地:多戶型可選
二層復式小別墅設計圖,樓中樓結構,外觀漂亮,簡單
占地:120平方米
2026新款農村三層雙拼自建房設計圖,占地150平米左右
占地:150平方米
農村最漂亮平頂三層別墅設計圖,10.5乘11.5米
占地:119.35平方米
四開間兩層別墅設計圖,農村自建住著舒適的好方案!
占地:187.04平方米
共用中堂雙拼兄弟三層別墅設計圖,簡歐式風格
占地:230平方米
農村160平四間兩層樓房設計圖,全套施工圖+外觀效果圖片
占地:160平方米
一層帶商鋪的四層樓房別墅設計圖紙和效果圖,房屋戶型圖
占地:133平方米
人氣頗高的三層新中式別墅方案,五種戶型,五種尺寸
占地:120-165平方米
250平方米農村三層別墅設計圖紙及效果圖大全,18.3x15米
占地:247平方米
二層自建房子最新款設計圖,平屋頂簡約經濟,美觀不失大方。
占地:115.64平方米
高端四間五間兩層別墅設計圖紙,開間20米自建房效果圖
占地:265平方米
最新歐式三層別墅設計圖紙,超漂亮,預算30到40萬
占地:160平方米
農村四間三層豪華別墅設計方案圖,造型輕奢雅致
占地:200平方米
新中式三層豪華大氣三層別墅自建房屋設計圖,帶地下室,土豪專
占地:194平方米
13X13米新農村中式風三層別墅設計方案,內部布局緊湊溫馨
占地:168.43平方米
推薦:10套新農村自建房設計圖,2026年最新設計
閱讀次數:4825737次
100套鄉村別墅圖片大全,2026年最新設計
閱讀次數:2492203次
6款農村蓋一層平房的設計圖,10萬元就能建起來
閱讀次數:1852637次
這11個一層農村自建房別墅火爆了朋友圈!我最喜歡戶型十!你呢
閱讀次數:750268次
農村6萬元建一層小別墅圖,你敢相信嗎
閱讀次數:567686次
農村5萬塊就能自建房,6套普通房子設計圖分享,你沒看錯!
閱讀次數:419410次
8套農村漂亮三間平房圖片,非常適合在農村修建!
閱讀次數:411197次
農村自建房化糞池怎么做?附方案及施工過程
閱讀次數:391783次
農村一層三間平房設計圖,告別土氣養老房,讓人忍不住點贊
閱讀次數:350581次
新農村二層樓房圖片造價12萬,挑一套回家建房吧!
閱讀次數:349126次
