
|
城市中的商品房為了順應大時代的趨勢外觀造型都非常時尚大氣,但對于父母來說他們始終放不下的是農村的那一畝三分地跟老哥們與老姐們,總覺的老家的房子才是他們真正的歸宿。自己忙碌的工作即使把父母接到身邊但是陪伴的時光少之又少,想著在老家為父母蓋上一棟養老房,雖然外觀不是很精致,單單舒適實用就很討老人家的喜愛。本期小編就給大家推薦5款農村優質養老房合集感興趣的朋友們一起來看看吧! 別墅圖一展示:占地面積:11.76m*11.01m,113.4平方米; 建筑層高:一層; 建筑高度:6.583米(含屋頂);
別墅效果圖 設計功能:
一層戶型圖 一層戶型:客廳、廚房、餐廳、臥室x3、衛生間; 別墅圖二展示:占地面積:23.36m*10.56m,193.47平方米左右; 建筑層高:一層; 建筑高度:5.774米(含屋頂);
別墅效果圖
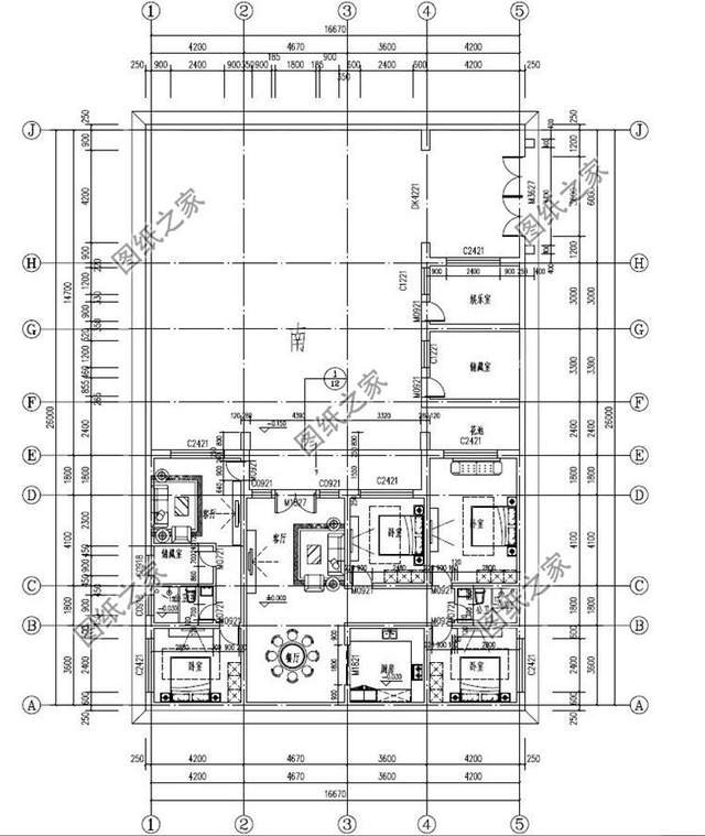
一層戶型圖 設計功能: 一層戶型:客廳、臥室(帶衛生間)、臥室x4、書房、儲藏室、廚房、餐廳、衛生間; 別墅圖三展示:占地面積:16.67m*26m,248.78平方米左右;
正面效果圖
鳥瞰效果圖
側面效果圖
一層平面圖
別墅圖四展示:占地面積:17.6m*12.6m,220平方米左右; 建筑層高:一層; 建筑高度:6.6米(含屋頂);
正面效果圖
鳥瞰效果圖
側面效果圖
一層戶型圖 設計功能:客廳、餐廳、廚房、、臥室×5、衛生間×2; 別墅圖五展示:占地面積:18.36m*12.86m,220平方米左右; 建筑層高:一層半; 建筑高度:9.1米(含屋頂); 設計功能:
正面效果圖
側面效果圖
鳥瞰效果圖
一層平面圖
閣樓平面圖 一層戶型:入戶大廳、玄關、客廳、餐廳、廚房、臥室x3、書房、衛生間; 閣樓戶型:臥室、衛生間; 圖紙之家-專注農村別墅/自建房設計18年,集合國內200余位經驗豐富的設計師,被評為口碑最好的農村建筑設計公司! |

農村15萬元二層小樓設計圖,15萬農村兩層小別墅圖片
占地:120平方米
大氣新中式三層雙拼別墅設計圖及外觀,總面寬20米多
占地:205.76平方米
徽派自建房一層設計圖,七字型設計,獨立餐廚便捷實用
占地:171.65平方米
豪華二層別墅設計圖紙及別墅圖片,旋轉樓梯,內設佛堂,大大落
占地:260平方米
農村中式四合院房屋圖片及設計圖,白墻黛瓦的江南風格
占地:337平方米
新農村簡歐三層樓房圖片自建3層別墅施工設計圖及效果圖
占地:126平方米
四層巴洛克別墅設計圖,旋轉樓梯搭配超大挑空客廳,很有氣勢
占地:146平方米
農村帶車庫兩層歐式農村別墅設計圖紙,占地220平方米左右
占地:221平方米
鄉村仿古一層別墅圖片及設計圖,經典實用,占地170平
占地:170平方米
歐式三層雙拼別墅設計圖,精致大氣布局實用,兄弟建房上上之選
占地:234平方米
170平方米雙拼別墅戶型建筑設計圖紙及外觀效果圖,復式單戶85平
占地:170平方米
農村蓋房設計大全一層房子的設計圖紙,色調清新靚麗
占地:220平方米
農村二層中式三合院設計圖,這才是國人該建的房子
占地:175.58平方米
110平米一層小別墅設計方案,布局四室兩廳一廚兩衛
占地:110.5平方米
三層帶車庫樓中樓建房別墅圖紙,占地130平米左右,戶型室內布局
占地:130平方米
農村大戶型中式二層四合院別墅設計圖含外觀效果圖,戶型經典、
占地:464平方米
三間三層樓房設計圖紙,復試的設計,漂亮的一塌糊涂
占地:175平方米
獨棟別墅設計戶型圖帶外觀效果圖,雙向樓梯設計
占地:155平方米
180平方米新農村雙拼戶型別墅房屋設計圖紙帶外觀圖17X11米
占地:180平方米
田園兩層半別墅新農村房屋施工設計圖,外觀清新靚麗感情色彩豐
占地:144.12平方米
推薦:10套新農村自建房設計圖,2026年最新設計
閱讀次數:4825737次
100套鄉村別墅圖片大全,2026年最新設計
閱讀次數:2492203次
6款農村蓋一層平房的設計圖,10萬元就能建起來
閱讀次數:1852637次
這11個一層農村自建房別墅火爆了朋友圈!我最喜歡戶型十!你呢
閱讀次數:750268次
農村6萬元建一層小別墅圖,你敢相信嗎
閱讀次數:567686次
農村5萬塊就能自建房,6套普通房子設計圖分享,你沒看錯!
閱讀次數:419410次
8套農村漂亮三間平房圖片,非常適合在農村修建!
閱讀次數:411197次
農村自建房化糞池怎么做?附方案及施工過程
閱讀次數:391783次
農村一層三間平房設計圖,告別土氣養老房,讓人忍不住點贊
閱讀次數:350581次
新農村二層樓房圖片造價12萬,挑一套回家建房吧!
閱讀次數:349126次
