
|
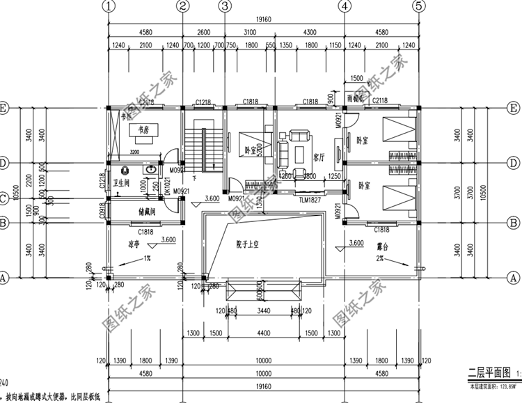
現在建房子都喜歡時尚氣息十分強的現代樓房,也是當代年輕人最理想的農村住宅。今天給大家推薦的這三款現代風二層別墅設計圖,整體簡潔大方,通透的大玻璃窗充分保證了室內的明亮舒爽;室內多臥室、挑出陽臺設計,打造高品質居住生活,而且非常適合用來作為結婚新房居住。 第一款:農村二層別墅設計圖,現代風格設計,實用美觀圖紙介紹:本戶型占地184平米左右,超實用現代風格設計,外觀純粹簡約,設計的非常棒,布局精巧,南北通透,方便家人生活起居。 ![]() ![]() ![]() 第二款:農村現代二層別墅設計圖,占地160平米左右,四合院設計圖紙介紹:本戶型占地157平方米左右,現代中式四合院設計,秒殺各種洋別墅,漂亮極了。在別墅的二層也設有露臺,也可以讓住在二樓的戶主方便養花,晾曬被褥等。 占地面積:19.16m*10.5m,157平方米; 建筑層高:二層; 建筑高度:9.2米(含屋頂); 設計功能: 一層戶型: 臥室X2,衛生間,臥室(帶衛生間),客廳,院子,廚房,餐廳; 二層戶型: 書房,衛生間,儲藏間,涼亭,院子上空,臥室X3,客廳,露臺; ![]() ![]() ![]() ![]() 第三款:農村二層別墅設計圖,占地180平米,外觀漂亮大氣圖紙介紹:本戶型占地180平米左右,外觀漂亮大氣,帶露臺設計,戶型實用合理,室內布局功能齊全,非常適合農村建造。 占地面積:16.9m*13.0m,占地180平方米左右; 建筑層高:二層; 建筑高度:9.8米(含屋頂); 設計功能: 一層戶型:玄關、堂屋、客廳、衛生間、主臥(帶衛生間)、臥室、棋牌室;堂屋可改造成廚房餐廳。 二層戶型:客廳、主臥(帶衣帽間,衛生間)、臥室(帶衣帽間)x2、廚房、衛生間、大露臺; ![]() ![]() ![]() ![]() 喜歡現代風的朋友們趕快收藏吧,歡迎下方評論留言。
圖紙之家-專注農村別墅/自建房設計18年,集合國內200余位經驗豐富的設計師,被評為口碑最好的農村建筑設計公司! |

新款三層農村自建別墅設計圖,中式風復式客廳
占地:158.96平方米
120平帶車庫二層農村別墅施工圖,簡約時尚的外觀
占地:119.13平方米
簡單農村自建二層樓房設計圖,南北通透
占地:140平方米
140平二層帶閣樓別墅設計方案圖,外觀圖片色彩明快
占地:140平方米
二層新農村自建房設計圖,帶外觀效果圖
占地:140平方米
造型新穎漂亮的農村二層現代風別墅設計圖,老少皆宜的外觀
占地:144.54平方米
帶庭院中式二層四合院別墅設計效果圖片,方方正正
占地:404平方米
新款240平方米三層雙拼別墅設計圖,歐式兄弟雙拼圖片
占地:240平方米
新款漂亮農村三層別墅建筑設計圖紙帶效果圖片,3種戶型
占地:125平方米
兩層半樓房設計圖及效果圖,農村二層房屋設計圖推薦
占地:135平方米
一層中式三合院別墅設計圖,白墻黛瓦引領潮流
占地:177.94平方米
新農村三層別墅設計圖紙及效果圖,全套cad建筑圖
占地:119平方米
三層雙拼別墅效果圖及戶型設計圖,占地150平米
占地:154.8平方米
豪華復式三層別墅設計圖紙,效果圖+建筑施工圖+結構施工圖
占地:126平方米
四層農村別墅設計圖,一二層都有廚房和餐廳的戶型方案
占地:128.52平方米
方正對稱二層農村自建別墅施工圖,經濟實用舒適大氣
占地:129.6平方米
110平方米新農村實用現代的二層建筑設計圖紙帶外觀圖11X10米
占地:110平方米
一層農房別墅設計圖紙,140平方米,面寬15米
占地:140平方米
12米×10米左右一層別墅平房戶型圖及設計圖,造價低
占地:110平方米
160平方米二層自建別墅設計施工建筑圖紙及效果圖,15x11米
占地:163平方米
推薦:10套新農村自建房設計圖,2026年最新設計
閱讀次數:4825737次
100套鄉村別墅圖片大全,2026年最新設計
閱讀次數:2492203次
6款農村蓋一層平房的設計圖,10萬元就能建起來
閱讀次數:1852637次
這11個一層農村自建房別墅火爆了朋友圈!我最喜歡戶型十!你呢
閱讀次數:750268次
農村6萬元建一層小別墅圖,你敢相信嗎
閱讀次數:567686次
農村5萬塊就能自建房,6套普通房子設計圖分享,你沒看錯!
閱讀次數:419410次
8套農村漂亮三間平房圖片,非常適合在農村修建!
閱讀次數:411197次
農村自建房化糞池怎么做?附方案及施工過程
閱讀次數:391783次
農村一層三間平房設計圖,告別土氣養老房,讓人忍不住點贊
閱讀次數:350581次
新農村二層樓房圖片造價12萬,挑一套回家建房吧!
閱讀次數:349126次
