
|
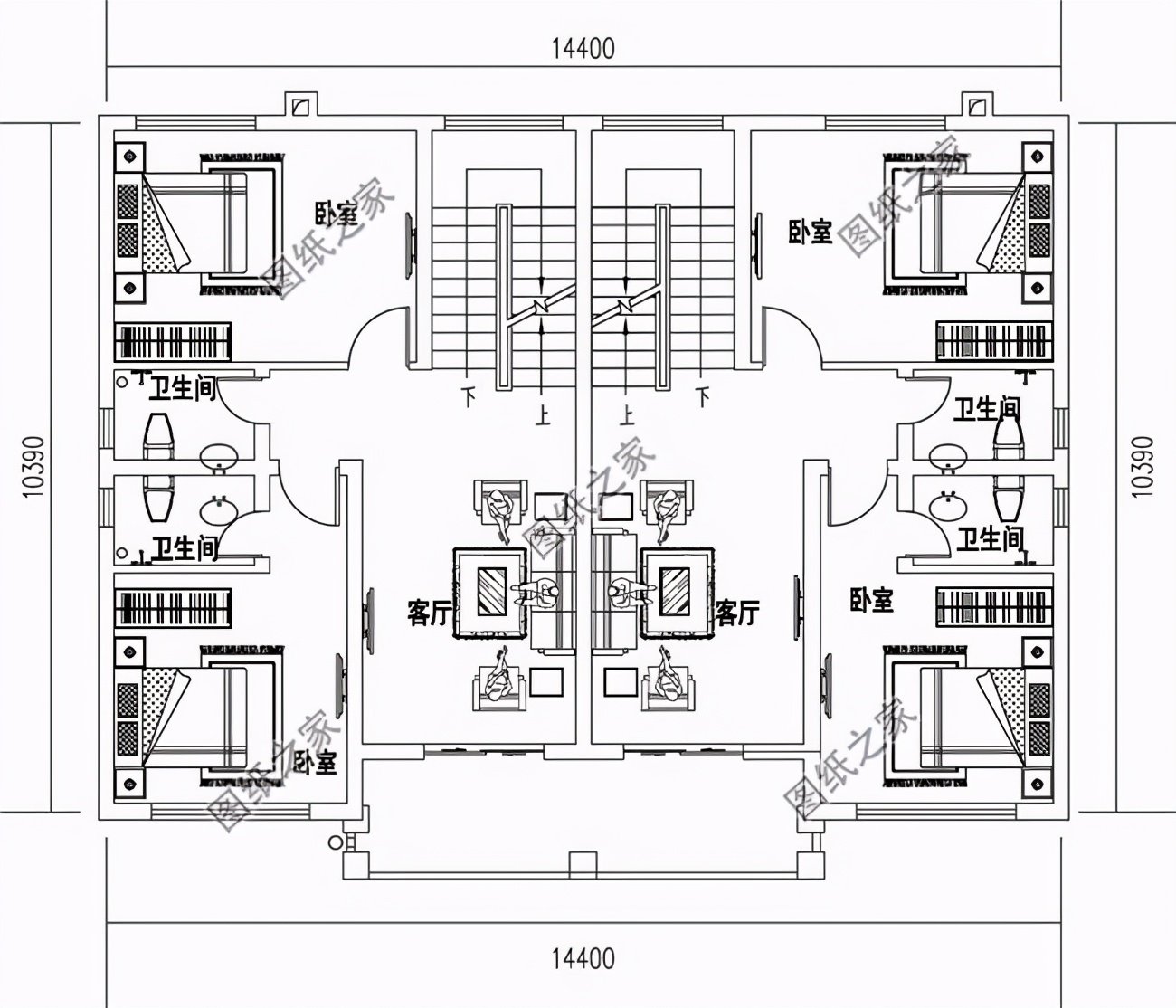
家中有倆兄弟,蓋個雙拼別墅,分家均勻實用又經濟。在使用屬性上雙拼別墅,適合家中兄弟二人建造,既相互關照又相互獨立,是和諧大家庭的最優選擇。在外觀上它左右對稱,四平八穩,貼合我國的傳統審美。下面小編推薦三款單戶75平左右的雙拼別墅設計圖以及戶型圖,一起來看看吧! 第一款:現代簡約三層別墅設計圖以及戶型圖,大氣帶露臺![]() 這款房屋外觀時尚又現代,外觀多窗的設計增加采光與通風,外墻顏色樸實質樸,又給住宅增添了一絲別樣風情,二三樓兩側沒有開窗,保護個人隱私的同時,也大大改觀了鄰里的起密度,是不可多得的好戶型。 占地面積:16.2m*10.5m,151.91平方米,單戶76平左右; 建筑層高:三層; 建筑高度:12.827米(含屋頂); 設計功能: 一層:客廳、餐廳、廚房、臥室、衛生間; 二層:臥室x2、衛生間、臥室(帶陽臺); 三層:客廳、臥室、衛生間、露臺、陽臺 ![]() ![]() ![]() 第二款:小戶型經濟型三層雙拼小別墅設計圖以及戶型圖,實用型設計 ![]() ![]() ![]() 普通農村雙拼樓房方案,造價低,單戶100平以內,外立面選擇暖黃色外墻磚,與藍色的坡屋頂結合,整體配色有濃有淡。視覺感上,讓建筑很沉穩。屋頂的老虎窗作為歐式別墅的經典元素,使得建筑整體風格更為純粹完整。老虎窗提供的采光和通風能力也極大地優化了頂層室內空間的舒適性。 占地面積:14.4m*10.39m,150平方米左右,單戶75平左右; 建筑層高:三層; 建筑高度:11.52米(含屋頂); 設計功能: 一層:餐廳或客廳、廚房、衛生間; 二層:客廳、臥室(帶衛生間)、臥室、衛生間、陽臺; 三層:備用房、臥室(帶衛生間)、臥室、衛生間、露臺 ![]() ![]() ![]() 第三款:簡歐式三層別墅設計圖以及戶型圖,帶院子設計 ![]() ![]() ![]() 新款農村三層雙拼自建房設計圖,占地150平米左右,單戶75平米左右,新款的設計,占地面積不大符合農村的用地政策。戶型合理,雖然面積不大,但房間布局很好,不緊湊,充分了利用了每一寸空間。外觀是偏歐式的風格,高貴氣質和精雕細琢的工藝,散發著獨一無二的魅力。暖黃色的外墻搭配紅色的屋頂,溫馨安逸,這才是中國農村該建的房子。 占地面積:14.4m*10.4m,150平方米左右,單戶75平左右; 建筑層高:三層; 建筑高度:12.6米(含屋頂); 設計功能: 一層:客廳、餐廳、廚房、臥室、衛生間; 二層:客廳、臥室×2、書房、衛生間; 三層:臥室,書房、衛生間、露臺; ![]() ![]() ![]() 今天分享的雙拼別墅設計圖以及戶型圖就到這里,喜歡的就趕緊分享給自己兄弟姐妹好好看看。過完年就能建了!
圖紙之家-專注農村別墅/自建房設計18年,集合國內200余位經驗豐富的設計師,被評為口碑最好的農村建筑設計公司! |

高端大氣中式四合院二層別墅小樓設計圖,外觀古香古色
占地:213平方米
200平米二層自建房別墅設計圖,外觀漂亮布局實用
占地:207.09平方米
150平米農村兩層樓房設計圖,簡單大氣時尚
占地:150平方米
平頂三層別墅設計方案,簡潔舒適大氣通透,12乘9米,打造理想住
占地:98.21平方米
農村兄弟倆雙拼別墅房屋設計圖,外觀質樸
占地:195平方米
歐式風格三層別墅建筑設計圖,復式樓中樓結構
占地:138平方米
農村一層中式三合院別墅設計圖,戶型經典實用,19米乘15米
占地:243.21平方米
農村二層帶車庫樓房設計圖,帶外觀效果圖片
占地:125平方米
二層農村房子圖片及全套施工圖紙,占地150平面左右
占地:150平方米
110平房子設計圖,經典的農村自建房屋設計圖
占地:110平方米
經濟實用二層復式樓房設計圖 ,占地150平方米,造價25萬左右
占地:150平方米
平頂新中式三層農村別墅設計圖,最適合鄉村自建占地150平米
占地:150.35平方米
面寬13米三層新中式獨棟別墅設計圖,復式自建房戶型方案
占地:201.25平方米
農村蓋平房設計大全圖,鄉下建房一層戶型圖及效果圖
占地:160平方米
125平方米新中式農村自建三層別墅建筑設計圖紙及效果圖
占地:124平方米
兩層半20萬農村自建房,占地120平米左右
占地:120平方米
三層平屋頂別墅房屋設計圖及外觀效果圖
占地:150平方米
100平客廳挑高三層樓房設計圖,復式結構
占地:100平方米
最新設計的三層農村別墅圖紙,帶車庫,帶露臺,占地150平米左右
占地:150平方米
鄉下三層大氣房子設計圖,外觀挺高大上的,主體29萬多
占地:132.48平方米
推薦:10套新農村自建房設計圖,2026年最新設計
閱讀次數:4825737次
100套鄉村別墅圖片大全,2026年最新設計
閱讀次數:2492203次
6款農村蓋一層平房的設計圖,10萬元就能建起來
閱讀次數:1852637次
這11個一層農村自建房別墅火爆了朋友圈!我最喜歡戶型十!你呢
閱讀次數:750268次
農村6萬元建一層小別墅圖,你敢相信嗎
閱讀次數:567686次
農村5萬塊就能自建房,6套普通房子設計圖分享,你沒看錯!
閱讀次數:419410次
8套農村漂亮三間平房圖片,非常適合在農村修建!
閱讀次數:411197次
農村自建房化糞池怎么做?附方案及施工過程
閱讀次數:391783次
農村一層三間平房設計圖,告別土氣養老房,讓人忍不住點贊
閱讀次數:350581次
新農村二層樓房圖片造價12萬,挑一套回家建房吧!
閱讀次數:349126次
