
|
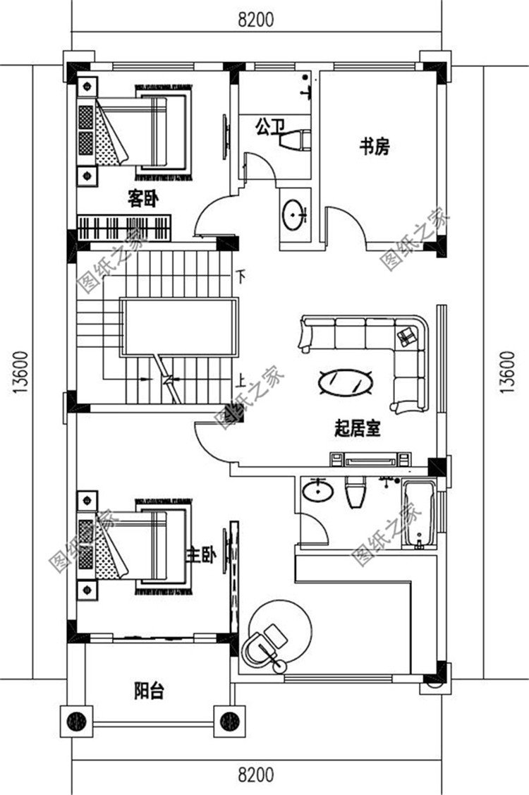
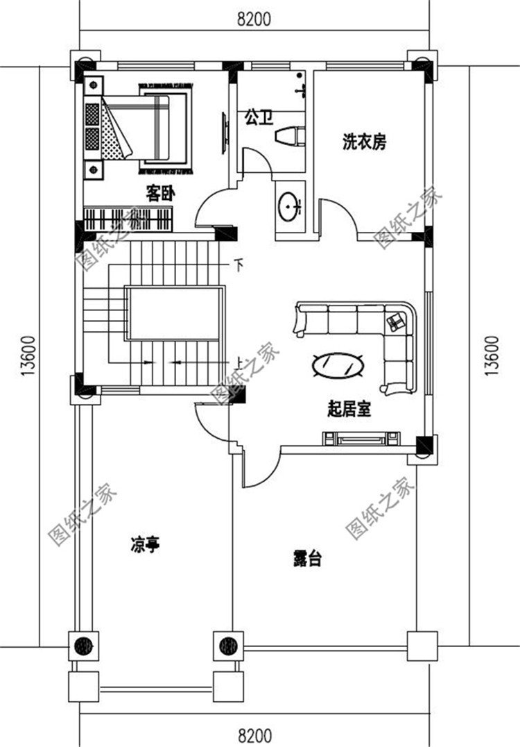
想要回農村建房子,如果經過定制設計的房子,那當然是美觀大方讓人羨慕;如果沒有經過設計,只是照貓畫虎毫無美感可言,甚至還會出現施工上的問題。這就是為什么這么多人選擇定制設計的原因。今天就給大家推薦三款農村三層半別墅圖片,精美絕倫,戶型大氣極了,保證是適合自家的房子。 戶型一:農村三層半別墅設計圖,占地180平米左右,外觀高端大氣圖紙介紹:這款三層半自建房占地180平米左右,外觀高端大氣,歐式風格,別墅整體采用對稱設計,房子的屋頂是鋪蓋了紅色的釉面瓷瓦,主墻面為米色真石漆搭配米黃色文化石,外觀造型經典沉穩最大氣的地方就是門頭的設計了,高亮霸氣的歐式羅馬柱完全撐起了房子的豪華高度,厚重簡約,讓整棟建筑威嚴莊重自帶氣場。別墅整體采用對稱設計,再搭配上經典沉穩的外觀造型與厚重簡約的立柱設計,整棟建筑威嚴莊重自帶氣場。 占地面積:12.84m*13.44m,179.52平方米左右; 建筑層高:四層; 建筑高度:15.14米(含屋頂); 設計功能: 一層戶型:門廳、休閑區、客廳、廚房、餐廳、臥室、衛生間; 二層戶型:客廳上空、書房、臥室(帶衛生間)、臥室、衛生間、陽臺; 三層戶型:客廳、臥室(帶衛生間)、臥室(帶衣帽間、衛生間)、臥室、衛生間、陽臺x3; 四層戶型:運動室、臥室、衛生間、露臺; ![]() ![]() ![]() ![]() ![]() 戶型二:農村自建房設計圖,三層半設計,戶型占地90平米左右圖紙介紹:這款三層半別墅占地90平方米左右,戶型簡單造價低,外觀溫馨!屋頂面采用灰色琉璃瓦,外墻面采用黃色瓷磚貼面,勒腳面灰色瓷磚,羅馬柱面采用黃色乳膠漆。多窗多柱的設計,營造了滿滿的歐式浪漫氣息。一層餐廳與廚房相連,干凈衛生;客廳寬敞,可供家人放松休息。二層設有3間臥室,大小合理;陽臺和客廳相連,光線充足;三層臥室設置充裕;四層大露臺寬敞,可以打造成空中花園、露臺燒烤等。 占地面積:9.35m*10.62m,92.17平方米左右; 建筑層高:四層; 建筑高度:15.836米(含屋頂); 設計功能: 一層戶型:客廳、廚房、餐廳、茶室、臥室、衛生間; 二層戶型:客廳、臥室(帶衛生間)、臥室x2、衛生間、陽臺; 三層戶型:臥室(帶衛生間)、臥室x3、衛生間、陽臺; 四層戶型:健身房、多功能區、衛生間、露臺、陽臺; ![]() ![]() ![]() ![]() ![]() 戶型三:農村三層半自建別墅設計圖,平屋頂設計,帶屋頂花園設計圖紙介紹:這款三層半別墅占地112平米左右,平屋頂設計,大型落地窗搭配超大露臺涼亭!整體外觀看上去那是相當的豪華氣派。屋頂邊緣橘紅色的琉璃瓦鋪蓋,主墻外墻面采用米黃色真石漆+淺咖色面磚+褐色大理石瓷磚來裝飾+浮雕飾畫和歐式構件。入戶門處設有玄關,從門口不能直接看到屋內事物,隱私性比較好。二至三層布局:臥室帶衛生間和衣帽間,空間很大又具有單獨的實用空間,并且直通陽臺。四層布局:客臥、起居室、洗衣房,公衛,涼亭、大露臺。大面積的室外休閑空間,足夠滿足日常生活。 占地面積:8.2m*13.6m,112平方米; 建筑層高:四層; 建筑高度:15.3米(含屋頂); 設計功能: 一層戶型: 玄關,客廳,廚房,餐廳,儲藏室,主臥,公衛; 二層戶型:主臥(帶衛生間+陽臺+衣帽間),起居室,客臥,公衛,書房; 三層戶型:主臥(帶衛生間+陽臺+衣帽間),起居室,客臥,公衛,書房; 四層戶型:涼亭,露臺,起居室,客臥,公衛,洗衣房; ![]() ![]() ![]() ![]() ![]() 喜歡三層半房子的朋友千萬不要錯過這三款,記得收藏。
圖紙之家-專注農村別墅/自建房設計18年,集合國內200余位經驗豐富的設計師,被評為口碑最好的農村建筑設計公司! |

氣派的歐式風格三層房子設計圖紙,外觀圖太漂亮了
占地:132平方米
現代三層農村民房設計圖及圖片,外觀高端、大氣
占地:196平方米
10套農村經典二層樓房設計圖紙,多戶型,多尺寸,總有一款適合
占地:多種
帶小院七字形一層自建房戶型設計圖,平屋頂圖紙
占地:201.08平方米
新農村中式一層三合院效果圖及全套設計圖,喜歡合院的有福了
占地:118平方米
230平方米新農村二層自建別墅設計圖紙帶外觀圖,20X11米
占地:227平方米
帶大套間新農村二層別墅自建房設計圖紙帶效果圖
占地:185平方米
150平米簡單大方的三層農村自建房設計圖,坡層頂,色彩鮮明,布
占地:150平方米
120平面三層鄉村樓房設計圖及效果圖,歐式風格
占地:120平方米
二開間小戶型設計三層農村自建房方案,經濟型適合小宅基地建房
占地:107.02平方米
三層現代平頂別墅設計圖,簡約時尚百看不厭,外觀令人驚艷!
占地:125.142平方米
美式風格鄉村兩層小別墅自建房設計圖,外觀圖好看
占地:150平方米
農村二層半房子設計圖 ,占地110平米和160多平兩個戶型圖
占地:多種戶型
帶地下室三間二層農村自建房設計圖,現代平屋頂設計
占地:99.98平方米
140平方米新農村三層房屋設計圖,磚混結構帶地下室
占地:138平方米左右
一層中式風格自建小院,白墻黛瓦舒適宜居,享受舒適愜意的鄉村
占地:263.94平方米
面寬不到10米的小戶型自建房戶型圖,全套設計圖紙可施工
占地:123.2平方米左右
130平方米新農村自建三層別墅設計施工圖,13x11米
占地:130平方米
80平方米三層農村自建民房設計圖,小戶型別墅方案
占地:81平方米
歐式風格三層別墅建筑設計圖,復式樓中樓結構
占地:138平方米
推薦:10套新農村自建房設計圖,2026年最新設計
閱讀次數:4825737次
100套鄉村別墅圖片大全,2026年最新設計
閱讀次數:2492203次
6款農村蓋一層平房的設計圖,10萬元就能建起來
閱讀次數:1852637次
這11個一層農村自建房別墅火爆了朋友圈!我最喜歡戶型十!你呢
閱讀次數:750268次
農村6萬元建一層小別墅圖,你敢相信嗎
閱讀次數:567686次
農村5萬塊就能自建房,6套普通房子設計圖分享,你沒看錯!
閱讀次數:419410次
8套農村漂亮三間平房圖片,非常適合在農村修建!
閱讀次數:411197次
農村自建房化糞池怎么做?附方案及施工過程
閱讀次數:391783次
農村一層三間平房設計圖,告別土氣養老房,讓人忍不住點贊
閱讀次數:350581次
新農村二層樓房圖片造價12萬,挑一套回家建房吧!
閱讀次數:349126次
