
|
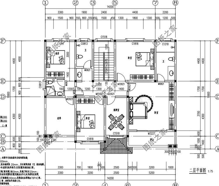
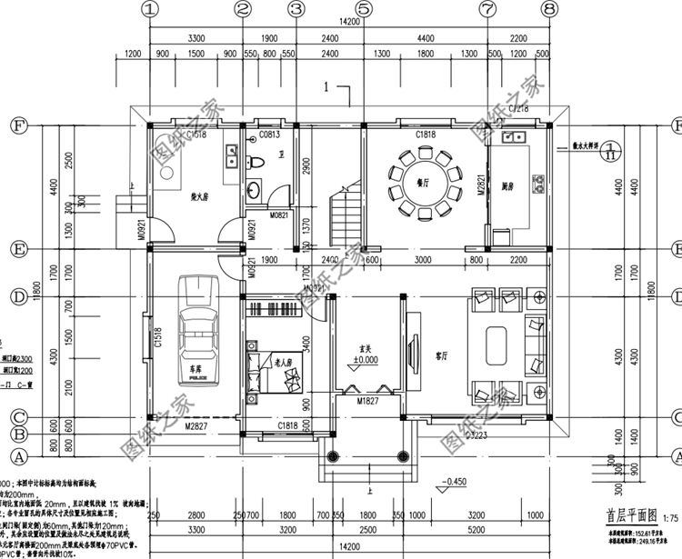
鄉下的房子和城里的房子是不一樣的,鄉下的房子要考慮的方面很多,既要功能齊全完善,又要保證大小成員在一起又不影響隱私和生活習慣,就要有各自獨立的空間,尤其是父母,所以必須慎重考慮。今天給大家推薦三款農村二層別墅圖片外觀圖,外觀高端大氣,趕快找一款喜歡的建造吧。 第一款:農村二層別墅設計圖,占地90平米左右,簡歐風格設計圖紙介紹:這款二層別墅占地90平米左右,簡歐風格,戶型簡單不失精致,時尚大氣,結合當下流行的現代風元素,個性十足。占地方正,四平八穩,別墅一層采用棕色外墻磚,凹凸有致 占地面積:10.36m*9.26m,92.12平方米左右; 建筑層高:二層; 建筑高度:9.454米(含屋頂); 設計功能: 一層戶型:客廳、廚房、餐廳、臥室、衛生間; 二層戶型:客廳、書房、臥室(帶衣帽間、衛生間)、臥室x2、衛生間、陽臺; ![]() ![]() ![]() 第二款:農村二層自建房設計圖,帶車庫設計,主體25萬左右圖紙介紹:這款二層自建別墅占地170平米,帶車庫設計,主體造價25萬左右,外觀圖中式與現代的完美結合,實用省錢非常劃算方正的戶型,簡約時尚,沒有太多的裝飾,加上歐式羅馬柱和落地窗就顯得格外豪華氣派,覆蓋灰色的琉璃瓦片,渾然一體,搭配剛剛好。人生有很多樂趣,農村未來將成為人們向往的地方。所以,錢掙得差不多的時候,可以考慮在家里建個別墅 ,在家附近工作或創業,享受人生。 占地面積:17.3m*11.3m,170.84平方米左右; 建筑層高:二層; 建筑高度:9.635米(含屋頂); 設計功能: 一層戶型:客廳、廚房、餐廳、臥室x2、衛生間x2、儲藏間、車庫; 二層戶型:起居室、臥室x4、衛生間x2、露臺、陽臺; ![]() ![]() ![]() 第三款:農村四間二層別墅設計圖,占地152平米,外觀精致時尚圖紙介紹:這款四間二層自建房占地152平米左右,帶車庫設計,外觀精致、時尚,戶型布局實用,功能布局齊全,一層柴火房不需要,可以作為臥室或娛樂室,二層套房帶露臺,露臺上放個小桌子,平常喝茶、聊天非常不錯。 占地面積:14.2m*11.8m,一層建筑面積152平左右; 建筑層高:二層; 建筑高度:9.32米(含屋頂); 設計功能: 一層戶型設計:門廳、客廳、餐廳、廚房、老人房、柴火房(可做娛樂室或臥室)、衛生間、車庫; 二層戶型設計:主臥(帶衛生間)、套房(衛生間+涼亭)、臥室x2、棋牌室、衛生間; ![]() ![]() ![]() ![]() 不知道這三款戶型大家喜歡哪一款?歡迎下方評論留言。
圖紙之家-專注農村別墅/自建房設計18年,集合國內200余位經驗豐富的設計師,被評為口碑最好的農村建筑設計公司! |

農村中式一層三合院自建房設計圖,古典大氣白墻黛瓦
占地:177.62平方米
經典小戶型雙拼二層新農村房屋住宅設計圖,含效果圖
占地:80平方米
農村二層半兄弟共建房別墅設計圖,復式戶型帶車庫,面寬24米
占地:312平方米左右
30萬以下的經典二層新農村別墅設計圖紙及效果圖,簡單大氣
占地:170平方米
帶KTV的四開間的二層別墅設計圖,造型美觀經濟實用
占地:240.22平方米
農村中式一層合院別墅設計圖,帶小院子規劃設計
占地:202平方米左右
100平復式三層別墅房屋設計圖,客廳挑高,采光好,臥室多
占地:100平方米
高端大氣三層半別墅客廳挑空設計,豪華農村自建房圖
占地:179.52平方米
三層雙拼別墅效果圖及戶型設計圖,占地150平米
占地:154.8平方米
160平方米經典鄉村二層房屋設計圖紙
占地:160平方米
好看又簡單的二層小樓設計圖,農村自建20萬元左右
占地:130平方米
帶小院新農村房屋設計圖紙,三層別墅推薦
占地:115平方米
經典二層農村自建房屋別墅設計圖紙,占地110平米左右
占地:110平方米
小戶型二層四合院別墅設計圖,含外觀效果圖,小宅基地選擇
占地:134平方米
四層復式別墅設計方案,外觀氣派布局實用,舒適宜居美極了!
占地:204.64平方米
3款三層農村自建別墅設計圖,氣派十足,準備建房的快快查看
占地:多戶型可選
兄弟兩戶雙拼房屋設計圖及外觀圖片,戶型合理
占地:185平方米
帶大套間新農村二層別墅自建房設計圖紙帶效果圖
占地:185平方米
農村四層樓房外形設計圖,主臥配有陽臺和衣帽間還有衛生間
占地:126平方米
現代風格四合院別墅設計圖,回老家建一棟吧
占地:177.89平方米
推薦:10套新農村自建房設計圖,2026年最新設計
閱讀次數:4825737次
100套鄉村別墅圖片大全,2026年最新設計
閱讀次數:2492203次
6款農村蓋一層平房的設計圖,10萬元就能建起來
閱讀次數:1852637次
這11個一層農村自建房別墅火爆了朋友圈!我最喜歡戶型十!你呢
閱讀次數:750268次
農村6萬元建一層小別墅圖,你敢相信嗎
閱讀次數:567686次
農村5萬塊就能自建房,6套普通房子設計圖分享,你沒看錯!
閱讀次數:419410次
8套農村漂亮三間平房圖片,非常適合在農村修建!
閱讀次數:411197次
農村自建房化糞池怎么做?附方案及施工過程
閱讀次數:391783次
農村一層三間平房設計圖,告別土氣養老房,讓人忍不住點贊
閱讀次數:350581次
新農村二層樓房圖片造價12萬,挑一套回家建房吧!
閱讀次數:349126次
