
|
現在從城市里回到農村建房的人越來越多了,經歷了城市中的喧囂和疲憊,人們開始更向往鄉下的青山綠水,清新的空氣,悠閑的氛圍,讓人心生向往,渴望身心歇息。而在農村建房的話,最要緊的肯定還是實用為先,外觀好看當然也是一定要的,但要優先滿足生活的舒適。今天就給大家帶來三款四開間二層自建房,外觀優雅,內部舒適實用,一起來和我看看吧。 別墅圖一:新農村帶車庫的二層小別墅設計方案圖清爽雅致,空間利用率高!經典的簡歐風格,淺灰外墻真石漆與紅色坡屋面的融合,不容易過時,外型線框順暢,顏色清爽雅致,雅致大氣,特別適合定居。大門口立柱構建的門廳室內空間顯現出大伙兒穩重端莊的設計風格。陽臺和歐式羅馬柱的組合不但提升了設計感,也使屋內光照自然通風更上一層樓,足不出門就能賞析到田園風光。配搭精美的落地玻璃窗,給房子增加了許多豪氣。餐廳客廳中間有間距,確保屋子整體空氣清新。側設單獨停車位,室內空間寬闊,泊車便捷。二樓大客廳與生活陽臺相接,自然通風效果非常的好;大陽臺設定在房子總體東部地區,可用作冬天烘干處理谷類和腌魚腌豬肉。
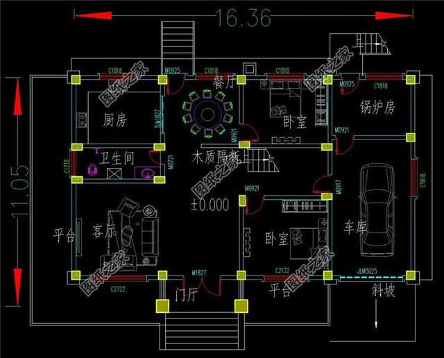
別墅效果圖 占地面積:16.36m*11.05m,168.73平方米左右; 建筑層高:二層; 建筑高度:9.499米(含屋頂); 設計功能: 一層戶型:客廳、鍋爐房、餐廳、廚房、臥室x2、衛生間、車庫; 二層戶型:客廳、娛樂室、臥室x4、衛生間、陽臺、露臺;
一層平面圖
二層平面圖 別墅圖二:200平米2層別墅設計圖別墅色彩搭配清爽雅致,濃厚的農村氣場,能充分體現鄉村豐富多彩的生活。有人說,我只想建這樣的別墅做為我養老服務的地方,有我喜歡的東西,喜歡的人,平靜淡定從容,開心。多窗的設計讓空氣的流通性得到了加強,采光得到了提高,羅馬柱的存在讓整體都擁有了一絲歷史的文化感。
別墅效果圖 別墅圖三:農村實用二層4開間中式別墅設計方案圖建筑層高:二層; 建筑高度:10.2米(含屋頂); 設計功能: 一層戶型:客廳、餐廳、廚房、衛生間、主臥(帶衛生間)、臥室×3、儲藏間; 二層戶型:客廳、臥室x4、書房、衛生間、陽臺、大露臺;
背面效果圖
鳥瞰效果圖
一層平面圖
二層平面圖 別墅圖三:農村實用二層4開間中式別墅設計方案圖有停車位房型,七間臥房帶露臺,老家建一棟最好!別墅外觀和諧經典,令人眼前一亮。與中國人青睞的傳統式新中式風格對比,與眾不同的現代中式風格更現代,更時尚潮流。利用科學規范的空間規劃,呈現建筑構造的藝術美。一樓有大客廳,東面有烤火爐房,合乎北方人的生活方式,為冬季供暖給予標準;全部房子有7間臥房,充足一家人住。寬闊的大露臺可作為休閑娛樂觀景臺。曬衣服便捷好用。
別墅效果圖 占地面積:16.26m*11.76m,198平方米左右; 建筑層高:二層; 建筑高度:8.875米(含屋頂); 設計功能: 一層戶型:客廳、烤火房、儲藏室、餐廳、廚房、臥室x2、衛生間x2、車庫; 二層戶型:臥室(帶衣帽間)、臥室x4、衛生間x2、露臺;
一層平面圖
二層平面圖 以上就是今天帶給大家的全部內容了,感興趣的朋友記得收藏喲。 圖紙之家-專注農村別墅/自建房設計18年,集合國內200余位經驗豐富的設計師,被評為口碑最好的農村建筑設計公司! |

農村一層養老別墅設計圖,14.8x17.9米,戶型對稱,實用布局
占地:193平方米
時尚漂亮的二層小洋樓設計圖,設計師建房都選這個方案
占地:149.27平方米
農村四間房屋設計圖經典戶型,這樣設計美觀、實用
占地:169平方米
歐式豪華三層別墅設計圖,占地面積170平米,高端大氣帶露臺
占地:170平方米
新農村一層平屋頂簡單自建房別墅設計圖紙,全套設計
占地:130平方米
110平方米新農村三層別墅設計圖,含外觀效果圖
占地:109平方米
三層小別墅40萬造價,大氣農村三層新中式自建房設計圖紙
占地:171.656平方米
新農村實用三層帶露臺房屋設計圖紙,占地110平方米
占地:109平方米
2026新款二層別墅房屋設計圖,帶外觀圖片
占地:138平方米
120平方米農村四層別墅施工設計圖紙及效果圖
占地:120平方米
新農村四層獨棟復式別墅設計圖,設計豪華時尚
占地:140平方米
帶地下室的農村三層雙拼別墅設計圖,復式戶型,面寬23米
占地:261.6平方米左右
帶架空層一層農村別墅設計圖,回鄉建房優選,家有豪宅幸福來敲
占地:124.76平方米
方方正正的二層農村別墅設計圖,普通農村人都能建
占地:201.05平方米
農村三層兄弟雙拼別墅設計圖及效果圖片,14X12米自建戶型
占地:154平方米
150平米二層鄉村小別墅圖,戶型合理,外觀清新淡雅
占地:150平方米
農村三層中式仿古別墅設計圖紙,中國風自建房戶型
占地:158.64平方米
農村四層樓房設計圖,占地120平方米,歐式風格,高端大氣
占地:120平方米
新農村三層房屋設計圖紙(含效果圖),農村小別墅圖紙推薦
占地:116.15平方米
農村五間房子設計圖,大戶型別墅設計圖推薦
占地:240平方米
推薦:10套新農村自建房設計圖,2026年最新設計
閱讀次數:4825737次
100套鄉村別墅圖片大全,2026年最新設計
閱讀次數:2492203次
6款農村蓋一層平房的設計圖,10萬元就能建起來
閱讀次數:1852637次
這11個一層農村自建房別墅火爆了朋友圈!我最喜歡戶型十!你呢
閱讀次數:750268次
農村6萬元建一層小別墅圖,你敢相信嗎
閱讀次數:567686次
農村5萬塊就能自建房,6套普通房子設計圖分享,你沒看錯!
閱讀次數:419410次
8套農村漂亮三間平房圖片,非常適合在農村修建!
閱讀次數:411197次
農村自建房化糞池怎么做?附方案及施工過程
閱讀次數:391783次
農村一層三間平房設計圖,告別土氣養老房,讓人忍不住點贊
閱讀次數:350581次
新農村二層樓房圖片造價12萬,挑一套回家建房吧!
閱讀次數:349126次
