
|
在鄉下有棟屬于自己的別墅,是很多農村出身的朋友的夢想。而且農村的房子和城市的房子比起來,不僅便宜了很多,還能按照自己的心意建設,還沒有城市那么大壓力,也不會有城市快節奏的生活,建個帶露臺的別墅,午后曬太陽,飲下午茶,坐看原野風景,想想可真是愜意。今天給大家帶來三款歐式帶露臺別墅設計圖紙,感興趣的朋友快來和我一起看看吧。 別墅圖一:180平米農村二層小別墅設計圖外形美觀,帶露臺,回老家建一棟樓,老有所居。多窗的設計讓別墅的整體采光得到了加強,空氣流通性也更高,生活也會更加舒適。露臺的存在提升了建筑的功能性,不僅可以晾曬衣物,還可以舉辦小型聚會,午后休憩等等。帶著羅馬柱的門廳讓建筑看起來更加的大氣美觀。現在在農村建房已經成為一種趨勢。人老了,總要有地方休息。如果家鄉有一棟樓,生活就會有退路,家鄉才是最好的歸宿。
別墅效果圖 占地面積:16.9m*13.0m,占地180平方米左右; 建筑層高:二層; 建筑高度:9.8米(含屋頂); 設計功能: 一層戶型:玄關、堂屋、客廳、衛生間、主臥(帶衛生間)、臥室、棋牌室;堂屋可改造成廚房餐廳。 二層戶型:客廳、主臥(帶衣帽間,衛生間)、臥室(帶衣帽間)x2、廚房、衛生間、大露臺;
背面效果圖
鳥瞰效果圖
一層平面圖
二層平面圖 別墅圖二:占地130平方米二層鄉村別墅,5室3衛還帶茶室自建房設計圖經典的簡約歐式別墅,2個通道門口用線框齊整的柱子裝飾,絕大多數淺淺黃色外墻真石漆裝飾設計,底端是棕色地磚,在下雨天具有耐臟的功效。房頂是絕大部分人青睞的紅色屋面瓦,顏色艷麗但不生硬。從大門進入是入戶玄關的位置,大客廳被裝飾墻分隔,確保了個人隱私。三間臥房足夠一家人住,過多會變得空曠。茶室設計也非常恰當,靠近露臺和陽臺環境舒服。不僅可以和親朋好友一起喝茶看風景,還能晾曬衣物糧食等等,功能很多。
別墅效果圖 占地面積:14.76m*10.94m,131.658平方米左右; 建筑層高:二層; 建筑高度:9.449米(含屋頂); 設計功能: 一層戶型:客廳、神位、餐廳、廚房、臥室x2、衛生間; 二層戶型:茶室、臥室(帶衛生間、衣帽間)、臥室x2、衛生間、露臺、陽臺;
一層平面圖
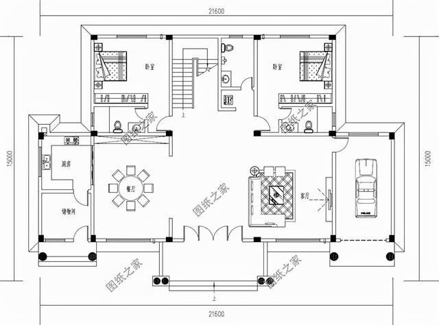
二層平面圖 別墅圖三:230平方米豪華歐式二層別墅CAD設計圖紙帶外觀效果圖大開間戶型,車庫設計,外觀配色采用最優雅的米色,讓別墅更加搶眼,與低調的深灰色坡屋頂相得益彰,讓整個別墅更加優雅。對稱性的設計讓整棟建筑看起來讓人印象更加深刻。雙露臺的設計給建筑提供了更多的功能性。多窗的設計讓整棟建筑的采光和通風得到了滿足,保證了生活的舒適。
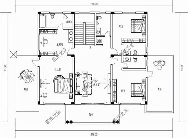
別墅效果圖 占地面積:21.6m*15m,236平方米左右; 建筑層高:二層; 建筑高度:9.8米(含屋頂); 設計功能: 一層戶型:客廳、廚房、餐廳、臥室(帶衛生間)x2、儲物間、衛生間、車庫; 二層戶型:起居室、臥室(帶衛生間)x2、臥室(帶衣帽間衛生間)、衛生間、陽臺、露臺;
背面效果圖
鳥瞰效果圖
一層平面圖
二層平面圖 這就是今天給大家分享的全部內容了,感興趣的朋友記得收藏點贊喲。 圖紙之家-專注農村別墅/自建房設計18年,集合國內200余位經驗豐富的設計師,被評為口碑最好的農村建筑設計公司! |

經典三層農村房屋設計圖紙,占地100平米左右,外觀典雅精致,內
占地:100平方米
三層奢華歐式別墅圖片及全套設計圖,帶地下室和車庫
占地:208平方米左右
平屋頂12米寬別墅三層設計圖,平頂照樣建的漂亮
占地:129.6平方米
95平米二層別墅必蓋戶型圖,造型洋氣,布局接地氣,趕緊回村建
占地:95.38平方米
帶大套間新農村二層別墅自建房設計圖紙帶效果圖
占地:185平方米
復式別墅農村四層霸氣豪宅設計圖紙,建好你就是村里第一
占地:136.356平方米
新農村自建三層復式結構房屋別墅設計圖紙及效果圖
占地:138平方米
農村二層半帶露臺別墅圖片及設計圖,戶型方案比較經典
占地:123平方米
14x11米一層平房戶型設計圖,帶前后門設計,好看不貴還實用!
占地:143.59平方米
占地180平豪華三層農村別墅自建房設計圖,歐式與現代相融合
占地:183.706平方米
實用農村10萬一層小別墅戶型圖及圖紙,全套施工圖
占地:多種面積
170平方米新農村現代樓中樓三層別墅設計施工圖紙及效果圖
占地:170平方米
100平米兩間三層樓房設計圖,農村蓋房舒服實用最重要
占地:100平方米
農村四層樓房設計圖,含外觀圖片,自建四層房屋推薦
占地:140平方米
新中式三層雙拼別墅設計圖及效果圖,中式大氣風格
占地:235.26平方米
12x13米豪華三層農村別墅設計圖,宅基地上的貴族人生
占地:156平方米
100平內的三層豪華歐式別墅房屋設計圖紙 ,簡歐風格
占地:94平方米左右
經濟、不張揚!簡單二層別墅設計圖,農村建房直接抄作業
占地:198.58平方米
2026最美三層別墅設計圖紙及效果圖,十佳最美農村別墅
占地:151平方米
30萬造價三層別墅建筑設計圖紙,戶型利用率高
占地:130平方米
推薦:10套新農村自建房設計圖,2026年最新設計
閱讀次數:4825737次
100套鄉村別墅圖片大全,2026年最新設計
閱讀次數:2492203次
6款農村蓋一層平房的設計圖,10萬元就能建起來
閱讀次數:1852637次
這11個一層農村自建房別墅火爆了朋友圈!我最喜歡戶型十!你呢
閱讀次數:750268次
農村6萬元建一層小別墅圖,你敢相信嗎
閱讀次數:567686次
農村5萬塊就能自建房,6套普通房子設計圖分享,你沒看錯!
閱讀次數:419410次
8套農村漂亮三間平房圖片,非常適合在農村修建!
閱讀次數:411197次
農村自建房化糞池怎么做?附方案及施工過程
閱讀次數:391783次
農村一層三間平房設計圖,告別土氣養老房,讓人忍不住點贊
閱讀次數:350581次
新農村二層樓房圖片造價12萬,挑一套回家建房吧!
閱讀次數:349126次
