
|
通力協作,事倍功半。一個人的能量一直不足,建房子也是這般。兩兄弟一起蓋別墅,工程施工流程中有些人幫助,之后能夠相互扶持。弟兄住在一起是一種財富。今日我們我便帶來大伙兒三個弟兄雙拼別墅二層別墅,有感興趣的跟我一起來瞧瞧吧! 別墅圖一介紹:共用堂屋和樓梯的兄弟雙拼別墅設計圖紙戶型這樣布局能提高空間利用率,哥倆自建房就推薦這樣設計,布局做到這幾點,完全不用擔心鬧矛盾,雙拼戶型為小宅基地兄弟的首選,父母都在的話,肯定是更希望這樣建房。屋頂斜面采用紅色釉面瓷瓦,外墻面采用米黃色外墻磚,獨立雙入戶門,生活空間完全隔開。堂屋共用+中空客廳,共用娛樂廳讓家人更加和睦,素色外觀,十分帶勁,兄弟建房同樣要一次搞定,這樣父母才放心。
別墅效果圖 占地面積:19m*12.8m,207.32平方米左右,單戶100平左右; 建筑層高:二層 建筑高度:9.955米 設計功能:
一層平面圖 一層布局圖:共用堂屋、客廳、餐廳、廚房、臥室x2、洗衣間、衛生間;
二層平面圖 二層布局圖:共用娛樂室、客廳上空、臥室x3、衛生間、共用陽臺; 別墅圖二介紹:240平方米新農村漂亮的兄弟倆雙拼別墅設計圖紙及外觀圖片單戶120平,設計美觀大氣一層墻體有文化磚裝飾結合二層淺黃色的真石漆給人一種富麗堂皇的感受,設有獨立大門進入,兩家住在一起互不影響,適合農村兩兄弟建造。俯視圖看起來這套戶型十分漂亮,兩個小老虎窗設計巧妙俏皮可愛,為室內增加采光度。坡屋頂方便排水,不論南方還是北方,都是非常合適建造的 占地面積:18.6m*12.8m,239平方米左右,單戶119.5平方米左右; 建筑層高:二層 建筑高度:12.05米
正面效果圖
側面效果圖
鳥瞰效果圖 設計功能:
一層平面圖 一層房屋戶型:堂屋、客廳、廚房、餐廳、衛生間、老人房(帶衛生間);
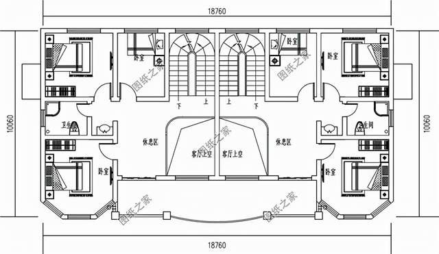
二層平面圖 二層房屋戶型:主臥(帶衛生間衣帽間)、臥室(帶衛生間)、棋牌室、書房、衛生間、陽臺; 別墅圖三介紹:170平方米雙拼別墅戶型建筑設計圖紙及外觀效果圖小戶經濟型復式客廳,此款農村二層雙拼別墅,在色調上搭配相對簡單,只采用了灰色和白色兩種色調,兩種色調相結合,使得整體外觀簡約大方。尤其是朱砂紅大門的設計低調不失奢華的韻味。一層采用客廳上空挑空的設計讓整個室內空間得到明顯的提升,二層中間都配有休息區給家里娛樂休閑提供了場所,共用一處露臺可以提升兄弟之間的感情。坐在露臺上一起喝喝茶體驗一下忙碌之外的靜謐時光。 占地面積:18.76m*10.06m,170平方米左右,單戶85平方米左右; 建筑層高:二層 建筑高度:9.86米
正面效果圖
側面效果圖
鳥瞰效果圖 設計功能:
一層戶型圖 一層房屋戶型:客廳、廚房、餐廳、衛生間、臥室;
二層戶型圖 二層房屋戶型:客廳上空、休息區、臥室x3、衛生間、陽臺; 以上就今天小編推薦給大伙們兒的全部內容了,感興趣的家人們別忘了點贊收藏,歡迎大家來下面留言評論。 圖紙之家-專注農村別墅/自建房設計18年,集合國內200余位經驗豐富的設計師,被評為口碑最好的農村建筑設計公司! |

最新三層農村別墅設計圖紙,推薦農村自建
占地:106平方米
8.5×12米四層歐式房屋設計圖紙,占地100平,落地窗中嵌入了雕花
占地:100平方米
農村120平米三間三層樓房設計圖紙,農村理想住房設計圖
占地:120平方米
三十萬農村別墅設計圖帶外觀圖片,30萬造價別墅展示
占地:125平方米
最漂亮的一層平房圖片及設計圖,造價18萬左右,結構簡單易于施
占地:186平方米
兩層半帶閣樓別墅房屋設計圖,含外觀效果圖片
占地:118平方米
歐式新農村自建三層建筑施工設計圖紙及效果圖大全
占地:106平方米
150平米簡歐三層農村別墅設計圖,低調又奢華
占地:151.2平方米
農村三層樓房設計圖紙及效果圖,經典自建圖紙
占地:201平方米
農村中式二層4開間別墅圖紙設計方案圖,帶車庫戶型
占地:198平方米
160平方米新農村三層半別墅設計圖11X16米65萬以內
占地:160平方米
占地180平豪華三層農村別墅自建房設計圖,歐式與現代相融合
占地:183.706平方米
新式160平方米農村三層樓房設計圖,客廳中空
占地:160平方米
可以傳家的新中式二層別墅,經典耐看,再過幾十年也不過時
占地:146.81平方米
實用農村三層房屋設計圖紙,效果圖+全套施工圖
占地:113平方米
簡單大氣二層兄弟雙拼樓房設計圖,外觀簡約
占地:268平方米
120平方房子設計圖帶效果圖,農村自建房戶型推薦
占地:120平方米
110平房子設計圖,經典的農村自建房屋設計圖
占地:110平方米
雙拼二層大別墅設計圖,大面寬小進深,讓兄弟永遠不分家
占地:207.15平方米
小戶型兄弟雙拼別墅房屋設計圖,帶外觀效果圖
占地:150平方米
推薦:10套新農村自建房設計圖,2026年最新設計
閱讀次數:4825737次
100套鄉村別墅圖片大全,2026年最新設計
閱讀次數:2492203次
6款農村蓋一層平房的設計圖,10萬元就能建起來
閱讀次數:1852637次
這11個一層農村自建房別墅火爆了朋友圈!我最喜歡戶型十!你呢
閱讀次數:750268次
農村6萬元建一層小別墅圖,你敢相信嗎
閱讀次數:567686次
農村5萬塊就能自建房,6套普通房子設計圖分享,你沒看錯!
閱讀次數:419410次
8套農村漂亮三間平房圖片,非常適合在農村修建!
閱讀次數:411197次
農村自建房化糞池怎么做?附方案及施工過程
閱讀次數:391783次
農村一層三間平房設計圖,告別土氣養老房,讓人忍不住點贊
閱讀次數:350581次
新農村二層樓房圖片造價12萬,挑一套回家建房吧!
閱讀次數:349126次
